查看完整案例

收藏

下载
TSING HORSE DESIGN
丨青马别墅空间设计最新案例丨
PROJECT INFORMATION
建筑户型 ︱ 平层
设计风格丨 现代中式
项目名称 ︱ 金地世家风华
施工面积 ︱ 200 平米
全案产品丨
东芝空调
托马仕新风
3m
净水 马可波罗瓷砖 宾图木作 美标洁具 林内热水器 艾尔西软装 华艺石材 克劳嫩堡美缝 古马空气家
设计师王清玉:
统筹屋主的精神所需,以中式元素为灵感甘露,滋养出一个清逸素雅、古韵诗意的现代新中式风格空间,
素雅的色彩、自然的材质、质朴的肌理,感受一份宁静的淡雅和沉淀的安然。
LIVING ROOM
客 厅
QINGMA DESIGN
ACHIEVE VILLA LIFESTYLE
归家第一视觉,原木、山石与月洞起境
在潜移默化之中唤醒了空间的生命力
回归初心,把复杂的生活简单化
心灵与自然亲密贴合,
安静从容便自由延展开来
MULTI-FUNCTION HALL
多功能厅
QINGMA DESIGN
ACHIEVE VILLA LIFESTYLE
让生活紧凑的脚步放缓一下
花间水饮,一缕花香迷人,一口茶香沁人
每一处设计意境
都有属于自己的
语
言
一人独饮,两人对缀,三人为品,偷得浮生半日闲
KITCHEN AREA 餐厨区
QINGMA DESIGN ACHIEVE VILLA LIFESTYLE
以“现代中式奢居的精髓”为准则
尺度的划分、开围的组合让餐厨区恰如其分地展开
简单流畅的行为动线,
起承转合井然有序
功能与美学兼备,形成这复合场景互动空间
MASTERBEDROOM
主 卧
QINGMA DESIGN
ACHIEVE VILLA LIFESTYLE
主卧套一体式门墙设计,空间配色低调沉稳,将自然的木质纹理与原生态结合,丰富空间层次感。改造后的功能布局更顺畅,视觉愉悦的形式美学,诱发情绪的情景氛围,营造目之所及的美感及触手可及的舒适。
CHILDREN’S ROOM
儿童房
QINGMA DESIGN
ACHIEVE VILLA LIFESTYLE
>
儿童房结合实用性与构造比例的美感打造手办展示柜,亦巧妙将空间做功能分区分割。
独特的设计美感、细腻的材质表现、经典的色彩组合,体现着设计师对生活的深入表达,优雅舒缓的现代生活格调悄然而至。
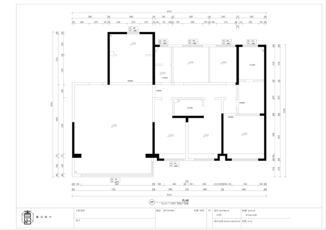
PLANE LAYOUT
平面布局
QINGMA DESIGN
ACHIEVE VILLA LIFESTYLE
平面布局图
INFO
- 主案设计- 王清玉
- 工程管家- 刘强
- 客户经理- 周南
- 设计公司- 青马别墅设计
DESIGNER OF THIS CASE
设 计 师
QINGMA DESIGN
ACHIEVE VILLA LIFESTYLE
王清玉
青马设计主创设计师
毕业于中国北京工艺美院附属学院环境艺术设计专业。室内装饰行业从业 14 年以上,专属大宅全案设计。
资质:
国际建筑装饰协会注册会员室内设计师
中国香港商业美术注册设计师
设计理念:
以人为本,服务生活
殊荣:
2018 年 荣获中国十佳住宅设计师提名
2019 年 荣获室内空间设计筑巢奖优秀奖
2019 年 中国室内设计大赛三等奖
2020 年荣获设博会十大影响力设计师
2020 年 IDEA-TOPS 艾特奖国际空间设计大奖最佳别墅入围奖
2020 年 第二届建筑装饰设计年度新锐设计师
2020 年荣获陕西省最佳家装作品奖
2021 年荣获室内空间设计筑巢奖最佳作品奖
2022 荣获“陕西百名优秀家装设计师”荣誉称号
案例:
华侨城 108 坊,赛高悦府,西派国际,天鹅堡,白桦林间,紫汀苑,金辉世界城,琉森水岸,蔷薇溪谷,国润城,巴塞阳光,西西安小镇,春城十八里,秦汉新城,枫丹丽舍,御河上院等
链接:
青馬人物丨王清玉:不慌不忙,在奔跑中调整姿势触及天花!
青馬作品 | 保利天悦 · 联排别墅 现代简约 开启感官体验新旅途 / 王清玉
青馬作品 | 河与墅 · 200㎡中叠 现代简约 享受平静中的奢华 / 王清玉
青馬作品 | 香湖湾 · 459㎡下叠 现代 别具一格的魅力空间 / 王清玉
青馬作品 | 科为城墅 · 210㎡下叠 美式 用爱贯穿的多功能新居 / 王清玉
青馬作品 | 中建昆明澜庭 · 285㎡底跃 现代 新中式 混搭中的简与质 / 王清玉
青馬作品 | 御河上院 · 400㎡ 联排下叠 轻奢悦目 / 王清玉
点击图片
了解更多案例丨人物丨作品
△青馬作品 | 金辉世界城 · 顶复 现代轻奢 沉浸品味慢调中 / 晁阳
△青馬作品 | 海亮唐宁府 · 下叠 新中式 悠然渐入佳境 / 王清玉
△青馬作品 | 金地芙蓉世家 联排别墅 现代 细节设计的精心雕琢 / 马斌
△青馬作品 | 龙湖源著 · 下叠 现代轻奢 界面的高级感 / 冯略嘉
△青馬作品 | 东原印未央 · 下叠 现代轻奢 多元勾画空间艺术性 / 吕韶华
△青馬作品 | 世园大公馆 · 联排别墅 现代美式 描摹家的浪漫 / 李昂
DESIGN COMPANY
设计公司
QINGMA DESIGN
ACHIEVE VILLA LIFESTYLE
青马设计
隶属于北京尚美饰家装饰集团旗下,专注于高端别墅大宅的装饰品牌。由集团精心重资打造,经过多年不断的淬炼升级与创新融合,打破以往客户服务的常规局限,构建全新的大宅别墅全案设计和整装服务平台,专注服务对象涵盖企事业精英人士和高端客户群体,提供大宅别墅装饰的整体规划设计与施工产品整体交付私属定制服务。
青马设计
集结行业内经验丰富的设计大咖、大客户经理、工程大管家、优秀的工程项目经理打造的“大宅别墅工程”管理体系,“多对一”式的整装服务系统,在行业里形成独特 TSING HORSE 系风格的青马设计范式。青马设计不仅是装修服务的提供商,更是大宅别墅生活方式的服务商。青马 - 成就别墅生活。
-END-
生活的格调
就是一个人对自我独特的定义
是生活,是艺术
而家
就是格调的终极表现
青马,只想给你一个格调家
客服
消息
收藏
下载
最近



























