查看完整案例


收藏

下载
苏尔孝
LIVINGROOM
客厅
木饰面块体的穿插,弱化梁柱结构,同时引申出各个空间的分割。木饰面如树木的枝丫交错于空间内,灯光的置入如同夜晚森林中的萤火,轻盈的灵动感跃然纸上。
客餐厅一体的格局,开阔通透,极具纵深感,给人带来视觉上的放松。深色瓷砖地面,为空间奠定了沉稳克制、自然温润的基调。
电视背景大理石的悬空结构状态,带来视线的逡巡。宽敞且柔和的空间调性,留白和木色的温婉细腻,凸显其纯粹的质感,材质肌理、线条平衡以及功能延展的设计巧思随处可见。KITCHEN 厨房
厨房整体做开放式设计,联通客餐厅形成无阻开阔的场界。来自四面八方的自然光源摄入,为空间镀上一层柔和的面纱,人们或是在吧台品一杯热茶,或是围坐餐桌,品四时之味。
STUDYROOM
书房
书房隐藏于客厅后方,敞开时可融入公区,使家人的生活轨迹,交织于同一平面内。闭合时亦可成为相对私密的办公空间。开放柜明丽的色彩,唤醒视觉,橙色单刀直入地点亮空间,疲惫的心情在入室的瞬间被洗涤。TOILET 外卫
外卫采用干湿分离的设计,盥洗台外置,结合电视背景的大理石材质作为挂镜面,与柱体的木饰面搭配,将温润的格调贯彻始终。
STAIRCASE
楼梯间
楼梯的一体化设计,盘旋而上,成为瞩目的端景。整个楼梯间纯白、极简,没有一丝多余的装饰,随着光照的不同使空间产生不可预料的微妙变化,像极了一座光雕建筑。
MASTERBEDROOM
主卧
二层作为男女主人的起居空间,呈现着环绕的动线状态,将功能区域置于行径的范畴,在使用的过程中移步换景,极具自由体验。
在主卧与衣帽间之间,通过可推开的隐藏式移门形成两处空间的联动,人为造景,以结构成框,让空间本身成为会动的相片。
而开阔的机构,增强视觉的延续感的同时,也拉进了人与人,人与空间沟通的距离。
TOILET
主卫
主卫拥有良好的采光通风,整体色调平静舒缓,内敛克制。合理的干湿分区设置,为日常使用提供了最大的舒适与便捷。BEDROOM 次卧
次卧室沿阳台门设置学习区域,充沛的采光被完美纳入。床头柜用深色框架的形式与浅色墙裙集成在一起,置于地台之上,极其简约的设计显得空间整齐洁净,打理起来也倍感轻松。TERRACE 露台
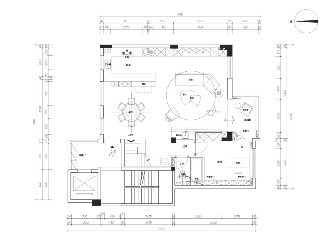
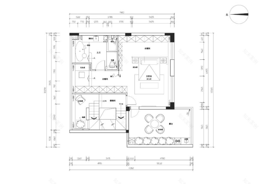
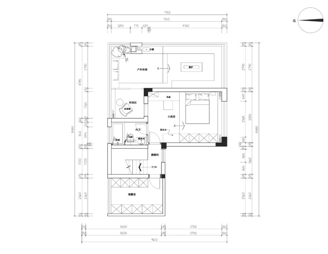
空间平面图
项目信息
项目名称 | 觅境
项目地点 | 浙江省温州市
项目面积 | 250㎡
主案设计| 苏尔孝
设计成员| 朱依茹
设计时间 | 2021
完工时间|2023
客服
消息
收藏
下载
最近



































