查看完整案例


收藏

下载
▲ 点击上方蓝字,关注【ACE 装饰】
get 最新案例分享~
欢迎关注与星标⭐
INTRO
喜欢现代简约风格的品质感,简约中追求艺术,舒适中又体现生活的精致。
本案坐落于泉州,设计师用美学的态度去处理空间关系及各种材质的和谐与冲突,让空间不拘泥于造型性,弱化与简化造型的复杂性,使空间达到舒适性。
项目信息
项目地址丨Address:泉州海景凤凰岛
设计单位丨Design:ACE 筑伦装饰 ×前言设计
设计主创丨Designer:罗炜
设计风格丨Style:现代简约
设计面积丨Area:280㎡
时间丨Time:2023/03
01 客/厅
LIVING ROOM
客厅整体挑空,天光自高处倾泻而下。连通性的客餐厅,使得主空间更为宽敞。在自由的空间中,家人之间的相处随性而简单,真正的联结对生活的真诚态度。
材质为室内带来温暖与触感的同时,亦是设计师匠心独运的艺术表现。现代风十足的家居,柔软舒适的皮革沙发极具质感,深浅色系之间衔接自如,增添视觉层次。体块与材质变化应对空间的功能划分,彰显几何秩序之美。
02 玄/关 PORCH
入门处储存与展示兼备,无拉手柜门,干净整洁,时尚与实用并存,很好地解决了日常生活的根本。回家第一眼,简约优雅又有家的温暖舒适感。
03 餐/厅 RESTAURANT
餐桌之上,烟火人生。餐桌椅的设计结合了金属、皮质与大理石,以简洁优雅的造型创造出一个舒适雅致的就餐环境。
04 品/茗/区
TEATASTINGAREA
品茗区略微区分又自然过渡,完全摒弃传统的独立功能分区,空旷自在但丝毫不空乏无趣。
05门/厅 FOYER
位于二层的门厅,在空间规划上注重二层空间与挑空门厅以及挑空景观区之间的连接互动,在布局上兼具实用性和美观性。
06卧/室
BEDROOM
一层主卧 Master bedroom 主卧是主人最惬意闲适的地方,纱帘轻掩,中和了木饰面的深沉,艺术品的穿插、融合打破了平淡乏味,每一处都彰显着居住者优雅的生活状态与情调。
二层主卧
Master bedroom
二层主卧的设计以简雅为主,剔除繁复与琐碎的装饰,搭配简约精致的饰品,提升了整个空间的质感。
次卧
Second bedroom
次卧作为儿童房,使用简约内敛的色调使人沉淀心灵,配以舒适柔软的床品,编织舒缓宁静的睡眠氛围。
07 电/竞/区
ESPORTS AREA
二层的电竞房利用空间引导情绪的释放与包容,尽可能打开空间让日常生活中达到功能复合,同时保证私密和专属的体验感。
08洗/衣/房
LAUNDRY
独立的洗衣房功能区域彰显着居住者的高品质生活,设计超越技法的功能与形式,将时间与光纳入这处思维空间。
09 卫/生/间 TOILET
一层卫生间
Bathroom
一层卫生间看起来高级而沉稳,延续了整体空间的简洁感。瓷砖的质感赋予空间经得起时间打磨的持久品质。明确的干湿分离布局,引导出简练高效的操作动线。
二层卫生间 Bathroom 二层的卫浴空间设计拿捏有度,功能循序递进而有仪式感,低饱和度色调诠释简约中的精致细腻。
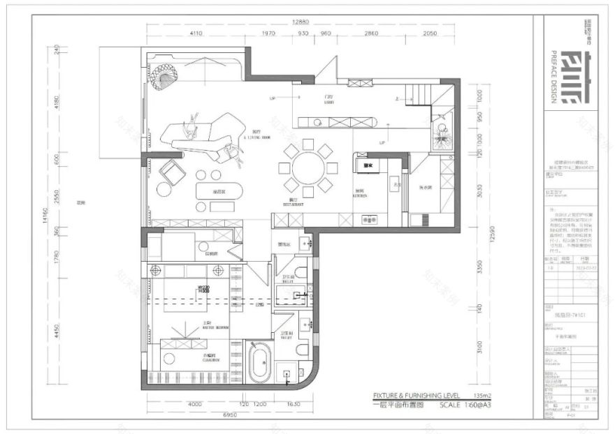
关于平面图 DESIGNPLAN
▲一层
▲ 二层
往期推荐
1. 收下这份 ACE 装修全攻略,快速了解装修标准流程
2. ACE 设计 | 格调十足的禅意东方,慢品中式真韵!
3. ACE × 前言空间设计 | 空间释放艺术,艺术勾勒生活
END
客服
消息
收藏
下载
最近
































