查看完整案例


收藏

下载
▲ 乐兮
空间设计视频
"Architecture is a container for capturing light. Just as musical instruments capture music, light needs buildings that can be displayed."
——Richard Rogers
项目类型 | 办公空间
项目设计 | 张斌、郑载毅
项目概述 /
Project overview
“Less is more”最有质感的设计是简约而不简单。设计师通过建筑的语言去表达空间本身的力量感。简洁利落的造型配合高低错落的空间结构,任其展示本身特性,追寻光影艺术。通过洄游、窥探、穿插、留白等手法使得每个空间相互独立又相互关联,在人与人、人与空间的交互中,打造出工作、交流、休憩的理想办公空间。
CHAPTER
1
空间,构造层次
SPITAL ,
Construction Hierarchy
▼
空间整体以黑白为主色调,以纯粹的材质来体现质感与品味,利用几何线条强化结构、丰富视觉体验。这样既确保了空间的通透性和连接性,又构建了其独有的艺术品味。同时利用百叶窗引入光线,增加空间明亮度,丰富空间层次,诠释独特的空间魅力。
充足的自然光线让整个空间呼吸感倍增,同时木材的使用以及绿植的点缀为空间注入了自然、原生态的气息,从而变得生机、有趣。空间拥有无限的包容性,独特且艺术的软装打造了充满艺术感的品质空间的同时又增添了几分静谧,无论是休闲还是办公,让人能够保持一种松弛舒服的状态。
空间中透着黑色神秘带着白色优雅的纯粹色彩,用大量留白与几何形状打造时尚秩序,表达空间的简洁与宁静,同时传递化繁为简的设计理念。从架构中给身体和思想解除束缚,营造一个生产灵感、想象力的场所。
CHAPTER
2
造型,分隔空间
STYLING , Divide Spaces
▼
从外到内的延伸,黑白与光影进行巧妙地碰撞营造全新的视觉氛围。状若无意的规划与整合,释放出更多可以延伸的场景,给人感觉更加自由。设计师采用借景手法,不仅实现了空间的连接与通透,而且光与绿植、静与动,恰如其分的入境,巧妙至极。
将茶室与洽谈的功能相结合。自然光通过大面积的窗台充盈室内、自然肌理的木质温暖而有质感。光影与绿植造景艺术巧妙融合,灵动且富生命力,创造一种舒适自在、张弛有度的空间氛围。
空间中精致的摆件仿佛是艺术品,它们静静地出现在其中,犹如平地而起的生命,点燃了生气与生命力。在这里,空间是“有限”也是“无限”。不同光带来空间不同的氛围,使人产生不同的心境。身处其中,让人于不自知中剥离心底的焦躁,回归本心。
CHAPTER
3
光影,塑造氛围
SHADOW , Build Atmosphere
▼
如果说空间的转换是情绪的铺陈,那么进入到这里,你会感受来自视觉功能的双重体验。一株植物的造景艺术铺设静谧意境,半扇玻璃如同浅浅明月具象了艺术灵魂,表达了空间情感。于安静无声之中,让空间拥有无限的包容与多元可能。
生活感的基调在于如同家一般的场域中蔓延。几何的线条与立体,在空间中交错、对比,同时充满现代感的色彩与材质又将周围物体一一映射,成为空间吸睛有趣的一笔。温润的木质元素裹挟着生活的悦然,在灯与花的等候下,让一切沉浸于此,充分体现设计师对于设计以及生活自主、自由的个性,隐隐约约渗透出感性脉络。
沐浴在时间的光泽之中,简洁静谧中的质感,一种干净纯粹却更为璞真深邃的美。设计师通过不同的设计语言,缓缓叙述展现本真,以一种尽可能开放的空间去承载生活的联系,赋予其惬意悠然的情感表达以及更加深远的内涵。
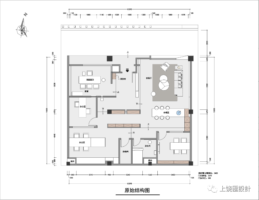
▼平面布置图 / PLAN
项目简介/ Brief Introduction
Location / 项目地点:上饶市友邦壹号公馆
Type / 项目类型:办公空间
Area / 项目面积:200㎡
Design / 设计出品:乐兮空间设计事务所
Project / 设计主案:张斌、郑载毅
Time / 完工时间: 2022年12月
落地出品人 / Designer
设计师 | 张斌
乐兮空间设计事务所
E N D
《上
饶
匯設計》——是设计类专业媒体,报道上饶地区原创设计师作品、策划设计交流性活动及家居行业类访谈。
客服
消息
收藏
下载
最近

































