查看完整案例


收藏

下载

翻译
HYANGSIMJAE Clinic, located in Daegu, Republic of Korea, is a 130-square-meter space and unique clinic that offers advanced medical services different from conventional hospitals by combining Family medicine and Dermatology. We built the concepts of its space design sequentially by communicating and sharing ideas, goals or the future that our client’s desire to purse in this place.
Our client aims to provide customized, persistent and comprehensive medical care to her patients, more than just a simple treatment. Thus, she needed a place to build intimacy and trust, and have communications with patients. Not by applying only external treatments, but by helping to prevent diseases and adding psychotherapy through close relationships with patients, our client intends to focus on both external and internal treatments for patients as their "physician”. In order to offer such services, we created an atmosphere of private area for healing and cure by limiting simultaneous access and the number of people staying there. Furthermore, we contemplated on the programs for comfort and building intimacy so that a handful of patients can take a full rest by owning and enjoying natural elements such as light during their stay in this place.
While designing the exterior of the area, we targeted to make a crude and plain appearance in contrast to the chaotic city. We worked by hand to develop a sense of coarse texture, obtaining artistic presentation. As metals and glass were applied to give an exquisite touch to its rough exterior, this place also reflects urbanism at the same time.
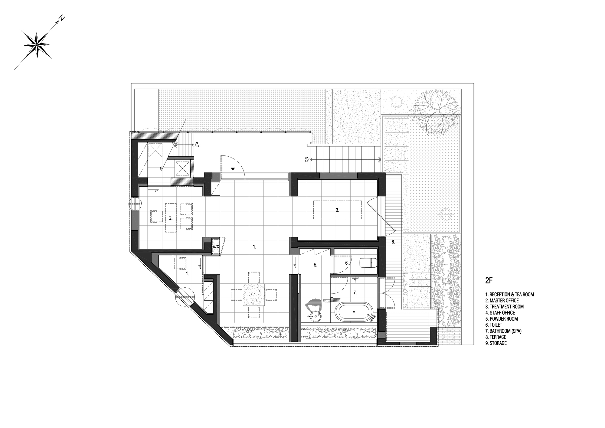
Our circulation planning starts by opening the tightly closed gate and entering this private place very slowly along the garden. This garden welcomes the patients with its ‘air of time’ such as a flow of nature, weather, and time as well as the lights. This ‘air of time’ continues to be in contrast to the complicated city, thus implies true relaxation, leisureliness and welcome. When planning the circulation, it was also important to place uniqueness of HYANGSIMJAE Clinic to where the patients see first when they visit the clinic. To do so, ‘Kitchen’ was arranged to be near the entrance. Isn’t it interesting to see a kitchen at the entrance of a clinic?
This idea came from our client’s philosophy. She did not want to finish the treatment quickly just after glancing at a patient’s face in a white gown. Instead, he desires to communicate in aprons with their patient face to face, looking into eyes of each other, and serving with some coffee or tea and some cookies and bread that he baked. She wanted to have a communication as two individuals, not as a doctor and a patient. Sometimes she can prepare a light meal for the patients, and sometimes he can teach how to cook healthy dishes so that patients can practice healthy lifestyle by themselves.
This kitchen of HYANGSIMJAE Clinic is the very area where doctor’s hope to share with her patients is first displayed. Accordingly, this kitchen is full of what she loves, thinks beautiful and wants to share. Even though there needs to be some classical elements of conventional clinics, we simplified this part with a minimum of items so that it allows patients to see the doctor’s garden and heart. Ultimately, HYANGSIMJAE Clinic becomes a private space of the doctor rather than a conventional clinic, and lets patients be truly healed and relaxed. Nevertheless, what makes this clinic unique is that it is a house that treats people with all its heart like the name of HYANGSIMJAE means.
客服
消息
收藏
下载
最近




























