查看完整案例


收藏

下载
我想有一座房子
面朝原野森林
把所有美好深藏在心
AC 君与大家分享
山涧房
作品来自来建筑
▲山涧房©
唐徐国
文化的形式
形式是建筑学最重要的内容之一,也是建筑师表达设计理念的最直接的建筑学载体。建筑形式生成的驱动力,由诸多因素共同决定。在建造技术革新缓慢的当下,对于文化的探索和表达,是近几年来国家战略中迈向文化自信的重要探索。
▲远观山涧房©苏圣亮
模山范水
在中国古代,文人对于理想世界的想象一直是通过多种艺术手段进行连续的刻画和探索,从文学到山水画再到园林,从文字到图像再到建筑空间。人与自然的关系,是中国传统哲学中比重极大的观念。这些观念的影响之大,一直潜藏在我们的血液之中,以至于我们对山、石、林、泉有着西方文化不曾具备的与生俱来的感受力和鉴别力。“模山范水”是传统艺术创作的基本手法。
▲山涧房©唐徐国
2015 年建成的“深深·深宅”是我第一次意识到这种观念的潜藏。
▲深深·深宅©来建筑
2016 年,我在某高校带毕业设计时,便带领学生做了这样一个“模山范水”的设计研究。模范的图像原型便是山水画——这个被艺术精炼过的理想世界。建筑师的作为则是将原自然之物的形式规律反馈并应用到实际的物理实体当中。
▲元代 《东山丝竹图》
▲“模山范水”的设计研究
在这个研究当中,我们将一幅传统山水画进行了要素的提取,然后转译成适应当下建造体系的建筑实体,再按照山水画中的空间结构关系进行要素的组合,形成一幅现代建造体系下的建筑形式复现。
▲《东山丝竹图》要素的提取
·阁 房·
·云房·
·树房·
·洞房·
·亭房·
·复 现·
山涧房
2018 年,终于有机会将这个原型研究的一部分进行了实际的建造,便是山涧房。基地位于浙江省桐庐县一个山涧之谷中,背靠山坡,面向一条溪涧。
▲基地原状俯视©来建筑
▲基地原状鸟瞰©来建筑
在整个山涧房的构思过程中,除了如何“拟山”这个形式问题之外,建筑形式承载了什么样子的意义空间是思考的重点。在一个类似于山体的非规则形态中,如何组织空间,功能和流线并非是重点,而是建筑“拟山”,人居于“洞”中的场景塑造是研究的基本构想。混凝土框架结构是最适合在地营造的建造体系,以至于形成高低错落的体量关系,是原型研究中的逻辑和结果。
▲远观©苏圣亮
▲仰视©苏圣亮
▲俯瞰 ©唐徐国
三远之意
在实际项目的落地过程中,由具体的使用需求,场地中形成了三栋建筑单体,同时也是三个不同姿态的“山”。因场地红线的限制,呈三角形布局。
▲鸟瞰月塘©唐徐国
·
前山
·
前山平缓,横向舒展。后山高耸,扑面而来。
▲前山©苏圣亮
·侧山·
侧山则卧于一侧。角落一圆形“月塘”,成为实际功能中的泳池。
▲侧山立面©苏圣亮
▲侧山立面©唐徐国
· 后山
· 自河对岸远望,前山后山形成“深远”之势,自内庭仰看后山,如“高远”而望,气势突兀,山势逼人。
▲洞房实验图©唐铭
▲洞房实景图©苏圣亮
▲亭房实验图©唐铭
▲亭房实景图©苏圣亮
▲沿路看后山©苏圣亮
▲沿路看后山©唐徐国
对山而望,三座人造山同背后自然远山层峦叠嶂,以崇山复岭,密树深溪的景象形成“平远”之意。
▲平远之意©唐徐国
山涧之间,遥望一间木屋,屋下仿佛有瀑布跌入溪涧,是画意中点睛之笔。
▲山顶木屋©苏圣亮
▲木屋室内©苏圣亮
▲洞中遥看远山瀑布©苏圣亮
▲瀑布细节©唐铭
▲瀑布细节©苏圣亮
居于洞穴
山可游而洞可居,山形构成之后,山之空处是安放身体的庇护空间。意为“居于洞穴”,洞穴之中,用瓦片来产生居所的暗示。为了让此意变得妙趣,在侧山的雅集之处将瓦片内外反置,将树影投于吊顶,产生一种内外置换的布景。恍惚中,内与外身不知何处。
▲前山洞口©苏圣亮
▲前山洞口©唐铭
▲前山室内©苏圣亮
▲侧山室内©苏圣亮
▲侧山室内©唐铭
▲侧山二层雅集©苏圣亮
▲后山一层餐厅©苏圣亮
▲后山室内©唐徐国
尾 声
山涧房已然建成数年,对于自然之物本身的模拟和转译是建筑师形式操作的最直接操作,但同时不免过于形式主义,除了单纯的形式表现,建筑需要承载更加丰厚的艺术修养,才是内秀的建筑艺术。克制的形式,肆意的情绪是更加充沛的建筑表现。但至少,从形式出发,是建筑师的起点。
▲山间空地©苏圣亮
▲山间空地©苏圣亮
▲山间空地©苏圣亮
▲山涧房©唐徐国
/ 项目图纸 /
▲总平面图
前 山
▲地下一层平面图
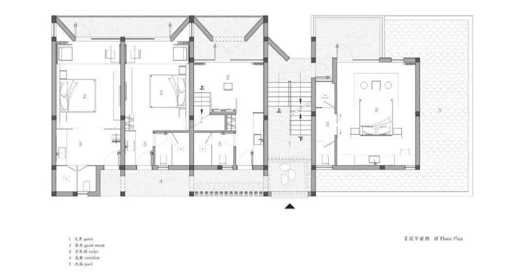
▲首层平面图
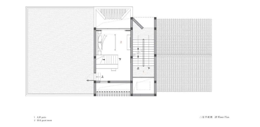
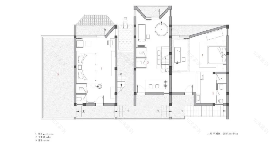
▲二层平面图
▲立面图
侧 山
▲首层平面图
▲二层平面图
▲立面图
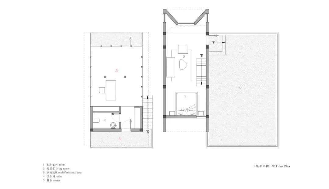
后 山
▲首层平面图
▲二层平面图
▲三层平面图
▲立面图
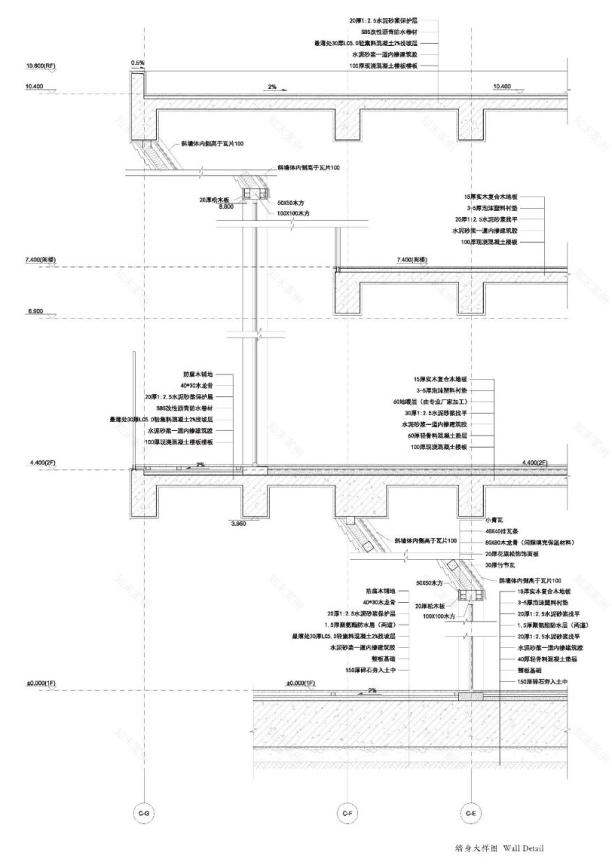
▲墙身大样图
项目信息
山涧房
业主:桐庐县富春江镇山涧房民宿
设计方:来建筑设计工作室
项目类型:民宿酒店
地理位置:浙江省,杭州市,桐庐县,富春江镇
主持建筑师:马岛
方案原型研发:唐铭
设计团队:唐铭,谢佳辰,康瑾, 陈峻,朱松
摄影:苏圣亮、唐徐国、唐铭
结构:钢筋混凝土框架结构
用地面积:1541 m²
建筑面积:1256m²
设计周期:2017 年 1 月-2018 年 9 月
建设周期:2017 年 10 月-2019 年 1 月
投稿须知
编辑丨chang
客服
消息
收藏
下载
最近





















































































