查看完整案例


收藏

下载
设计中的“奢”不止来源于材质奢华,更为居住者呈现了一处现代奢居的理想范本,将品质感和高级感深入每一个细节。417㎡理想家的生活,素雅简洁或奢侈高级,亦或者是两者的结合。本项目设计师遵循屋主对艺术的爱好,以暖白米色系配合干净简洁的线条,打造雅致朴素空间,呈现极致简洁的理想家。
P.01
沙发:Minotti
01奔赴理想生活
富有光泽的大理石、柔软素雅的布艺,共同组合出丰富细腻的肌理层次,赋予客厅更多的生活仪式感,高颜值的现代暖调搭配沉稳自然的米白色,共同奔赴理想生活。
P.02
茶几:Arketipo
挑空复式大客厅营造轻奢优雅的居家氛围,宽敞的阶梯空间在拓宽视野的同时引入更多采光,多层次、立体式设计,平行、交错、排序、对比的设计笔法打造西厨空间,展露“远离喧嚣,享受烟火”的情态。
P.03
餐桌/餐椅:Cattelan
开放式客厅布局赋予家的更多可能性。餐厅以奢雅、高级的空间氛围,将日常生活的情境与现代美学相融合。浅灰色的皮质餐椅,与木质餐桌形成对比,在克制中尽显优雅,在光影之间感受居家的温暖。
P.04
餐椅:Cattelan 02
居家,温馨治愈
衣帽间过滤色彩、形状、质地,从功能性出发,设置明晰简洁的搭配台,将剩余的空间作收纳来使用。U型布局选用自然原木色,呈现舒适自在的居住感。整个衣帽间原木色木地板通铺,同色系木饰面上,隐藏式悬挂区、抽屉区、叠放区让美衣可以更好地被收纳,搭配透光屋顶,阳光洒下来的瞬间,清爽温馨。
P.05
03此刻,舒适造梦
都市精英们更加注重起居空间的私密性,主卧以棕色调赋予空间宁静、深沉的舒适感,午后的阳光透过薄薄的纱帘映入空间,温暖而不耀眼,在保障了私密性的同时感受四季的变化,体会诗意的时光。
P.06
床/床头柜/电视柜:Cattelan
次卧素雅的窗帘与配饰让人彻底放松身心,卧室的地板选择用原木地板和自然色地毯,可以给人营造温暖舒适的感觉。奶油色调的基础下,抱枕点缀,让空间充满高级感与生机。
P.07
床:Arketipo
床垫:A.H. Beard
04 谈判,奢华入局
放下手中的忙碌,静观时光流转,是繁忙生活中心灵的栖息地;自然舒适,随意经典,谈判即刻入局。
茶室里,暗调的设计也有助于突显茶具和装饰品的美感,茶具的纹理、色彩和光影效果更加显著,能够更好地展现其精美和独特之处。室内的艺术品、书画、瓷器等装饰品也能够通过柔和的灯光得到更好的烘托和展示,使整个茶室呈现出一种雅致的美感。
P.08
茶室椅:Lema 05
休憩,大隐于市
隐于市,静于心,雅于境。
时间随着缥缈的空气缓缓流动,光自由舒展在细腻的质感里。一切是那么的圆融自在,安静惬意,大面积的别墅自然离不开舒适的花园空间与自然相伴,明亮整齐,干净利落。
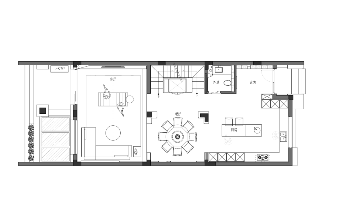
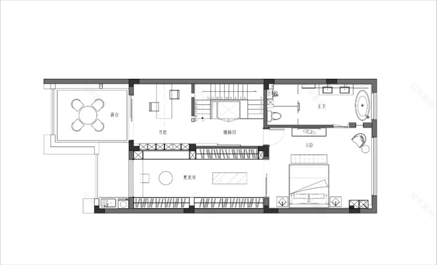
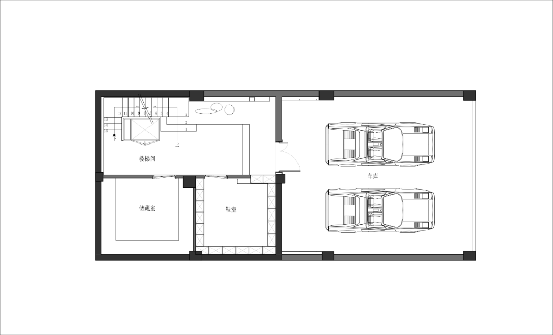
P.09 分析图 Ana lysis Dia gram
一楼
二楼
三楼
负一楼
负二楼
INFO
-项目名称-至序至雅 时间秘境
-项目地点-昆仑公馆
- 项目面积-417㎡
- 空间设计-聿一空间设计事务所 张益琦 周旭旭
- 陈设设计-张益琦 周旭旭 安邸国际软装团队
-项目摄影-吴昌乐
-家具品牌-Minotti/Arketipo/Cattelan/Giellesse/Lema/A.H. Beard
家 | 翡翠滨江·居住哲学
家丨置信原墅 · 内兼外,奢于质
客服
消息
收藏
下载
最近











































