查看完整案例


收藏

下载
土城|环迹 Earth Building / Ring Trace -人与人|城与人 People to People/City and People
在·这座山
On·This Mountain
一半是山 一半是家
Half mountain, half home
一半自然 一半书香
Half natural, half scholarly
一半繁花 一半繁华
Half flowers, half prosperity
本地域/自人文
Local Domain/FromHumanity
·
提炼·融合·形态
土楼是客家文化独有的建筑形态,坐落于闽西客家祖地的崇山峻岭之中,我们从土楼的环形和山峦的起伏形态提炼元素,寓意着万物皆融和生长,也是客家人包容大爱性格下的具象化体现。解读地域,感受人文,理性自然构建的关系,寻找出某种近乎原始的表达,赋予物质世界流畅优美的均衡。
Tulou is a unique architectural form of Hakka culture. It is located in the mountains of Hakka ancestral land in Western Fujian.
We extract elements from the ring of Tulou and the undulating shape of mountains, implying that all things are integrated and grow.
It is also the embodiment of Hakka people’s tolerance and love. Interpret the relationship between region, humanity, rationality and nature.
Find some almost primitive expression and give the material world a smooth and beautiful balance.
形 · 环迹
Shape · ring trace
艺术或有谬误,自然却永不犯错。——德菜敦
→
形
·
语
浸林其中 / 缠绕
Leaching Forest / Twining
大型装置在空中起伏婉转,如烟过尘林,如蔓攀山溪。
月光穿过夜幕,暗藏森林,微光深处,是外在的柔软与内在的丰盈。
Large devices fluctuate gently in the air, like smoke through the dust forest, like climbing mountains and streams. Moonlight through the night, hidden in the forest, dim light deep, is the external softness and internal abundance.
形·语
树冠之上 / 是不断自然生长的姿态
Above The Canopy / It is a posture of continuous natural growth
顺着回旋式楼梯爬升不断上升的高点,延续形态的彩带在移动中不断映射出人行进的朦胧姿态,预示着自然生长不断上升的形态,在空间形式的内部聚焦,在真实体验的外部拓展。
Climb up the spiral stairs to the rising heights,
The continuous ribbon constantly reflects the hazy posture of people moving,
It indicates the rising form of natural growth,
Focus on the interior of the spatial form and expand on the exterior of the real experience.
、
形·语
原始/悸动 Primordial/Throbbing
原始矿物质诱发润泽金色的光芒,温煦而璀璨。
在光影的联动下与简洁的背景相互衬托,相辅相成。
静谧的空间中产生灵动的韵律极具艺术感,
预示着不断超越的上升姿态。
The original minerals induce moist golden light, warm and bright. Under the linkage of light and shadow, it sets off and complements each other with the concise background. In the quiet space, there is a flexible rhythm, which is very artistic, indicating a rising posture of continuous transcendence.
形
·
语
简洁 |是一切的开篇
Simplicity Is The Beginning Of The Story
森林的绿结合白色背景,
赋予整体空间简约童趣的气质,
圆弧异形的线条提升了空间的重复性,
不对等性和趣味性。
Bright colors combined with a white background,
Give the overall space a simple and childlike temperament,
Circular arc shaped furniture improves the repeatability of space,
Inequality and interest.
形·语
诗庭/在林中排演着的这场剧目
Poetry court / The Play Rehearsed In The Forest
明月装饰了你的窗子,
你装饰了我的梦境。
时间带不走美妙的旅程,
它被珍藏于仲夏夜的诗篇。
夏夜月色、萤光、纱幔、花园作为仲夏夜之梦的开场。
The moon decorates your window,
You decorated my dreams.
Time can’t take a wonderful journey,
It is a poem treasured on a midsummer night.
Moonlight, fluorescent light, gauze curtain and garden are the opening of the midsummer night dream.
流动的曲面,回应天真的童心和无限的遐想。
彷如跌入玉兔的世界,寻光逐梦,漫游精神奇境。
The flowing surface responds to naive childlike innocence and infinite reverie. It’s like falling into the world of jade rabbit, searching for light, chasing dreams and roaming the spiritual Wonderland.
形
·
语
环形 |延续
Circular |Continuation
空间设计用弧线,开放,动态的空间平面布局手法,在秩序中寻求变化,连续的流动性空间体验。
Space design uses arc, open and dynamic space plane layout,Seek change in order, continuous liquidity and spatial experience.
形
·
语
润光|万物
Embellish | Creation
阳光给万物印上金色的光泽,
水吧台金箔的原色点缀着绿植一抹翠意给人以鲜明的视觉效果。
The sun gives everything a golden luster. The primary color of the gold foil of the water bar is dotted with green plants, giving people a distinctive visual effect.
形·语
浮萍 | 光影
Duckweed | Light And Shadow
以意以形加以艺术的处理,通过跃动的点状,流动的线条,光影以具象的形式展现,令其具有生命力。自然与艺术在此间也得到了相互的融合。
Artistic treatment with meaning and form, through jumping points and flowing lines, Each beam of light and shadow gives it vitality. Nature and art have also been integrated here.
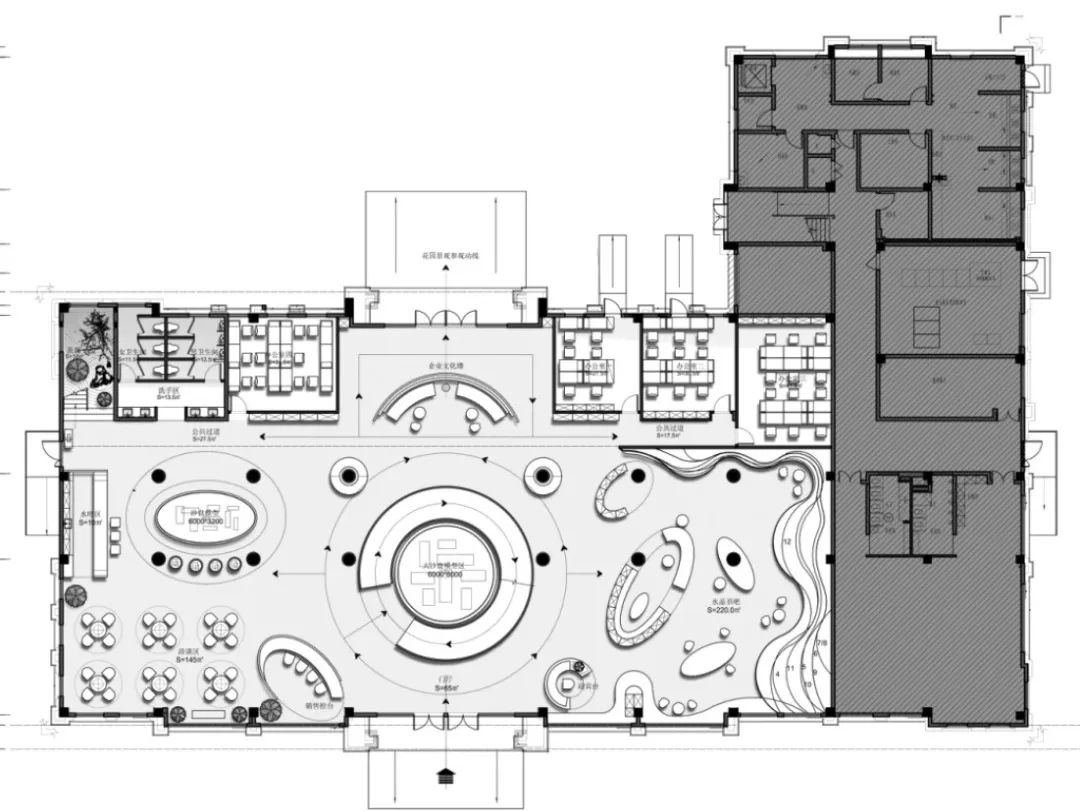
平面分析图
Plane Figure
丨项目名称丨
住宅水晶臻院售楼处
丨项目甲方丨
厦门住宅集团
丨项目地点丨
福建龙岩
丨项目类型丨
售楼处
丨项目面积丨
1105㎡
丨主创设计丨
VHD 设计机构
关于团队
VHD 设计机构创立于 2009 年,秉承“设计温暖城市”的初心,探索人与空间的交互,以设计驱动当代城市美好空间。
管理总部设于中国福建,以华南区域为发源,辐射国内外众多城市,分设上海、福州、厦门、昆明等多个设计管理中心,聚焦地产/酒店/商业/私宅/办公五大城市空间,为各行业的前瞻性客户,提供具有高溢价值的设计一体化服务。
VHD Design Institute was founded in 2009. Adhering to the original intention of "designing a warm city", it explores the interaction between people and space, and drives the beautiful space of contemporary cities with design.
The group’s management headquarters is located in Fujian, China. It originates from South China and radiates many cities at home and abroad. It has multiple design management centers in Shanghai, Fuzhou, Xiamen and Kunming, focusing on the five urban spaces of real estate / hotel / business / private residence / office, so as to provide high-value design integration services for prospective customers in various industries.
集合当代设计领军力量,VHD 链接东方与西方、国际化与在地,为全球具战略眼光的客户打造更美好的场域,创造性提升城市生活体验感,重塑设计的商业价值与人文关怀。
Integrating the leading forces of contemporary design, VHD links the East and the west, internationalization and location,Create a better field for global customers with strategic vision, creatively improve the sense of urban life experience, and reshape the commercial value and humanistic care o
上海中心丨上海市闵行区七莘路 1318 号强劲大厦 612-613
厦门中心|福建厦门湖里区岭下南路 77 号恒辉商务中心 101
福州中心|福建福州中央商务区富力中心 B2 栋 4 层
昆明中心│云南省昆明市西山区前福路凌云大厦 14 楼
TEL - 400 039 8880
客服
消息
收藏
下载
最近





































