查看完整案例

收藏

下载
2023 年 4 月 8 日,“北京红星美凯龙春季大宅别墅设计展”正式启幕,设计展聚焦北京区域的大宅和别墅,几十位设计大咖带来的百余套设计作品,于红星美凯龙北京至尊 Mall 陆续亮相中,2023 年 5 月 31 日前,人们尽可享受一场设计盛宴。
截止 2023 年,红星美凯龙北京至尊 Mall 创立 17 载,始终以“国际轻奢新主义”定义京城家居生活,秉承“优质、高效、便捷”的服务宗旨,为消费者展示来自国际顶尖的家居生活方式,打造至尊级的购物体验。为了让设计的美好得到更大范围的传递,搜狐焦点家居和红星美凯龙作为主办方,开启“北京红星美凯龙春季大宅别墅设计展”线上巡展。本期,设计师金永生带来设计项目案例“北京·丰台·金府大院”,看其如何在两代同堂的四层空间,将东方神韵巧妙融于现代生活。
金永生
Jin Yongsheng
共合设联合创始人
麦驰(北京)空间设计事务所主创设计师
项目名称:金府大院
项目类型:别墅
项目面积:500 平米
项目介绍:如何将东方神韵巧妙融于现代生活?这是室内设计经常遇到的问题。想答好它,很考验设计师自身功底。麦驰(北京)空间设计事务所的主创设计师金永生老师,用 10 个月时间,在北京丰台交出了一份答案。
在这个项目里,金老师以细微严谨的态度和专业理性的思考,将东方韵味巧妙隐于现代生活,“留其神而去其形”,在“禅茶”的大概念里,具象出了“正、清、和、雅”四个主题楼层。每一层自成气象,但又彼此和谐统一。更为宝贵的是,除了完全满足客户眼下的需求之外,还替他们未来生活的一些可能性留足了空间。在此设计中,细致规划充分满足适老化需求与年轻人生活方式相结合,营造宜居的生活环境和安全舒适的生活氛围。在整个五百平米的空间中大部分的门采用了无边框隐形门,隐藏性质能完美融合于墙体,达到极简的效果,减轻空间的视觉负担。客厅
▲一层客厅
这套房子的客户是父子两代人。在空间的划分上把一楼和负二层规划给了儿子,二楼和负一层则留给了父母。如何能让两代人“和而不同”?是金老师在这次设计方案里思考较多的部分。
一层的大客厅可以解决用餐、会客和娱乐的需求。颜色选用了朴素的白色和米色,置身其中,清爽自然。餐桌和沙发作为这个空间里比较大件的软装,搭配依然是克制的白色和原木色,但让人眼前一亮的是橙色的餐桌。
卧室
▲二层卧室
二层是主人房及客卧。
主人房是一个大套房,为了充分满足男女两位主人的日常起居,改变了空间里原始格局,让面积更大。设计了双洗手台、双卫浴、双浴缸,再把两个窗户连起来形成一个整体的效果,看起来更大一些,床头面向景观,每天早起也会有一个好心情。
茶室走廊
▲茶室走廊
连接茶室与外部的走廊处理得非常有仪式感——宽敞通透,还摆放了一台大盆景提升雅致,这样处理的妙处在于如果人从相对更狭小的地库上来,会有一种豁然开朗的舒适感。
能把各个空间之间的关系梳理得很有节奏感,这非常考验设计师的阅历以及文化底蕴。做得好,会给人以完美融合的体验。
茶室
▲茶室
男主人祖籍福建,酷爱喝茶。业余休闲的时间大部分也是在茶室度过的,茶生活早已是男主人日常生活的一部分。所以整个负一层就做成了茶室,也是男主人休闲会客放松的空间。
休闲室
▲负二休闲室
来到负二的“休闲空间”,兼具休闲、健身和娱乐等功能。相对前面三个空间,这个空间用了大量的曲线,让整个空间显得灵动活泼。墙体的材料用了微水泥,有一种干净的高级感。
地下室的采光处理是重点,放大了采光面,光照充足,即便是负二也没有太多地下室感,充足的光线也会让白天的负二显得更加通透,有呼吸感。
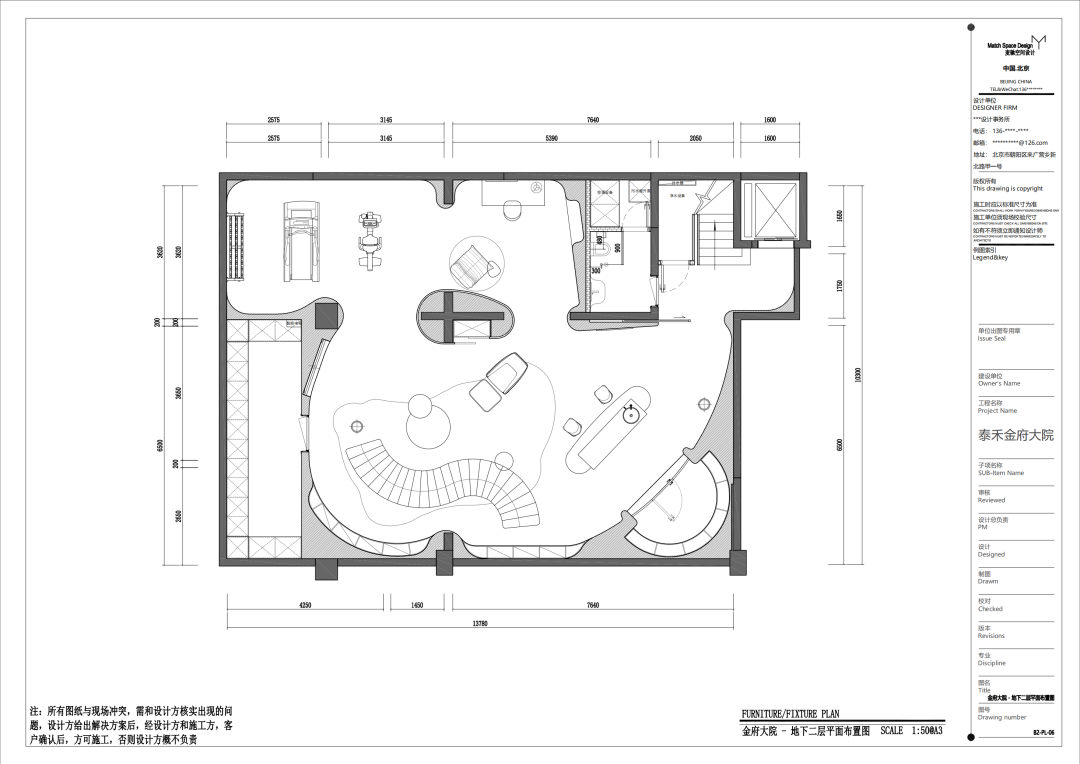
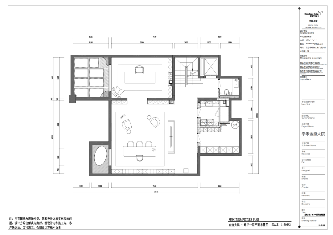
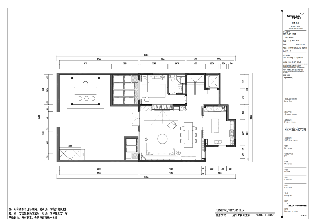
▲金府大院平面布置图
▲金府大院平面布置图
麦驰设计事务所简介:
麦驰空间设计事务所位于北京市,业务范围涵盖住宅设计、商业空间设计、全案托管等设计服务。
麦驰设计坚持以细腻的人文观察和高标准的交付为每一位业主打造理想居所。
作为有着丰富经验的专业设计团队,在设计过程中尊重每一个项目的独特性,拒绝千篇一律的解决方案,在思考与践行的结合下,力求探索“文化+艺术+设计”的生活哲学,致力于为生活有追求的人群提供个性化、定制化的住宅设计服务。
▲实景展示
搭建设计师、品牌与商户的沟通平台,向大众传递美和高品质家居生活方式!
4.8-5.31,来"红星美凯龙北京至尊 Mall",打卡“北京红星美凯龙春季大宅别墅设计展”!
客服
消息
收藏
下载
最近

























