查看完整案例


收藏

下载
飲啖茶,吹個水
中国的茶饮文化拥有的几千年历史,从17世纪茶叶的传入,人们喜欢在茶汤里加入牛奶,让茶饮有了更多的可能。
☄️
#
前言發散
#
*
广州新城区
*
广州老城区
「 廣州 」
,
一个多人口高密度的聚集地,市井气浓郁的城市,如果说在这片土地上制造茶饮文化,
那么城市本土文化十分重要。
☄️
#
調研分析
#
放眼望去大街小巷的茶饮店比比皆是,
装饰几乎都是清一色的简约工业化风,典型的速喝形的卡座,加上天花灯现代简约式的吊灯,表现形式单一,失去品牌辨识度。
身在广州,我们则希望通过
饮茶这件事来体现广州持有的“ 庙街市井 ”的样貌
。体验
具象和抽象并存的感官享受。
☄️
#
品牌策略
#
广东人常说的“ 得闲饮茶 ”,更多的是
来维持友
谊的方式;以感通效应的方式,让消费者在同一时间体验有形的产品和无形的文化。
我们将空间概念与品牌相结合,利用庙街市井的人文地域文化中打造新的质感,如广式复古黄铜玻璃灯、粤式麻将、潮式油纸灯笼。
借以广式地域文化提取的黄铜复古吊灯,在熟悉的环境营造出温馨惬意的空间。
广东老少咸宜的中华传统娱乐项目
「 麻将 」,是维持友谊的一种方式,寓意发财。
传统手工艺品「 油纸灯笼 」,竹子做的灯笼代表着“财丁兴旺”、“德泽绵长”;在祠堂庙宇内,人们会悬挂油纸灯笼以祈求美感,寓意吉祥。
☄️
#
品牌寓意
#
品牌命名以广东方言文化为考量,在包含了产品的同时更赋予了品牌的行为寓意,
具有时代感且经典的
“ 得闲饮茶公司 ”
为该品牌笼罩了一种老广州的复古气质,让品牌形象更为丰满,突显品牌核心。
◆
得闲饮茶公司COLOR MATCHING
◆
得闲饮茶公司SLOGAN
一不经意 横空出世
保留粤式文化的生活场景,亦通过似现代又非现代的手法,重新丰富空间层次。
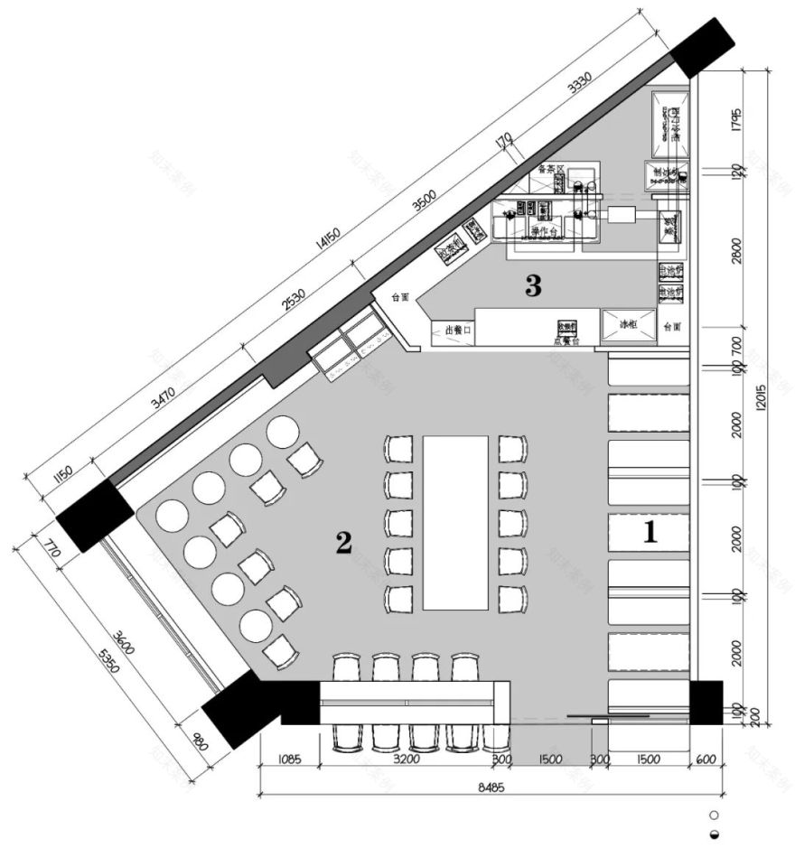
*
平面布局图
☄️
#
空間設計
#
市井的烟火气,人情味,打造广式街头文化氛围,如街边的建筑、楼上的霓虹灯、马路边的游戏机、复古的压花玻璃和发黄的模板。
*
得闲饮茶公司门面
以复古的元素“ 霓虹灯 ”,“ 琉璃瓦 ”融合,老式的玻璃印花,与现代的玩偶融合,充满趣味感。
*
得闲饮茶公司散座区
室内空间利用水磨石间金属条纹来衬托地面质感,墙面一片式的简谱贴砖,再搭配复古灯具,以诠释广式氛围。
*
得闲饮茶公司中岛区
*
得闲饮茶公司油纸灯笼
中岛空间是传统的油纸灯笼,与下方的麻将相呼应;长桌的摆设增强人与人的熟悉感,提升空间的喜庆氛围。
*
得闲饮茶公司操作区
门口正对面醒目的操作台,整片式的贴红色瓷砖,少部分的金属镶边,提升新颖感;利用琉璃瓦式的屋顶分隔区域,折射浓郁风情。
*
霓虹灯与空间的搭配
散座区被醒目的霓虹灯包围,一不经意就会被看做是外摆的空间,霓虹灯把红色桌椅照的红红火火,显得十分热闹;桌椅的可动性,满足聚会的需求。
*
得闲饮茶公司卡座区
统一红色的卡座区,以“ 吉祥 ”命名,凸显复古的黄铜玻璃灯,与镜子形成一个整体,似乎与外界的喧闹毫不相关。
*
灯具与卡座区的搭配
墙上居中独挂一盏老广式吊灯,透明的玻璃折射出“ 發 ”字的喜庆,似夢非梦,似乎回到了八九十年代。
*
游戏机
小角落九零年代的游戏机,仿佛在灯火通明的街道旁打着游戏;待在这里又是另一种风味。
*
得闲饮茶公司外摆区
广东最大的文化特色是
「 饮茶 」;饮啖茶,叹一下,食个包,聚聚旧,是广东人的习惯;饮茶的时间不一定早,但感情却可以维持很久。
☄️
#
得閒飲茶公司
品牌歷程
#
☄️
#
鏈接
#
点击
☟
☞
UP智谷店 | 得闲饮茶公司
☞
喜讯 | 荣获2019SDA深圳环球设计大奖铜奖
☞
展会 | 得闲喜鞋
回首过去整整一年跟这个品牌的一路过来,拿奖-拓店-快闪联名-跨界参展,2020 那就继续发财饮胜,创造奇迹吧。
☄️
#
關於團隊
#
设计 DESIGN
设计公司
|
广州永创设计有限公司 甲方团队 | 得闲餐饮管理有限公司
设计团队
|
黄冠州
邓志荣
罗聪 唐智闯 柯锐滨
建成 BUILD
地址
|
广东省广州市海珠区鸿宏广场店
面积
|
100m²
建成
|
2019
摄影 PHOTOGRAPHY
拍摄
|
阿永
# The End . #
GUANGZHOU ▏ 广州市 . 海珠区
客服
消息
收藏
下载
最近











































