查看完整案例


收藏

下载
广州 永创 無藝 幼儿园 空间设计 美育
今年1月份,无艺三语国际园在广州海珠区光大花园校区落成 。
项目周边有着众多楼盘和学校,其他教育机构离该项目距离较远,有天然优势。
为了更广地吸引周边人群,
所以
宣传与设计显得尤为重要,设计师团队需要结合自身优势打造具有独特个性与体验感的早教教育机构。
园区的设计
皆为了
1.8-6 岁的学生能够在创造性、情感和学习上得到卓越的发展
,
专注为学生创造空间
,通过对视、听、触等知觉的科学刺激进行培养,使在想象力、思维力和创造力上得到更好的提升,
促进孩子的学习和全面发展。
光大花园校区的设计
以简单朴实的氛围向孩子们展示出设计师和教育者的可持续性环保理念,
以确保学生在他们最重要的岁月里,能够获得卓越的教育和优质的成长环境。
☁
/
园
区入口空间-简
洁的北欧风一体化空间
☁
/
洽谈室-入口右侧设立的等候区域
無藝
光大园区室内空间总面积
1000平方米,是简约北欧风一体化定制空间。室内包含6大儿童教室,和1间感统训练室。無藝国际幼儿教育以成为孩子第三个港湾之家为目标,培养孩子成长。
☁
/(从左到右)是光大花园校区主要三大区域,由6大儿童教室与1间感统训练室组成
☁
/
感官训练室-视、听、触等知觉的科学刺激教育培养
☁
/
训练室器材
我们特意在这次园区内
设立了一个近一百平方米的感统训练室,以活力的色彩点缀和趣味性装置,增强孩子们的触觉、前庭觉、运动觉、本体觉等等的对应练习,训练小朋友们的体适能,提高孩子们的大运动能力。
☁
/
园区课室-一体化定制
☁
/
园区课室细节
项目在设计上以原木色为主,搭配白色色调,
明亮又温馨,
以简单朴实的设计向孩子们展示出设计师和教育者的可持续性环保理念。由于是幼儿教育空间设计,因此我们格外注重空间的环保性和安全性,
均统一使用环保材料,
降低对孩子的二次伤害,真正实现设计的可持续性目的。
☁
/
可折叠空间功能-午休、游戏两不误
☁
/
折叠
细部
☁
/
游戏空间-家具定制
☁
/
玩具一角
在园区
内每间儿童教室都设置了游戏区角落,
针对孩子们的常识认知、精细运动和大运动发展,
按年龄段分配不同的益智玩具,
均使用环保材料,所有的桌椅高度按照不同年龄和身高定制,边角椭圆软包,收纳折叠家具均是木质环保材料,色调风格统一。
☁
/
趣味走廊与采光-角色扮演趣味性装置
狭长的走廊特意开辟了一处角色扮演区域,这三个小“体验空间”可以是超市、银行、医院等等,定期改变门店装修。小朋友们可以进行多样角色扮演,不出校门就能体验社会生活。
所有课室都保持门窗最大程度的开放,保持通风与采光。
课室门及墙壁也多采用全玻璃透明装修,增强空间开放感。
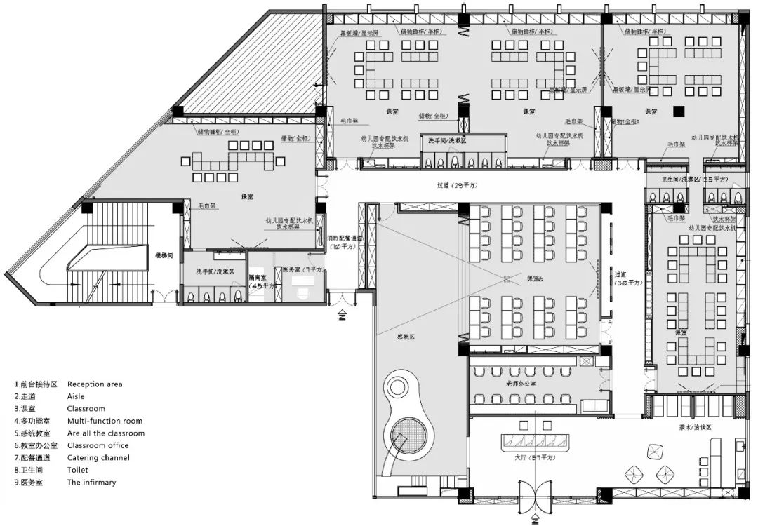
项目图纸
☁
/ 平面图
☁
/
剖面图
设计公司:广州永创设计有限公司
项目名称:无艺三语国际园
地址:中国-广州
甲方团队:广州朗德教育至尚国际教育咨询有限公司
设计团队:柯锐滨、罗聪、邓志荣、龙梓轩
材质:木饰面、木地板、瓷砖、大理石、地坪漆、乳胶漆
面积:713m²
启动时间:
2018年5月
建成时间:
2019年1月
摄影:形在摄影|阿永
关于無藝/
广州永创设计团队
···
END
長按關注訂閱號
客服
消息
收藏
下载
最近









































