查看完整案例


收藏

下载
项目规模:
77
㎡,投资额约
100
万元
项目地点:南京西路
1376
号上海商城东峰
211
室
设计团队:吴方浩,颜宇,孔宁,王玉婷
项目为一家日式怀石料理店,位于中西交融的上海商城内。云韬设计从料理本质出发,返璞归真,以木,石为介质,意在空间中体现原始的精神境界
。
外立面
整个外观采用灰色花岗岩与木板的搭配,酝酿出质朴的感觉,突出店面存在感的同时将室内与室外分隔开来,在喧嚣的市区辟出了一片寂静的空间。
玄关区
进入餐厅玄关区,可以看到凹凸错落的花岗岩主墙面,厚重而又自然的感觉,加上巧妙的灯光设计,让主墙更为灵动。
设置了卡座休息区供客人休息等候,主厨
Sassa
亲力亲为,远赴日本为餐厅采购艺术挂画,为空间增添了艺术氛围。
走道区
通过玄关区进入就餐空间,一条通往
VIP
包间的八米长走道进入眼帘,靠墙处的柜体整合了展示酒柜,服务台,衣柜等功能,地面采用花岗岩与水洗石的铺装,灵感来于日式传统庭院,天花金属雕刻板以及从中透出的灯光使整个空间显得宁静和温馨。
就餐区
餐厅内仅设有一张可以坐六人用餐的吧台。就餐区天花与墙面木板造型形成一体,形成视觉中心,整体形式简洁宁静,让人们可以全身心投入美食之中,同时灯光可以根据用餐时间段调节明暗,让客人感受不同的就餐氛围。
为了让客人尽情欣赏主厨的手艺,吧台采用光滑的桧木菜板,将食物制作的过程展现在人们面前。
吧台后区采用透光大理石饰面,透过暖色的灯光,将大理石的山水纹理充分展现出来。
包间
包间延续了我们的设计理念,采用粗狂的灰色花岗岩作为主墙面,前后呼应。当夜幕降临,透过窗户木格栅,可以隐约看到城市的影像。
卫生间
打造一个纯粹干净的空间氛围,米白色肌理漆与花岗岩的墙面,增强对比。
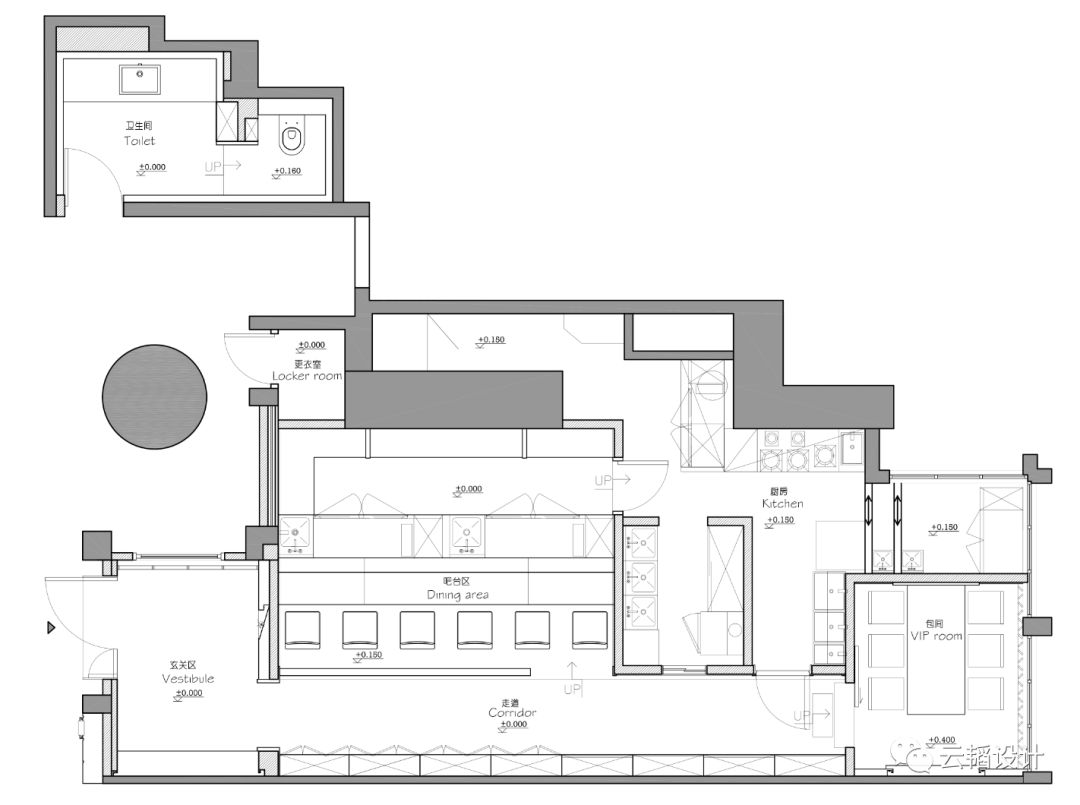
平面图
Wintop Design
云韬设计
Add:上海市普陀区云岭西路589号
客服
消息
收藏
下载
最近



















