查看完整案例


收藏

下载
“家”,承载着主人对生活的热情,不断凝练,不断厘清,成为他与这个世界发生连接的通路之一。
围绕我们对家庭的长远愿望去设计打造。
摈弃风格,东方与西方,古典与现代点滴交融于空间之中,自然而协调。
屋内大
面积
的木质地板与饰面使空间变得更加温润。
休闲区与客厅的隔断被打通,稍作分割,空间更显开敞通透。
筒形金属装置恰到好处的点缀了简约的背景,而附着粗犷纹理的石材让感官在不经意间被唤醒。
卧室内纯白色的基调给人带来静止的感觉。
质感,比例,纯粹,粗朴的色调,温和而不凡的材料共同营造出一种惬意的室内环境氛围。
Name | 项目名称:
36℃
Location | 项目地点:
LiShui City,ZheJiang Province,China丨中国浙江 丽水
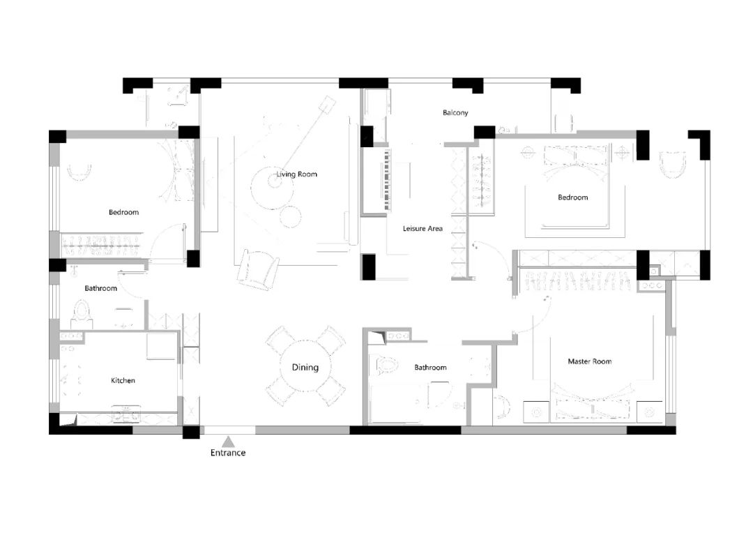
Area|项目面积:
120㎡
Date | 完成时间:
7.2019 |
2019
年7月
Interior Design | 主案设计:
杜志涛丨RE
Interior Design Team | 设计团队:
杜志涛 、陈晓星、朱娜丨RE
聚合能量(RE)设计事务所,致力于以创新的精神为客户提供一对一私人定制式的设计服务,业务涵盖建筑设计,居住空间设计,商业空间设计,私人会所等。
设计风格多样性,大胆,极具创造力。
地址:中国浙江省丽水市永宁星座
客服
消息
收藏
下载
最近



















