查看完整案例

收藏

下载
项目名称 | 中南锦苑
项目面积 | 140 ㎡
项目风格 | 新中式
主案设计师 | 邓佳慧
设计总监 | 由伟壮
施工单位 | 大墅施工
●
说在前面:
设计师邓老师与女业主第一次见面,便能感觉到她内心对于生活最质朴的热爱,男主人十分有文艺气质,女儿文静内敛,儿子活泼好动,是幸福的
四口之家。
双方合作的过程十分顺利,整个方案从确定平面再确定风格,不过见面三次就全部敲定。设计主题简洁明了:不是样板房,没有华丽饰品,只是希望在合理预算下,给业主打造干净素淡自由的格调雅居,以
“留白”美学观念
为基调,营造恰好的东方意境。
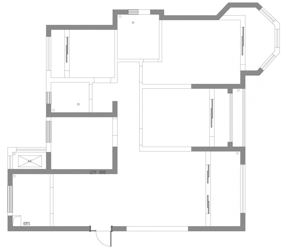
● 原始建筑格局可优化点:
❶
南面主卧室的阳台与次卧的外机位空间可利用,纳入户型面积,增加室内空间
❷
北面儿童房卫生间门正对卫生间干区,应优化
❸
南阳台厚墙改薄墙,放大客厅空间
● 改造后:
❶
北面儿童房间进口独立朝向过道一边,与公卫互不干扰。
❷
主卧室在阳台扩充后整体变成一个独立的隐私空间,更敞亮。
❸
次卧室将外机位纳入室内空间后,房间比例不协调,双面柜设计既增加了储物功能,又调整次卧整体长宽比例;飘窗柜形式既将下水管及承重墙做了隐形处理,又给女儿增加了私人阅读空间。
客厅
宁静高雅是客厅的主旋律
实木线条细细游走于墙面之上
轻描淡写,勾勒出家的框架
错落有致的跳跃色抱枕,增加空间层次感
一幅素雅温馨的画卷由此徐徐展开
客厅软装延续明清时期家居配饰理念
提炼经典元素——海棠花
并加以简化和丰富,
兼具东方情韵与现代元素质感
沉稳大气的色调缓冲了现代生活快节奏感
方正稳重,让人不自觉慢下来
电视背景墙设计尊崇对称平衡原则
配以低饱和度的石材做背景装饰
营造儒雅大气视觉感受
每一处肌理、每一件摆件
都在慢慢实现对生活的构想
阳光洒落,透进窗帘
变得细碎而温暖
柔和的光影晕染出怡情养心的居家环境
餐厅
餐厅通过线条勾勒,产生明显区域感
利用中式元素提升空间格调
超大的储物柜,方便日常收纳
配以花艺餐具相互映衬,体现空间优雅气质
一方长桌,围坐其间
最美好的生活大抵就是吃饭时
家人的距离抬头可见,温情渐长
厨房
厨房位于餐厅后部
玻璃门可有效抵御烹饪时产生的油烟
蒸箱烤箱被嵌入储物柜中
合理的布局让空间动线明朗
主卧
主卧整体空间较为淡雅
开阔的格局规划带来自由的空间感受
未来其它软装也会精挑细选,陆续进入生活
家是一个很长的故事,
需要用一生慢慢抒写
眼中看日升日落
陪爱的人细水长流
女儿房
业主的大女儿最喜欢充满活力的橙色
考虑到孩子正在成长期间
过于明亮的色彩会刺激眼睛
最终设计师选择了柔和的淡橘色粉饰空间
代表少女的活泼感基调立马显现
女业主表示装修完最激动的就是她的女儿有了喜欢的房间
卫生间
卫生间设计干净利落
内卫特意放置了女主人喜欢的浴缸
她说:累的时候泡个澡是最美好的
壁龛设计在节省空间的同时更美观时尚
END
不 看 大 墅 不 装 修
全国咨询热线:0512-52220100
大墅尚品高端研发中心:江苏省苏州市常熟山前街80号
客服
消息
收藏
下载
最近



















