查看完整案例


收藏

下载

翻译
Improving the Human Experience in an Urban Setting At the NewYork-Presbyterian David H. Koch Center, patients receive integrated care and undergo complex procedures on an outpatient basis. The facility’s primary services include outpatient surgery, endoscopy, interventional radiology, diagnostic imaging, radiation oncology, infusion, and digestive disease treatments. With a focus on the human experience, the program provides a comprehensive suite of services for patients in a contemporary and soothing environment.
The design of the leading-edge facility is the result of a collaboration among HOK as architect, Ballinger as medical architect and Pei Cobb Freed & Partners as consulting architect for building envelope and lobby.
A Warm and Welcoming Entry A strong presence on Manhattan’s Upper East Side, the building represents a new urban context for NewYork-Presbyterian. With its wood screen and glazed facade, the center offers a warm, inviting and transparent face to the community. The first of its kind at this scale, the insertion of a wood screen into the triple-glazed assembly along with the undulating pattern give the curtain wall its distinctive and rich architectural character.
Patient- and family-centered care is at the forefront of the building’s holistic design and programming. Whether entering by foot on York Avenue or via car at the drive-through drop-off, the gracious lobby provides a respite from the surrounding congested streets and sidewalks. A wood ceiling in the lobby creates a calming environment enhanced by extensive daylight and vivid artwork. The wood, stone and natural materials throughout the interior spaces of the facility evoke comfort and ease. A prominent reception desk and clear wayfinding facilitate a streamlined and intuitive journey for all guests to minimize stress.
The dramatic stair encourages healthy movement and leads to quiet zones, lounges and dining options on the second floor, presenting a choice for patients, family and visitors. Influenced by hospitality settings, the modern dining area includes restaurant-quality offerings with healthy food, a full juice and coffee bar and a variety of seating environments.
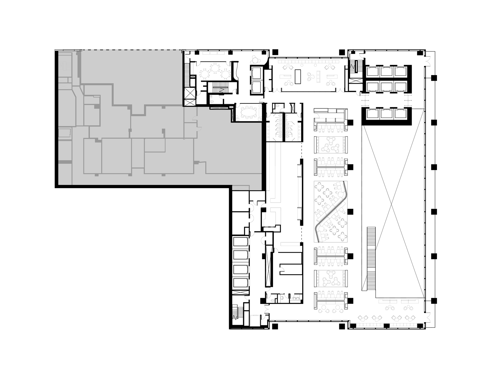
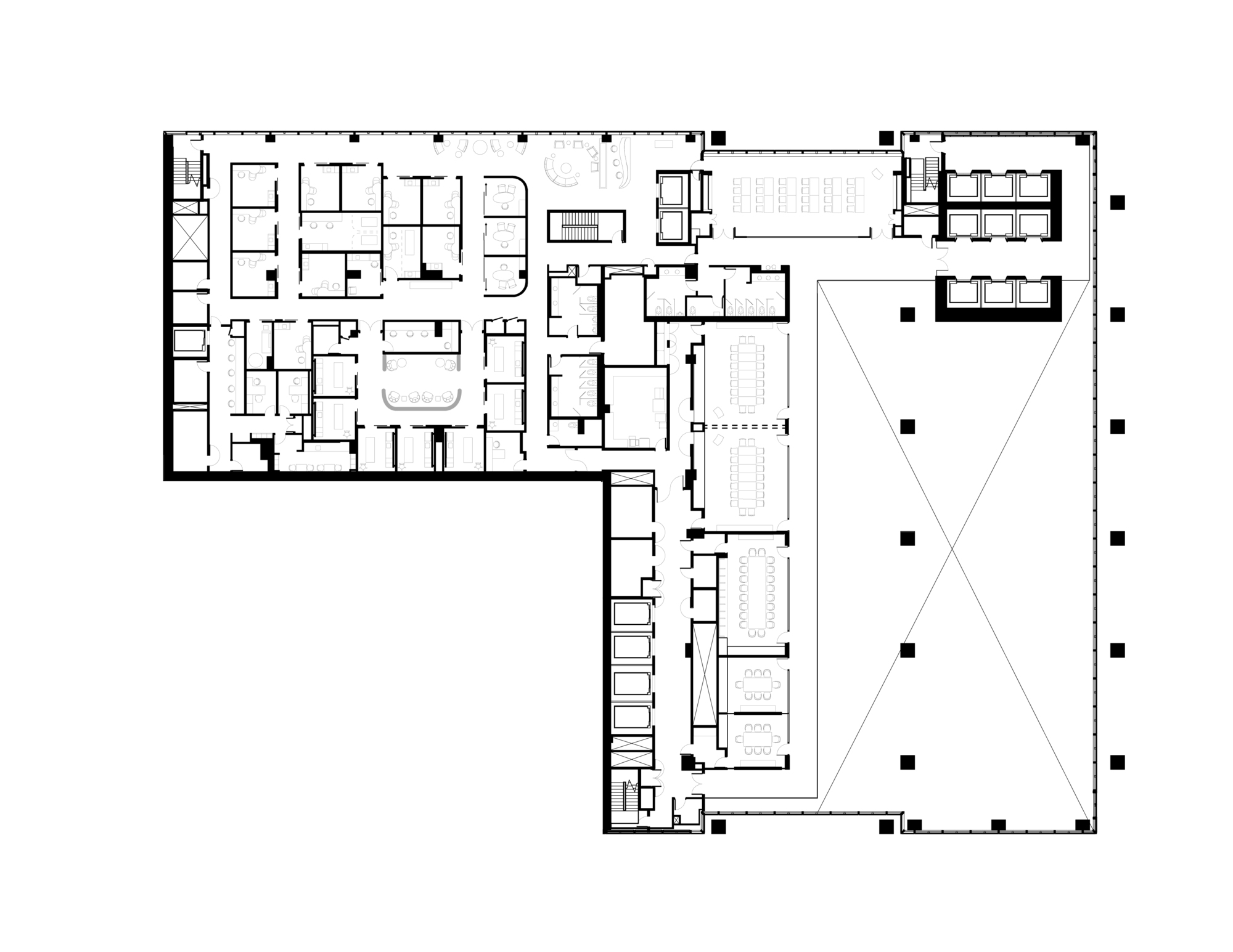
Enhanced Care for Patients Clinical floors continue the timeless aesthetic with a soothing, quiet palette of materials including wood and stone. A typical clinical floor has a sky lobby, 12 flexible procedure rooms and 36 private prep and recovery rooms. Prep and recovery occur in the same dedicated room, which helps minimize patient movements and provide peace of mind for the patient, family and care team.
Circulation is clear, with a separation of “on-stage” and “off-stage” flows so patients and families can travel along the light-filled perimeter corridors with clear wayfinding, and staff can move efficiently throughout the building, minimizing disruption to guests.
Infusion and radiation oncology areas, typically found in basement areas, are co-located on the 4th floor of the building. This allows patients and staff access to natural light, an example of the extraordinary accommodations made at NYP David H. Koch Center to prioritize patient-centered care over other considerations. The infusion area features a variety of treatment environments ranging from private rooms to warm and inviting community spaces.
A fully integrated art program throughout the building hosts a diversity of works at key locations as positive distractions for patients undergoing medical treatment.
Flexible, Adaptable and Sustainable Each floor is designed with standardized procedure rooms and patient areas, allowing for the flexible use of rooms and the ability to adapt to changing technology over time. Critical building systems and infrastructure, that are essential to maintaining building operations during an emergency are located above grade to protect and isolate them from hazards. Designed for a minimum of LEED Silver certification, the center features a green roof, high performance building skin and high efficiency mechanical systems.
客服
消息
收藏
下载
最近



























