查看完整案例

收藏

下载
-NEW HOME
无论是袅袅炊烟,小小村落
还是崇山沃野,大江大河
家人站立的地方
就是我温暖的国
PREFACE
一对夫妻找到我们。
他们入手了一套带院子 5 层别墅。退休的年纪即将到来,女儿目前也已有了小家庭,并且暂居海外。房子装好后,希望可以让女儿一家常来住住,叙乐天伦。
在这个家里,虽然大多数时候,是由业主夫妇二人主导,但不难看出,他们在追寻自我需求的同时,更多的也在为子女和孙辈考虑。“常回家看看”是他们埋在心中的话,想要藉由房子做出一份合适的表达。
把房子装得舒适,大家都有喜欢的空间。
然后,我们全都在一起?
「整屋视频抢先预览」
这个家的拜访,首先会被一段楼梯迎接。由于原始地形的影响,一层的入户门并没有和室外处在一个水平位置。沿着 L 型的小道拾级而上,落地窗携着清爽简约的客厅在眼前豁然开朗,倒呈现出一种曲径通幽的趣味。
推门走进来,加入一场光的狂欢。
这一层空间,客厅和餐厨南北相望,设计师在结构之间制造了透明感。顶上的、墙面的、楼梯间的……四面八方的光汇聚在这个开放式的客厅里倾泻而下,通透明朗,让人神清气爽。
&. 靠近电视背景墙一侧采用挑空处理,有效消除了层高不足带来的闭塞感,也带来了更丰沛的光照。视野更加开阔,空间体验更舒适。
坐深超宽的布艺沙发,随性又别致的枯山水浮雕地毯,这个简简单单的客厅,在光的土壤里抽芽吐蕊,散发出无比纯净、松弛的气息。
&. 依据梁体而定制的吊顶,让空间微微向上拔高。在竖百叶帘的褶皱里,藏起室外的喧嚣。
视线沿着光的路径再往里探,一个宛如艺术装置的楼梯出现在眼前。
在改变原结构的楼梯位置及连接方式后,得到了一个有顶光的楼梯空间,每一层的中间部分,由此被点亮。
&. 除了贯通的楼梯洞口,设计师在顶部的阳光房还预留了一小块采光天井,直通一层。
原本的长条布局得到解放,几处空间由光互通共融,被一片明亮眷顾。
楼梯的另一边,一抹深邃的蓝在墙面翩然起舞,把视线引向明媚的餐厨区域。
&. 一家六口团坐有余的大圆桌。
从客厅延续而来的纯净,铺开了餐厅的背景。表现力满分的白色大理石,正细腻的装点着这里的气质。
客餐厅采用开放式的布局,一个大的岛台不仅是生活仪式感的表达,同时也构建出更多实用功能,例如增加储物和拓宽厨房操作台等。
通往院子的落地窗,则再一次强调出融洽、愉悦的用餐氛围。像来到一座浓郁葱茏的山坡上野餐,在大片的绿意中往返,生活的柴米油盐都变得更有光芒。
舞台在大多数时刻是属于客餐厅的,而当聚光灯停留在卧室部分,它也毫不逊色。
在原始的户型规划中,二层被分割成了多个小房间使用,两个独立卫浴的设计虽然考虑到了使用的便捷性,但逼仄的尺度却会让舒适度大打折扣。改造后,设计师将零碎的小空间整合为三个大空间:
> 南边带露台的卧室是大人们修养身心的一隅;
嵌在床头背景里的石材和木材,刚柔并济,设计师掌握着良好的比例。
> 北边带书房的双床卧室是为孩子们预备的自在乐园;
柔和的大地色,让空间尽显温柔轻巧。木材、石料、棉麻、皮革……设计师在同一个色系中通过材质细微变化,挑染出丰满的层次。
> 中央的卫浴区则被别出心裁的设计成了一个“共享空间”。
&. 两个卫生间被并列布置在南侧/北侧卧室的中央,各自拥有一套台盆以及马桶设备。两个区域之间则以一个双侧开门的淋浴房串联起来。既能满足两个卧室对卫生间的使用频率,也能让各空间拥有更奢阔的尺度,获得更舒适的使用体验。
相较于二层的多样、综合,三层的空间单纯很多。一个功能齐备的主卧大套间被安排在这里,宁静,舒心。
&. 拥有休憩区、衣帽间、卫浴、休闲露台、阳光房等功能空间,尽享主卧应有的奢阔舒适。
抬头向上望,原来杂乱的梁体,已被两片坡吊顶暗自捋顺,流畅简洁,层次丰富。内嵌灯带与板材交叠出一个理想的高度,虚实之间营造出更多的呼吸感。
原户型三/四层为错层结构,楼梯洞口到三层就戛然而止,连接四层的通道被单独另出来,安排在一侧的拐角。这样的排布难免会对空间造成一定浪费。
改造后,通向「四层」的楼梯洞口在「一至三层」洞口侧面“另起一行”,占用了杂物间的一角。
空间的使用功能并不会因此受到太多影响,而三、四两层的利用率却有效提升,还让竖向通道得以整合,集中分布,动线更加流畅、合理。
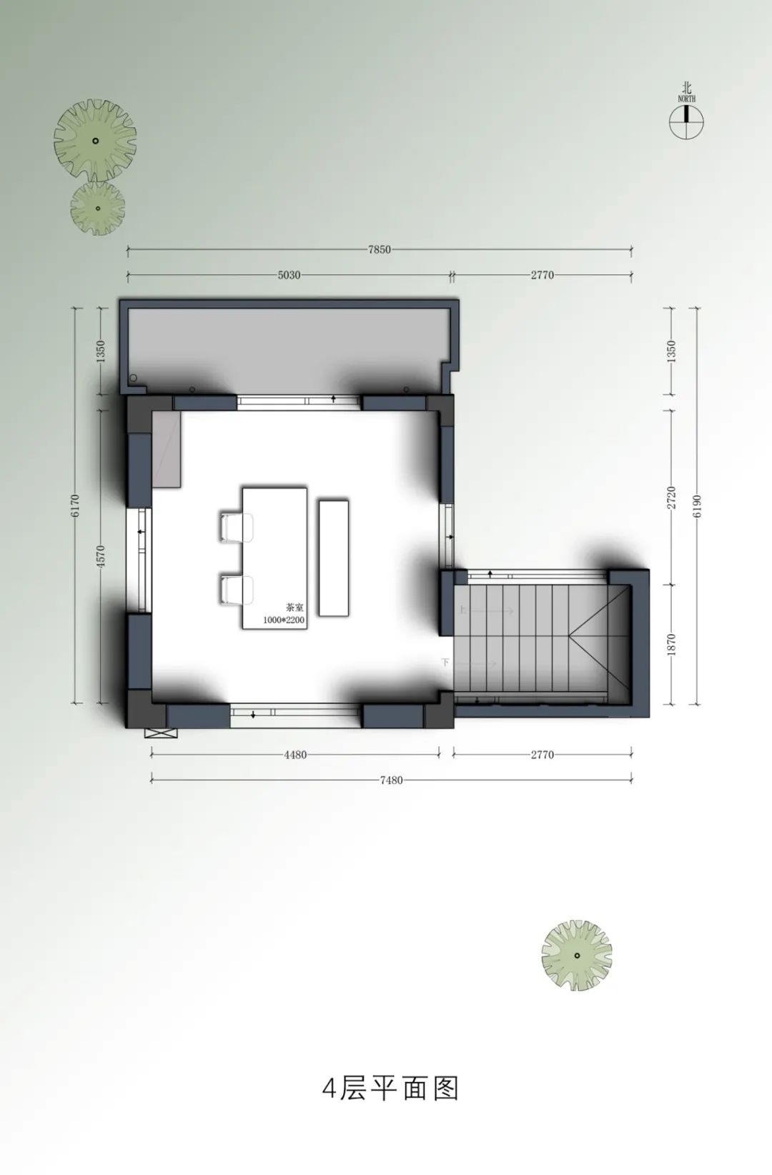
&. 通往 4 层(棋牌室)
地下室作为整个空间的“前序”,承载着日常生活状态中较为隐匿的那一部分。车库、入户收纳、保姆房等功能井井有条的排布其间,根据业主生活习惯和需求划分明确,完成日常归家的动线闭环。
半地下的原始条件,空间原本就拥有一定的采光优势。透明的玻璃,将空间温柔的分隔,让采光优势发挥到极致。再加上发光软膜灯的隐隐蓄力,简洁的亮白色里,地下室的沉闷一扫而空,亮亮堂堂。
这个房子虽然有着优越的自然景观,但内部却有不少棘手的缺憾。
&. 原始户型概况:
层高约为 2.75m,对于别墅尺度来说,略显低矮,容易产生压抑感。且进深开间比较大(本案约 2.3:1,一般合适的比例约为 1.5:1),中央区域易产生暗区。
清浅的白色系对于这个瘦长的户型由昏暗走向明朗起到了很大的作用,但更为关键的秘诀则是在于结构上的改变。
「左右滑动查看更多」❏更改楼梯位置及方式电梯作为无障碍设计的一部分,对于多层住宅来说意义重大。尤其是有老人或小孩的家庭,如若只能通过步踏楼梯上下,会有诸多不便。设计师在对户型结构仔细研究后,决定将楼梯向一侧偏移,并将其由剪刀梯改为 U 型梯,同时对踏步进行拓宽。楼梯洞口随之增大,光线更多渗入,楼梯间更加明亮;踏步坡度也随之减小,电梯有了合适的安装位置,上下通行更加舒适安全,生活品质得到大幅提升。❏增加多种采光通道自然采光通道:阳光房预留了采光天井,直通一层以及客厅局部挑空,带来充沛的自然采光。大面积人工采光:在过道、厨房等空间,大面积使用发光软膜灯,形成犹如自然光线一样柔和且均匀的光照,对暗区进行补充“提亮”。❏灵活吊顶处理-1 层采用对比的方法,压低过道层高,让生活功能区在空间体验上感觉更高,从而去除压抑感。顶面梁体杂乱且繁多,因此舍弃了大面积吊顶的方式,而是局部吊顶,并设置上挑灯带,虚化空间界限,对顶面进行延伸。EPILOGUE-在人口大流动的今天,去异地甚至是异国求学、生活,恐怕会成为一代人都会走的路。浪花滚滚是我们的江湖,但无论潮起潮落,父母的家会是我们永恒的港湾。在爱与被爱的路上,希望我们有机会遇到?项目信息Information━Project Name | 项目名称:伴山香槟园Location | 项目地点:南京Area | 项目面积:500㎡Design Company | 设计公司:北岩Construction Company | 施工公司:北岩END△ 前往主页,查看更多内容近期热文PAST ESSAY RECOMMENDATIONS
北岩设计 2012 年成立于南京,专注于提供高水准与独特性并行的【住宅空间原创设计服务】。10 年间在全国 20 多个城市累计输出 500+优秀设计案例,并凭借专业实力频频出圈,屡获国内外各类设计大奖,成为南京品质家装的引领者。
「 近期荣誉概览 」
2022 法国 Novum Design Award 金奖
2022 美国 MUSE 缪斯设计奖 -铂金奖/金奖*2
2022 美国 TITAN 地产设计大奖 -金奖
2022 亚太空间设计大奖赛 -金奖
2022 OPAL 伦敦杰出地产设计大奖 -优胜奖
GRP 中意国际设计金指奖 -2022 年度优胜奖
2022 Loop Design Awards -优胜奖/荣誉奖
2022 伦敦设计大奖 -银奖
亚太精英邀请赛 -软装陈设大奖
2021-2022 年度 GHDA 环球人居设计大奖 -优秀奖
2022 金邸奖 陈设装饰类优胜奖 复层住宅优胜奖 单层住宅提名奖
2022 老宅新生设计大奖 -优秀住宅空间设计
2022 第八届中国陈设艺术大赛 -最佳色彩设计奖
2022 第十届 TINTA 金邸奖 -优胜奖/提名奖
2022 英国 SBID 国际设计大奖
2022 北美 PI 设计大奖 -优秀奖
2022 年度 PChouse Award 私宅设计大奖 -年度 TOP100
2022 美国 IDA 设计大奖 -荣誉奖*5
2022 金堂奖年度杰出 别墅空间设计&住宅公寓设计
第 11 届江苏省“星空间”杯室内设计大赛 -银奖/铜奖/优秀奖
第 14 届大金内装设计大赛 -全国特色匠心设计奖
中国室内设计精英邀请赛大宅设计+ -top100 设计师
老宅新生 2022 年度 -城市见证者
瑞典 NCS 国际室内设计配色 -认证证书
2021 老宅新生设计奖 年度优秀住宅空间
2021 此城彼色色彩与空间大赛 入围优秀奖
2021 美国国际设计奖 IDA 荣誉奖
2020 年意大利 A’Design Award 室内设计类铜奖
2020 年 TINTA 金邸奖 陈设装饰类优胜奖
2020 年 TINTA 金邸奖 居住空间复层住宅提名奖
2020 年陈设中国晶麒麟奖 空间陈设美学奖优秀奖
2020 年金外滩奖 最佳居住空间奖入围奖
2020 年 M+中国高端室内设计大赛 年度影响力 TOP20
2020 年 kapok 红棉中国设计奖 室内设计奖
2020 年艾特奖南京赛区 别墅设计铜奖
2020 年 BERYL 杯国际高端住宅设计大奖 十佳设计师
2019 年伦敦 OPAL Award 室内设计类金奖
2019 年现代装饰国际设计传媒奖 年度家居空间大奖
2019 年 CCTV 中央电视台<交换空间>榜样设计师
2019 年金堂奖 年度杰出作品(别墅类)
2019 年 Hi-Design 室内设计大赛 别墅组金奖
2019 年 Hi-Design 室内设计大赛 特别应用奖
2019 年大金内装设计大赛全国美宅设计 别墅组金奖
2019 年 IDS 国际设计先锋榜 金奖、银奖、铜奖
2019 年 CIID 中国室内设计大奖赛 住宅工程类入选
2019 年好好住营造家奖华东赛区 TOP20
2019M+中国高端室内设计大赛年度影响力 TOP100、TOP100 提名奖
2019 芒果奖中国人文设计大赛 中国别墅创意奖
2019 拾朝杯年度住宅设计 人物金奖、组织贡献奖 住宅实例金奖、银奖、铜奖、优秀奖
2019 德国高仪·中国住宅设计精英榜 江苏榜单优秀奖
2019 年鹏鼎奖中国空间设计大赛 十佳豪宅空间/十佳别墅空间/十佳公寓空间
2019 年金尺榜榜空间设计年度评选 年度优秀空间设计
18115159715 / 02558711702
南京市雨花台区绿地之窗 D4 栋 726-727 室
(?点击地址,可一键导航)
客服
消息
收藏
下载
最近

































































