查看完整案例

收藏

下载
蓝色诞生时
是谁欢欣叫喊?
/ 聂鲁达
我们都曾经被色彩鼓舞过,早晨透过窗户铺洒下来的金色阳光,阴雨过后的七色彩虹,苍翠或葱郁的森林,又或者皑皑白雪。
相信你已经敢于把这些色彩放进生活中,一支口红的选择,一套衣服的搭配,一件首饰的点缀。可是在家居中,你是否对色彩持怀疑态度呢?
不知道墙面刷什么颜色?还是大白墙吧...保险。不知道选什么颜色的沙发?还是灰色吧...百搭。总之,此刻的你,不再相信那些斑斓色彩的疗愈作用,并没有很喜欢极简的你,也开始学着怎样让家中空无一物,听说这样显得高级。
这一篇,带你去 F 女士和 M 先生家串门。夫妇俩人一个是艺术出身的文艺美少女,爱好插花和收集各种有趣的物件;一个是“有忙有闲”的企业主理人,喜欢阅读和健身,还有两个对架子鼓和大提琴情有独钟的可爱宝宝。他们的家,色彩斑斓也高级感满满。
「整屋实景先睹为快」
项目地址|南京·五矿九玺台
项目面积|613㎡
项目类型|毛坯房设计
项目设计|北岩设计
项目施工|北岩设计
F 女士偏爱色彩丰富的物件,这或许与她的艺术出身不无关系。那些亮眼的装饰、摆件,总是能让她感到心情愉悦、有精气神。
但繁杂的色彩,难免会让整个家显得杂乱。
对配色一筹莫展的时候,酷酷的黑色或许是一种可能。
通常,大多数人以为黑色会带来沉闷感,但实际上恰恰相反,这个由一方玄关打开的小小宇宙,涂抹着大胆、清爽的魅影黑,在来自点、线、面等多重光线的作用下,轻松的将沉闷褪去,精致的生活感化作空间的肌理,就这样从它的身体里一层层荡开。
&. 玄关
门的方向被掉转了 90°,户型原来的缺角被补齐,填上了一个功能强大的独立衣帽间。
从入口进来,打开右手边的移门,便是一个宽敞的衣帽间。家人们可以从容地在这里换好鞋,挂好衣服、包包,还有拆开快递、整理好零碎物件……
设计师借用了原有的户型优势,把玄关功能与衣帽间相结合起来,作为一个缓冲地带,玄关完成了从美观到实用的一系列变化。
干净整洁的入户区,让人一进门就觉得,住在这个家里一定很幸福。
清一色的【黑】从天花蔓延到墙面,简洁沉稳的气氛下光线明亮,这样简单却有强烈个人魅力的开始,吸引着我们继续走进去。
&. 餐厅
从玄关换好衣服进来,就能一眼瞧见这个别致的餐厅。因为承重墙体的局限,它被孤立在 1 层北侧的一角,和以往不同的是,这个餐厅拥有一个独特的 3D 效果背景墙。
使用幻彩玻璃替换了普通墙面作为餐厅背景,既让空间有效放大,镜面的特性也为这里搭建出了一处与其它空间沟通的渠道,让一层的起居空间得以联结成为一个通透的整体。
LA BELLE ETOILE 花瓣灯:来自意大利知名灯具品牌 slamp。亮灯后柔和的光笼罩在灯的四周,梦幻而美丽。灯具变成了空间气氛变换的神奇开关,将纯粹的照明功能巧妙的转化为装饰的主角。
再往里,流畅的动线就开始游走了。
&. 厨房
隔墙全部拿掉之后的空间,厨房和过道完全裸露,像是完全揭开了盖在箱子上的布,没有任何包裹感,四面八方的光线哗的一下全挤进来。
厨房依旧延续着从玄关继承来的【沉稳主题】,魅影黑隐去一切虚浮假象,几片金色穿插其间,格外醒目,在灯光打开的那一刻,凝聚起零散的光芒。一日三餐,释放出无尽温暖。
大面积的发光软膜灯,条形灯带和氛围光源默契配合,让空间产生像自然光线一样,柔和舒适且明亮均匀的照明效果。
岛台不仅在厨房和客餐厅之间形成了不必折返的洄游动线。更重要的是,当大人们在这里准备一顿简餐,依旧可以随时观望到孩子们在其它空间的动态。
&. 客厅
沿着由厨房延伸而来的黑色脉络来到客厅,暗色元素在阳光的照耀下逐渐消隐,色彩得到了更多的表现机会,明黄色的沙发、宝蓝色的单椅、撞色的抽象画,空间充分的展现出有趣的一面。
蓝色单人沙发为 Ligne Roste 写意空间 Facett 沙发:又称砖石椅,灵感来自于折纸游戏,几何切割的多边形,带来意想不到的意趣。
Giraffe in love 长颈鹿灯:来自以充满童趣的动物系列而闻名的意大利家具品牌 Qeeboo,是一款极富艺术张力的作品,打造出一种奇妙的视觉效果。
黄色沙发为 LigneRoste 写意空间 Prado 无靠背无扶手双向沙发:座面宽阔的像一张床,从看到它的第一眼,就让人有“躺平”的想法。
利用室内外的凹凸结构,为室内引入一角“绿植动画”,赋予空间更多的灵动与趣味。&. 主卧整个三层都被当做主卧套间来使用,往南,用于休憩,往北,用于储物。一个井井有条又通透感极好的空间,就这样被罗列出来。
在这里,总会想起冬天生起的太阳——温度不强烈却极其舒适。咖与白斑驳的背景墙纸、黑色的哑光柜体和一些茶色的玻璃,再加上简练流畅的石膏线。这个主卧在层次变化之中,轻盈透气,生长出一种古典的自然气质。
卧室门采用了双开式设计,打造出满满的仪式感。
书房、桑拿房、淋浴间、浴缸应有尽有,满满的舒适便捷。
一个近 30㎡的超大衣帽间占据了整个 2 层北侧,不用再为换季收拾衣柜烦扰,装下一年四季的衣物绰绰有余。
临窗的梳妆台也是少见的“大尺度”,可以放心大胆的囤货了。
&. 儿童房
两个宝宝的房间被布置在了二层。设计师以梁体和墙面作为切入口,一南一北为哥哥妹妹划分出两个各自独属、互不打扰的私密大套间。
哥哥房间:以治愈的蓝色作为主色调,并加入一些活泼的亮黄色,让空间活力满满。
妹妹房间:当干净的白色遇上温柔的鹅黄色,是小公主房间的全新打开方式,俏皮、优雅、甜而不腻。
两个小朋友的房间功能完备,独立衣帽间、卫浴、书案统统都有,能够兼顾学习、生活与娱乐。在此之上,设计师还将楼梯口对面,这块层高较低的区域利用起来,为两个小朋友创造出了一个沟通交流的公共空间,让他们在家中拥有一个沉浸式的“森林乐园”。
&. 休闲空间
在地下室的设计中,我们采用了一种更大胆的方式。在满足房屋安全规范的合理范围内,通过对庭院下挖,打造出一个自然野趣的“垂直花园”。
一方面让地下室实现了自然采光通风,很大程度上解决了暗、潮、霉的问题;另一方面也让鸡肋的地下室焕发生机,变身成一个趣味满满的休闲娱乐空间。
条纹沙发为“妈妈的怀抱”沙发:来自意大利品牌 B&B,是一件集美感与舒适于一体的沙发,放在任何一个空间都能成为亮点。
改造后的地下室融入了影音室、架子鼓室、健身区等多种功能。此外,在色调上,我们希望能够营造出一种更加慵懒闲适的氛围。整体选用了咖色、藏蓝、砖红等色彩明度较低的软装搭配,在光线与空间的折叠中,慢慢流淌出舒适、自在。
&. 其它空间
值得一提的是,为了让空间更具有整体性,在黑白背景的基础上,还选用了“克莱因蓝”作为穿插在每一层中的“线索色”,将整个空间串成一个完整的系列。
每一层楼梯转角处的蓝色乐高柜,彼此之间形成了和谐的呼应。
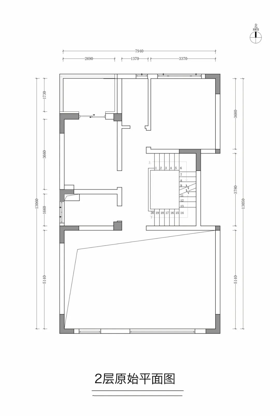
最后,让我们来看看户型上面的改造吧。色彩对于这个瘦长的户型起到了很大作用,但设计师也通过一些结构的改变,来让色彩的作用发挥更大。
原始平面图
( 左右滑动查看更多 )
原户型南北进深尺寸较大,平面不太规整,墙体有一些不必要的凹凸。
交通空间浪费了大量的面积,实用的功能空间面积小,储物紧缺;光线易被切断且形成多个狭长廊道,室内较为昏暗。
二层南向的空间大面积挑空,其它房间面积小且朝北,实际利用率不高。
室内高低不平的梁体和管道,导致部分层高较低,需特别规划。
地下室较小,且采光差,实际利用率低。
原始户型的有较多弊端,但好在结构脉络清晰,有很大的提升空间。
现状平面图
( 左右滑动查看更多 )
#把楼梯向外推,补齐凹陷,有效增大楼梯间面积,安装了方便上下的电梯。
# 打开过道的隔断,布置成开放式格局,让光线得以延展,无声的消除了狭长廊道。
#把二层挑空的部分填平,将垂直空间利用起来。
#通过庭院给地下室借光,让地下室从单一的储藏室延展为多功能的休闲空间。
规划后的平面,各功能区一目了然、井井有条,动线顺畅,光线的通道被大幅度打开。
「 新的生活 」
五彩斑斓的世界总是吸引着我们,从对大白墙的推崇,到色彩的大胆释放,颜色比例至关重要,家居里的我们也在发生着变化。这说明颜色本身并不是追逐潮流的产物,而是一种植根于空间的、合理的情绪表现,来源于对生活意趣最深的渴望。
下一次,希望你也敢在居室里大胆地放进自己喜欢的颜色!
//
朋友介绍的,还不错。家里目前的装修陈列都是符合预期的,感觉家里很整洁,收纳充足的让我们意想不到,而且也都很顺手,井井有条的让人很解压。
很喜欢设计师,始终保持美感在线,有自己对设计的理解和坚持,软装的选择也很优秀。
——屋主
END
△ 前往主页,查看更多内容
近期热文
PAST ESSAY RECOMMENDATIONS
北岩设计 2012 年成立于南京,专注于提供高水准与独特性并行的【住宅空间原创设计服务】。10 年间在全国 20 多个城市累计输出 500+优秀设计案例,并凭借专业实力频频出圈,屡获国内外各类设计大奖,成为南京品质家装的引领者。
「 近期荣誉概览 」
2022 法国 Novum Design Award 金奖
2022 美国 MUSE 缪斯设计奖 -金奖
2022 美国 TITAN 地产设计大奖 -金奖
2022 第八届中国陈设艺术大赛 -最佳色彩设计奖
2022 第十届 TINTA 金邸奖 -优胜奖/提名奖
2021-2022 年度 GHDA 环球人居设计大奖 -优秀奖
2022 英国 SBID 国际设计大奖 -入围
2021 年度 PChouse Award 私宅设计大奖 -城市榜南京 TOP10
2021 年度金堂奖【住宅公寓空间】 -杰出作品
第 11 届江苏省“星空间”杯室内设计大赛 -银奖/铜奖/优秀奖
第 14 届大金内装设计大赛 -全国特色匠心设计奖
中国室内设计精英邀请赛大宅设计+ -top100 设计师
老宅新生 2022 年度 -城市见证者
瑞典 NCS 国际室内设计配色 -认证证书
2021 老宅新生设计奖年度优秀住宅空间
2021 此城彼色色彩与空间大赛入围优秀奖
2021 美国国际设计奖 IDA 荣誉奖
2020 年意大利 A’Design Award 室内设计类铜奖
2020 年 TINTA 金邸奖陈设装饰类优胜奖
2020 年 TINTA 金邸奖居住空间复层住宅提名奖
2020 年陈设中国晶麒麟奖空间陈设美学奖优秀奖
2020 年金外滩奖最佳居住空间奖入围奖
2020 年 M+中国高端室内设计大赛年度影响力 TOP20
2020 年 kapok 红棉中国设计奖室内设计奖
2020 年艾特奖南京赛区别墅设计铜奖
2020 年 BERYL 杯国际高端住宅设计大奖十佳设计师
2019 年伦敦 OPAL Award 室内设计类金奖
2019 年现代装饰国际设计传媒奖年度家居空间大奖
2019 年 CCTV 中央电视台<交换空间>榜样设计师
2019 年金堂奖年度杰出作品(别墅类)
2019 年 Hi-Design 室内设计大赛别墅组金奖
2019 年 Hi-Design 室内设计大赛特别应用奖
2019 年大金内装设计大赛全国美宅设计别墅组金奖
2019 年 IDS 国际设计先锋榜金奖、银奖、铜奖
2019 年 CIID 中国室内设计大奖赛住宅工程类入选
2019 年好好住营造家奖华东赛区 TOP20
2019M+中国高端室内设计大赛年度影响力 TOP100、TOP100 提名奖
2019 芒果奖中国人文设计大赛中国别墅创意奖
2019 拾朝杯年度住宅设计人物金奖、组织贡献奖
住宅实例金奖、银奖、铜奖、优秀奖
2019 德国高仪·中国住宅设计精英榜江苏榜单优秀奖
2019 年鹏鼎奖中国空间设计大赛十佳豪宅空间/十佳别墅空间/十佳公寓空间
2019 年金尺榜榜空间设计年度评选年度优秀空间设计
2019 年拾朝杯年度住宅设计人物金奖、组织贡献奖
住宅实例金奖、银奖、铜奖、优秀奖
上下滑动查看更多
18115159715 / 02558711702
南京市雨花台区绿地之窗 D4 栋 726-727 室
(?点击地址,可一键导航)
喜欢这篇的话,记得或“分享”给身边的朋友!
客服
消息
收藏
下载
最近











































































































