查看完整案例


收藏

下载
獨處於大千世界中獨立專屬的個體小千世界;
人居住,亦舒適、動線合理。
不同材质,不同亮度的中性色,
辅以精致的不锈钢线条,
营造了一个静谧中不失灵动的空间。
不去刻意强调空间的轴线关系,
但追求空间统一的气韵。
迷人的绛红色并不泾渭分明,
而是在不断变化的光线下,相互融合,点缀其中。
▼
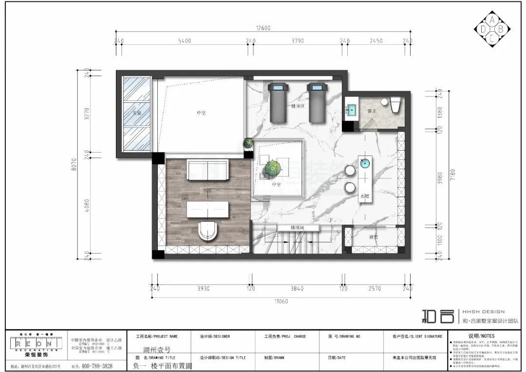
平面深化
Plane Deepening
效果展示
Effect Display
客厅简约、高格调的设计,利用软装、地毯、窗帘线条、灯带,加深空间的纵深感,形成巧妙的平衡。沙发旁的书柜背景,沿袭空调的主色调,使得空间更加富有层次感,绛红色造型摆件,赋予了空间的灵动。
电视墙背景将客厅与楼层的挑空做了一个巧妙的隔断,让空间显得更大通透开阔。内嵌的灯带是分割空间层次的点睛之笔,落地透明纱窗若隐若现,不仅让空间布局统一,拉伸了视线,显得更通透开阔。
开放式厨房的设计最大程度上提高了空间利用率,没有了多余的墙体阻隔,餐厨的空间也更加开阔明亮。
色彩构筑着空间的情绪与温度,静谧而克制,而调和浅色系,在自然光下呈现出更为细腻和柔软的肌理与感官。如此细微的变化就像我们的生活,看似波澜不惊,其实内心却是精彩而不同。
藏酒的艺术,需要内外兼修,靠墙的开放式酒柜,集合大理石吧台,皮质的咖色高脚凳,大气雍容,美观性及文化性也在不经意间流露。
贯穿三层的挑空是设计的一大亮点,设计师巧妙得将绿植置于其中,仿若整个一个中空的楼台,一切那么相得益彰又浑然天成,让整体更大气。
项目地址
:富力·湖州壹号
项目面积
:320㎡
设计风格
:现代轻奢
设计单位
:湖州荣恒装饰
主创设计
:和合美墅 ·黄晓惠
深化设计
:和合美墅 ·朱金上
施工单位
:荣恒装饰金尚施工
软装设计
:荣恒装饰臻源软装
About Us
湖州荣恒装饰 和合美墅 • HHSH
全案设计团队,由设计师黄晓惠 HuangXiaohui 创立,是一支多元化的专业设计团队。
和合美墅提供高品质的室内设计、风水凶吉、软装定义及全案VIP设计服务。
设计改变生活,设计创造价值,我们将始终一如既往,专注空间美学,以卓越的创意探索未来无限的可能性。
▼
Tel:400-788-3828
客服
消息
收藏
下载
最近


























