查看完整案例


收藏

下载
《闲·憩
》
◆ 所在城市 | 嘉兴
◆ 项目名称 | 台昇国际
◆ 设计风格 | 现代
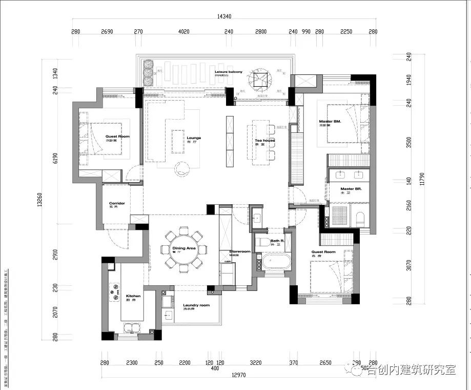
◆ 房屋户型 | 平层
◆ 房屋面积 | 148m²
◆ 项目设计 | 丁晖
◆ 软装设计 | 丁晖
CO CREATION DESIGN |
合创内建筑研究室|
■
设计解析
世界纷纷扰扰,
每个人都无奈地,在拥挤而沉重的钢筋森林中努力生存,街道永远繁忙,脚步永不停歇。
而家,
只需懂得你的喜好,配合你的习惯,分享你的秘密。
■
实景赏析
01
客 厅
Living Room
客厅作为公共区域的中心位置,通过形体的摆放和材质的选择,形成一个温暖且舒适的交流互动的中心区。
客厅与茶室之间其实没有很明显的空间分割,电视背景墙充当了隔断功能。
02
餐 厅
Dining Room
开放式用餐空间舒张通透,餐桌的温润色泽与突显空间气质的定制整木相辉映,头顶纯白的点缀灯光,恰到好处地延伸空间动线,以点与线的层次递进,营造围桌而食的温馨氛围。
基于他们的生活习惯与方式,厨房采用了敞开式设计,高柜加低柜组合满足丰富的收纳,厨房与餐室之间没有切隔,光线和视野可以自由游移,加大既有空间的明亮感和通透性。
03
茶 室
TeaHouse
如同这城市树下的阴凉,给人以庇护,阻挡夏的迷乱,阻隔阳光的窥探,给予一段时光里最幽静的午后惬意。
丁晖
合创内建筑研究室
创始人/设计总监
设计生活的本来
嘉兴青设会创始理事
中国建筑装饰协会会员
注册高级室内建筑师
中国室内装饰协会CIDA会员
社会·荣誉
2010中国室内设计年鉴上榜作品
2017嘉兴室内设计TOP30
2018中国浙江十大新锐青年设计师
2019金住奖嘉兴十大居住空间设计师
2019金住奖全国百杰居住空间设计师
2019嘉兴十大优秀室内设计师
......
点击阅读原文,了解更多设计
客服
消息
收藏
下载
最近











