查看完整案例


收藏

下载
此次案例,是我工作室同栋楼的一个酒店项目。甲方boss先在本栋做了两层酒店后,找到的我 。首要要求就是节约成本 ,并且好看。 因为之前做的两层传统型商务酒店资金投入并不低,但是仍卖不上价 。所以这次强调再三的就是控制预算 ,甲方给到的预算仅够做经济型酒店, 做精品型酒店品控又跟预算不成正比 。 但是做经济型酒店跟某庭 某家又体现不到竞争优势 。那么我们该如何来获得最大的经济效益 ?考虑到该项目的地域性 以及对周边主要客群进行调研 ,决定朝年轻人比较喜欢的都市民宿的调性来设计,同时节约成本的同时环保性不能降以及后期使用维护的便利性等等。为了节省造价又尽量保证效果,在方案设计上既要保证个性化设计,避免每间雷同,给到客户不同的体验感与新鲜感同时又要控制成本。主材选择上,还得个性中求共性,选择尽量相同的材质,一方面单价低,能够拿到工程价,另一方面材质总类较少也能减轻损耗从而降低预算。图纸设计和软装清单上可谓没少花功夫,在方案施工落地上更是操碎了心,所幸结局还算圆满。
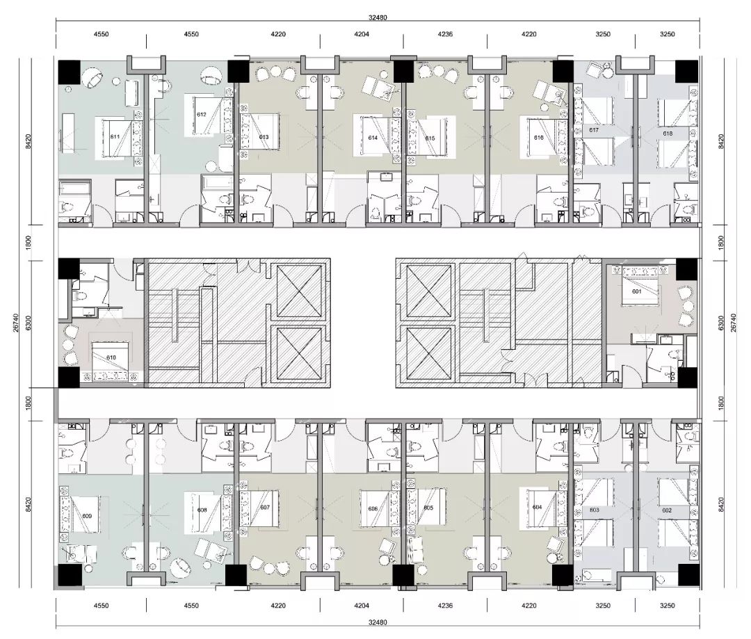
LAYOUT PLAN
布局主要以大床房为主
含最大的4间以及主力户型8间
最小户型30平以下的共计6间
狭长形的4间设计为标间
方形的2小间设计为榻榻米大床房增大了空间的视觉感与舒适度
NO.1星河 Milky Way
色彩上:
主色调:深蓝 灰色 白
点缀色:墨绿 脏粉
造型上:
1.利用左边柱子外凸的厚度,靠右侧同时砌了个一致宽度的墙,同时利用色彩使床头起到了一种围合感,有助于增进睡眠
2.深蓝色背景墙处为石膏板造型墙,与下半部分灰色墙之间有10cm高差,利用两者之间的高差内嵌了灯带,从色彩上和立体构成上都增加了该背景墙的层次
NO.2#尼罗河花园 Nile garden
色彩上:
主色调:深蓝 墨绿 白
点缀色:脏粉
造型上:
利用色彩做区域划分
休闲区、睡眠区、衣帽区、洗漱区
利用玻璃隔断作为衣帽区与洗漱区的分界,即通透同时又防止衣服溅湿。
深蓝与墨绿为主基调的冷色系床背景,点缀暖色系的脏粉线条,活跃了整个墙面。
NO.3蓝色华尔兹 Blue waltz
色彩上:
主色调:深蓝 白
点缀色:墨绿 黄
干净纯粹的深蓝色床背景搭配墨绿色床头,充满时尚静谧之感。墙面上做了减法,在地面上则选用了丰富一点的仿鱼骨地砖。挂画与装饰壁灯丰富了单一的深蓝色墙面,同时暖色系的点缀 增加了空间的冷暖对比。
NO.4 格伦森林 Glen Forest
套内面积26的小套间采用了榻榻米的设计,将睡眠区与洗漱区完全分开来。该空间因为面积较小的原因,睡眠区整体作榻榻米 卫生间与电视墙也是节省空间做了Z型半高隔墙,一半作为电视墙,另外一半则是洗漱区,节省空间,放大空间的效果。同时,洗漱区选用了顶装吊镜,充满时尚感。另外在卫生间较小的情况下,同样实现了干湿分区。床背景做了纯粹的墨绿色,为了平衡画面感与冷暖对比选择了与绿色作为互补的红色系,毕加索的《梦》装饰画。
NO.5挪威森林 Forest Norway
同样的利用左边柱子外凸,右边墙面做了对称,床背景墨绿色块做了延伸,让睡眠区有种包裹感。金色元素的玻璃球吊灯与床背景作为互补色的装饰壁灯使空间更加丰富和精致。
NO.6咖啡玫瑰 coffee rose
酱紫红与深蓝、浅灰色系的床头背景色系组合给人以神秘、时尚 、精致的感觉。酱紫红与深蓝色都是比较暗黑系的颜色,用灰色柔和,用浅蓝色提亮,床头背景通过色构与平面构成丰富了整个空间效果。
NO.7罗马假日 Roman holiday
蓝绿灰搭配白色主基调,点缀色则以与之同类色的深蓝与互补色的橙,同时减少空间色调的兴奋度,加以灰色和黑色调和,给人以休闲、清新而理性的氛围。
NO.8柠檬 Lemon
色彩上:墙面设计以白色为主 点缀姜黄色3/4圆活波俏皮而充满文艺感,右边圆点组成的蒙娜丽莎画像色彩和形状构成上都与之呼应。值得推荐的是这次选择的瓷砖厂商(成都本地的冠承建材)。最初是准备选择用仿鱼骨纹强化地板,想到更加节省造价一点,但是环保度和后期使用清洁等等都不如地砖,这次的地砖工程价相比地板更便宜,只是加上铺贴人工价相对比地板高10多一个平方,但是从长远来看,这个还是比较值得的选择。
NO.9黄金海岸 Gold coast
26平左右的小套间做了榻榻米的设计,物品高度降低,空间有增大的作用。同时使用舒适度与亲和感大大提升。姜黄色墙面搭配白色水洗棉床品以及深橙丝绒抱枕与麻质藤编靠枕,亲肤、质朴而温润。
NO.10 雏菊 Daisy
墙面做了半墙的姜黄色块搭配精致的3cm黑色腰线,电视墙则选用了浅灰色与床背景造型呼应。墨绿色丝绒与姜黄色墙面的搭配加上少量的黑,时尚而精致。黑色的69¥宜家边几作为床头柜性价比与颜值兼得。
NO.11重金属 Metal rock
甲方因为前车之鉴,以前酒店就是全铺地毯,性价比不高,同时维护清理极为麻烦,同时客人反应度不好,就算清理了也会心里感觉脏。所以此次出榻榻米房间睡眠区为地板外全屋均采用地砖,更方便维护与打理并且耐久,但是与此同时地砖显得空间冰冷。为了增加空间的饱满感与舒适度床尾均增加了与空间搭配和谐的床尾地毯 。
NO.12邂逅 Encounter
NO.13甜蜜梦境 Sweet dreams
粉与白上下分色,用黑色作为点缀腰线,空间温馨而时尚。床头背景与电视墙背景作了色块逆方向对称的设计,空间灵动,且具有平衡的美感。
选择与空间色调相呼应的装饰画,合时宜的挂画对整体空间有点睛之笔的作用,装饰画也并不是要非要刻板的三联福或者居中,而是从色彩、比例、大小构成等等与墙面之间都有关系 。单独选购画芯,再另外买与之尺寸合适的画框自行装裱会比成品挂画性价比更高 本次的挂画加画芯60*90的尺寸平均100元左右每幅。
除了装饰画外,比较值得一提的是本次案例的所有植物。为了避免甲方boss节省预算而选择棕色带花陶瓷花盆或者绿萝发财树等等的植物,亲子带他们到三圣乡花市批发市场淘的水泥花盆35/个,然后再挑选不带装饰盆的植物自行栽种,这样能节省不少,就拿这颗橡皮树来说,原始一盆橡皮树110/盆(裸盆)因为本身比较茂密所以分成了四盆来栽种,那么看到的这个成品橡皮树均价不到100/盆。
其实不一定要贵的东西堆砌,只要花心思的搭配同样能出效果。设计师不仅要做好设计,同时也要
为客户控制预算和
权衡整体效果。
客服
消息
收藏
下载
最近














































































































































