查看完整案例


收藏

下载
Name | 项目名称
仓山郭宅博物馆
Designer | 设计师
王佳思
Landscape design | 景观设计
李伟平
何伏香
Location | 项目地点
Fuzhou,Fujian | 福建福州
Photography | 项目摄影
李迪
Area | 项目面积
500㎡
高山屏户第
占地靈独秀崇祠南北留胜迹
白水繞田園
樹人傑豐華玉湖子弟競風流
千年历史文化古村——郭宅,地处仓山南台岛的中心地带,南台岛是闽江之中的一颗璀璨明珠,被誉为“琼花玉岛”。公元前,这里是闽江下游的湖泊沼泽地带,小岛小坡纵横,水系发达,渺无八烟。唐朝末年,郭华公携家眷在此开疆辟土,千百年来郭家子孙勤劳耕耘,逐步演变成今天欣欣向荣的郭宅村。
【项目改造前】
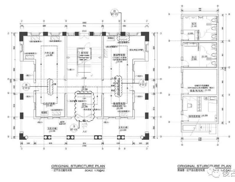
展馆的楼梯是民国时期建筑,分别为主楼与附属楼,已经拥有一百多年的历史,它的前生是原盖山乡医院,我们的设计目的是将它规划改造成为“郭宅村历史文化博物馆”。
【总平图 1F】
【总平图 2F】
【改造后实景】
“郭宅村历史文化博物馆”如果说空间是它的躯体,那故事一定是它的灵魂。郭宅村的历史起源我将由一个人和一件事开始说起,这个人就是当年平定安史之乱的唐代汾阳王郭子仪。子仪公的后裔于北宋年间入闽并且留居,在此地已经繁衍了千年,而郭宅也是得名于此。郭子仪是唐中兴时期名将,他平息安史之乱功高盖过主而主不疑,因此郭子仪给后人留下了八个字“忠贞、智勇、宽仁、豁达”,也就是这八个字时刻警醒着郭家后人,做人顶天立地、刚正不阿。子仪公、郭华公等都是郭家老祖宗级别的人物,因此我在历史起源部分对他们进行一个简明扼要的人物介绍与郭宅的关系介绍。前面提到的一件事儿就是清末民国初期著名的黄花岗起义,又称广州起义。世人也许不知,黄花岗七十二烈士中属于我们福建户籍的一共有 27 名,而其中 7 位英雄,就是出自郭宅。虽然黄花岗起义最终是以失败告终,但是它打响了辛亥革命的第一枪,对于革命历史进程的推动作用是非常巨大的。
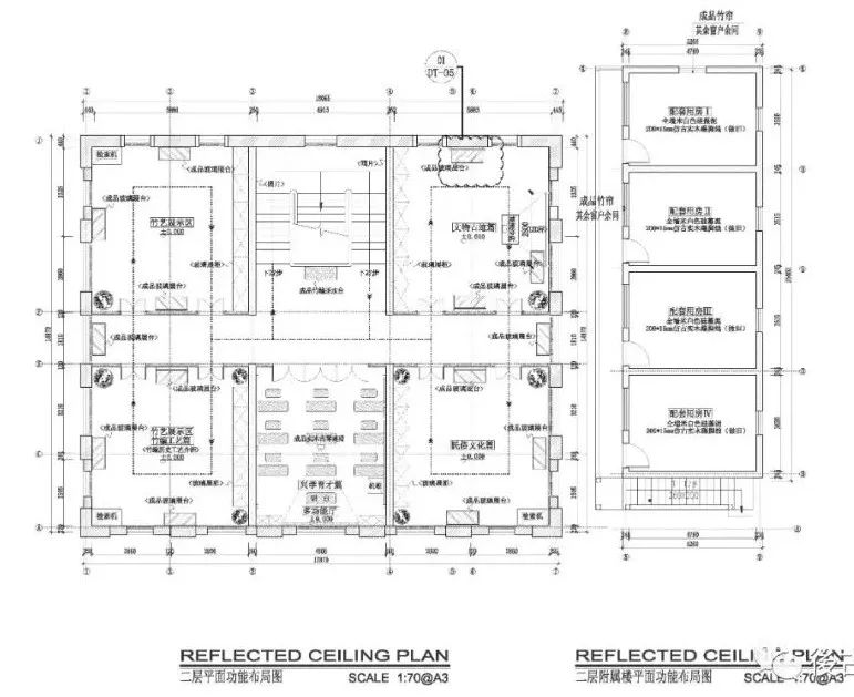
展馆主楼分为一层与二层两个楼层,一层我将它设计为“郭宅村历史文化博物馆”,展示的主要内容为郭宅的历史起源、历史人物事件以及郭宅村的当下建设、未来发展等等,也就是郭宅村的“昨天、今天、明天”;而二层我将它设计为“郭宅村民俗文化生活馆”,展示的主要内容是郭宅的民俗特色与民间名人轶事,例如郭宅的竹器文化等等。
千年郭宅
竹艺永传
家家户户是车间
男男女女是艺人
八闽竹编第一乡,那宅村人人会竹编手艺。小孩即使书读得再棒,老人也会以“手艺在身,不饿本身”为曲,让他们从小就学编筐编签。历经千年的竹编工艺是千年郭宅人的饭碗,是郭宅历史文化的经典。郭华开创了郭家竹编的历史。当年正是白湖河将闽北大竹和永泰细竹和良竹扎成竹排,由闽江蜿蜒而下运至郭宅上岸,每年运竹时,整条白湖河因为挤满绿色的竹排而成为一条绿河,上等的竹料和郭宅人的竹编手艺完美结合。很快,他们编织的竹质日用品因好看耐用很快风靡了整个福州,逐步走向整个世界,郭家人因此有了独有的谋生之道。
全馆另一个特色主题就是“乡愁”,主要讲述着“玉湖娇子,海外侨胞”等等为郭宅做出杰出贡献的名人轶事,例如玉湖娇子郭鹤年、国家院士郭孔辉等等。
抗日战争时期,在海的另一边,郭宅侨亲们心系祖国,积极的捐资捐物,支持国家的抗战事业。
解放后,更是以郭氏兄弟集团为代表的海外侨亲们为支援家乡建设做出了重大贡献,铺设道路、创办医院、支持教育等。
也正是因为近代各时期的侨亲们为家乡做出的无偿贡献,使得郭宅成为了远近闻名的著名侨乡。
树虽高千丈,落叶终归根,我们的“乡愁”主题就是为了讲述郭宅人“饮水思源,不忘初心”的传承。
客服
消息
收藏
下载
最近





























