查看完整案例


收藏

下载
只有用心灵才能看得清事物本质,真正重要的东西是肉眼无法看见的。——《小王子》
ALICE
52 赫兹的鲸它叫 ALICE,它 1989 年被发现,从 1992 年开始被追踪录音。在其他鲸鱼里面,ALICE 就像是个哑巴,它这么多年来没有一个亲戚或朋友,唱歌的时候没有人听见,难过的时候也没有人理睬。原因是这只孤独鲸的频率有 52 赫兹,而正常鲸的频率只有 15-25 赫兹,它的频率一直是与众不同的。
其实世界上每个人都是 ALICE,不同的喜好、不同的生活方式、不同的生活经历,让我们拥有自己的频率,变得独一无二。也许会在某些时刻觉得孤单,但一定会遇到一个频率相同的人,会陪你做一切你想做的事,会懂你的特别,这也是我们命名 52Hz 的原因。
52HZ
施工现场
戒环&戒托引伸的弧形拱顶元素,塑造出穹顶般庄重恢弘的仪式氛围感。婚戒定制就应该是这样。
P.01
P.02
P.03
玻璃、金属与曲线赋予它柔韧的雕塑感。
拱顶和镜面元素,拉升空间的视觉高度。
石库门的老地板诉说着岁月的痕迹。
P.04
P. 05
P. 06
“最美的设计应该是建筑在时间之上的。”——贝聿铭
正如钻石一样,越是久远地经受时间洗礼,就越能焕发炫目的光辉。
P. 07
P. 08 似声波频率阵列的不锈钢造型是动态矩形构成的圆弧√2、√3、√4、√5、√6、√7......
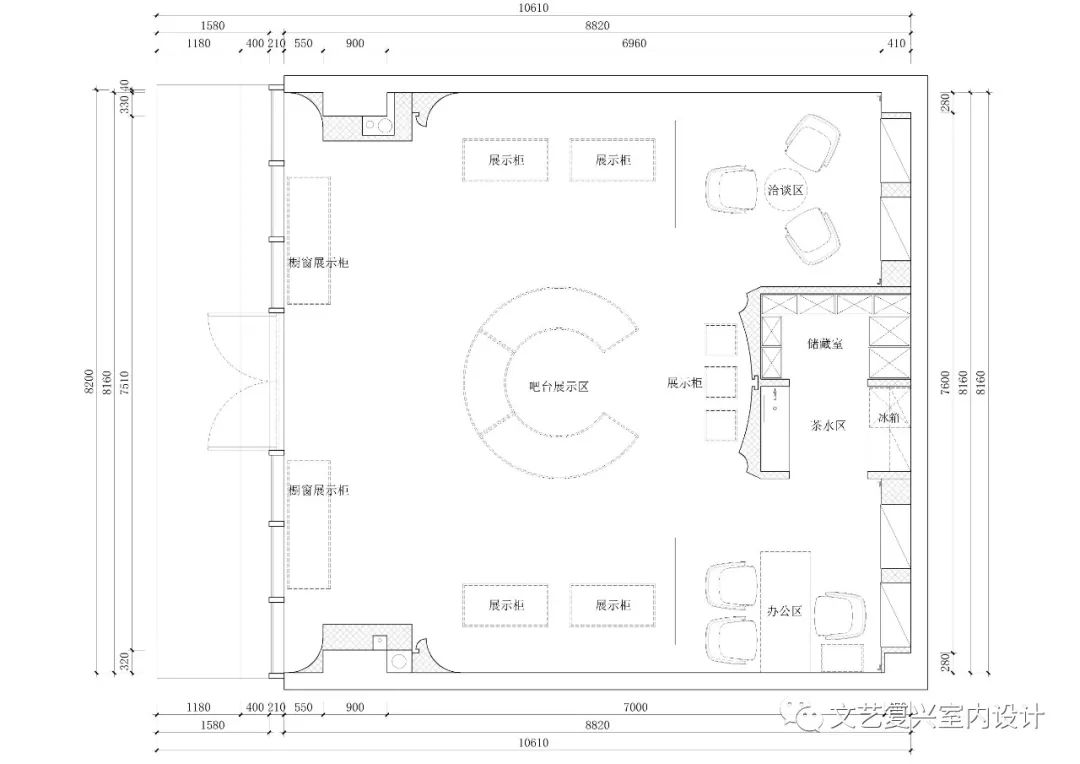
P. 09 平面布置图
项目名称:52HZ 婚戒定制
项目坐标:江阴市南门印象商业中心 104-2 号
建筑面积:80㎡
设计时间:2021.07.20
竣工时间:2021.09.30
设计机构:文艺复兴室内设计
设计主创:林恺
设计执行团队:张倩芸、承佳欢、郁俊杰
空间摄影:杨森
预约咨询:
C:15961510954
W: LK_RENAISSANCE
客服
消息
收藏
下载
最近

















