查看完整案例


收藏

下载
心流
Lin's Home
江苏 · 江阴
Jiangsu,Jiangyin
现在,这已经是一个居住了2年的房子了,甲方常说,好看的房子都是样板房,有了生活的痕迹就再也回不去了,所以2年以后,我打算重新编辑这篇文章,来讲述这个房子的故事。
这里住着个一个爸爸跟一个小女孩,小女孩名叫豆花,跟所有的小女孩一样,她也有一个爱莎公主梦,她有一个属于自己的房间,那里有她的帐篷,帐篷里挂着小烛灯,一到晚上就会亮着,顶上是按照她白羊座
Aries
的星图分布着点点灯光,平日里她喜欢画画,喜欢下棋,喜欢搭积木,也喜欢去天台用望远镜看天上的星星,她常常呢喃的喊着,爸爸......心在哪里,家就在哪里,这个房子承载的是一个家,还有涌动的心流。
平面功能布局的设计是整个室内设计的核心内容,他决定了这个房子可以以你的生活方式存在多久。使用了2年多以后,慢慢觉得一楼的北客房是多余的,每个家都有适合他的实际需求,没必要一味的听从旁人的建议,其实所谓的“感同身受”他就是个伪命题,因为你永远都不可能还原当事人当时的全部感受,所以这个北房间变成了一个多余的备用娱乐间,一年都用不到一次,偶尔去储藏间的时候可以路过吧。
这组客厅延伸到玄关的黑色柜子是比较实用的,放着不少爸爸的书跟豆花的书,还有一些他们从遥远的地方旅行带回来的装饰品,这个柜子是由数片5mm的黑色钢板插片组合而成,就像小时候玩的雪花片,它承载的是爸爸对儿时的梦想。
进门左手边的衣帽间是使用率挺高的一个区域,每天开开关关的拿鞋放鞋,玻璃门也提供了可以站着一览无余并轻松选择所有鞋的机会,对面的储物间主要放置日常的杂物尽量以抽屉为主,可以提供足够的便利性,放置行李箱的柜子要大,因为爸爸有2个大箱子,豆花也有两个小箱子,但衣帽柜是累赘,基本上来的客人也不会把衣服、包挂柜子里,嫌麻烦,其实按照客人的心理,可能带灯的玻璃门柜子会更合适。
书房是平时爸爸工作的地方,豆花会骑着绿色的小马在旁边陪着,时不时还会去爸爸的兵器柜里拿个她的小挂饰,她说这里也是豆花藏宝贝的地方。
去年,墙上多了很多相框,希望给这面白墙赋予家的温暖,每个相框都记录着这个家里爸爸跟豆花的每一个有趣的瞬间。
这把古琴是从一个音乐老师那边买的,它有一种魔力,每当抚摸琴弦的时候,心就会特别的平静。地面采用了一款亨德威尔进口三层实木地板,经过两年的使用,保养上油,呈现出了木头本身的质感,自然,以及舒适的脚感。
客厅也是平时家人待的时间最久的地方,交互性动线的设计为这个家带来了更多的可能性,我们可以更简单的到达每个我们想到达的地方,而不走回头路,这给我们提供了更多的生活便利性,而空间的
立面
设计让整个公共空间都融为一体,空间与空间之间是相互能看透的,因此,傍晚的时候,夕阳可以穿透层层结构,把光撒到每一个角落。
沙发是不靠墙的,后面可以走人,靠背也可以当座靠用,在这个家不需要正襟危坐,客厅应该是舒适的,随性的,豆花可以选择坐在任何一个地方,甚至地上,平时只要有空在家,爸爸都会找一部迪士尼电影,陪豆花一起看,一起吃冰淇淋,一起开怀大笑。
厨房是一个社交型空间,所以不会把它做成封闭式的,天朝的形式主义向来都是一刀切,认为只要有门即可,至于关于不关门那无所谓,而我是最讨厌形式主义的,家是用来住的,用来满足我们生活方式的,不是用来对标某个拍脑袋的。厨房的色调采用了大面积的黑色调,黑色更有质感,搭配HAY的家具,现代而前卫,餐桌旁边的墙上也挂满了照片,在与客人共进晚餐的同时,也能看到爸爸跟豆花的每一个点点滴滴。
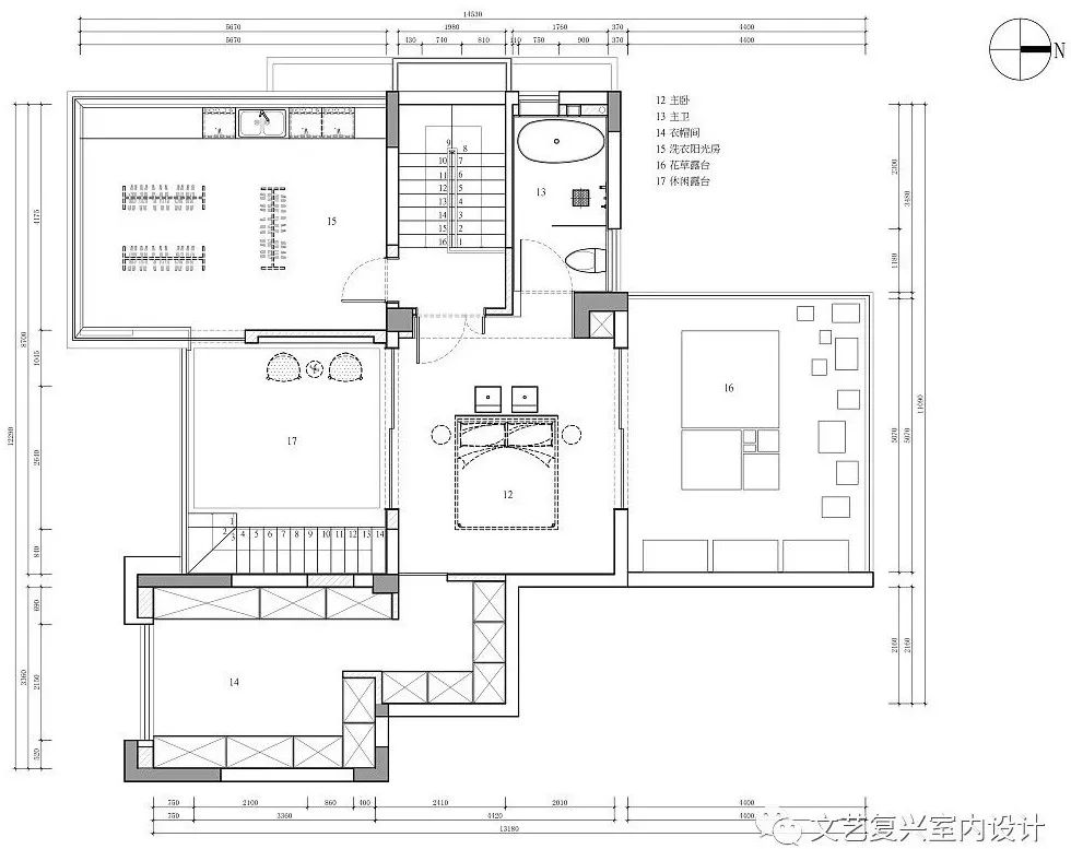
楼梯采用了玄武岩,它是一种火山岩,密集大小不一的孔洞让这种岩石充满了时间的神秘痕迹,原始土建楼梯在进门鞋柜处,把整个空间撕的粉碎,让二楼的空间利用率非常低,所以我们把楼梯整体移位,利用西房间内卫作为楼梯间,并扩大窗户,让西墙的采光面得以延伸,远处的绮山也变成了画中景。楼梯分成两个部分,一部分实体,内部作为杂物间,另一部分悬挑,背面由钢板拉住,避免的西墙光线的遮挡。
软装向来是用来满足主人的个人喜好,枯木插花比较适合忙碌的人,不用太勤于打理,也能作为家中一景,纪念碑谷的微观世界也一直重塑着这个房子里主人的人生五样,非洲部落的泥塑,亚历山大人脸玻璃瓶,米开朗琪罗的石膏像,伊朗波斯的编制地毯都充斥着主人对生活的热爱,而唯有热爱才能抵岁月漫长。
二楼主卧的设计比较自由意志化,完全按照主人的生活习惯来布置,房间的左右两边都是大型提升拖拉门,外面各有一个露台,北面露台用来种植植物,作为后花园,南面露台作为家人公共露台小憩。
每个卫生间都是体现主人生活品味的地方,跟生活方式息息相关,虽然不是越贵越好,却也是功能性齐全,主人的生活方式是一定要有落地浴缸的,豆花常常会扔进一个泡澡球玩上半天,然后美美的游个泳,淋浴房不再是常规式的藏污纳垢之处,清清爽爽有个坡度做好长型地漏泄水就可以了,智能马桶不太感冒,这里就不采用了,放完了这些功能卫生间就不够放台盆了,那就借用房间吧,干湿分离,但一定是双台盆,同时起床的时候也可以井然有序。
露台一直是主人的热爱,早晨豆花跟爸爸会在露台小坐,感受大自然的芬芳,新鲜的带着青草味的空气随着晨光扑面而来,这种感受是那些封阳台的人家无法感受的,在露台种上一些蔷薇月季,花开的时候绚烂满地,倾国倾城,傍晚时分,约两三个朋友小聚,几瓶精酿,足以笑谈人生。
项目名称:心流
项目坐标:江阴·敔山湾
建筑面积:300㎡
设计时间:2017.07
竣工时间:2018.08
设计机构:文艺复兴室内设计
设计
主创
:林恺
设计执行团队:承佳欢、
张倩芸、郁俊杰
空间摄影:韩森
预约咨询:
C:15961510954
W: LK_RENAISSANCE
客服
消息
收藏
下载
最近



























