查看完整案例


收藏

下载
耕云坞
Fei & Gong's Home
江苏 , 江阴
Jiangyin,Jiangsu
满坞白云耕不破,一潭明月钓无痕。 ———
—管师复
这是屋主最喜欢的一句诗。建一小屋,留一楼台,赏敔山美景,空一方心田。所以对家的畅想应该是室内简洁雅致,舒服惬意,布局开放,放空身心,隐逸自得。赏得落落大方之美,品得清清淡淡之朴,眼纳蓝天白云,心收明月碧波。
女主人爱诗,爱画,爱文学,恬淡自乐。男主人爱家,爱她,爱女儿,辛苦奔波。她说,所谓岁月静好,都是有人负重前行。愿小家茹素而质朴。
1、
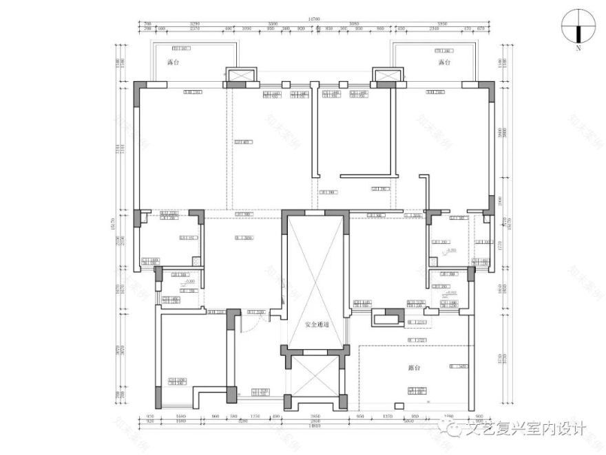
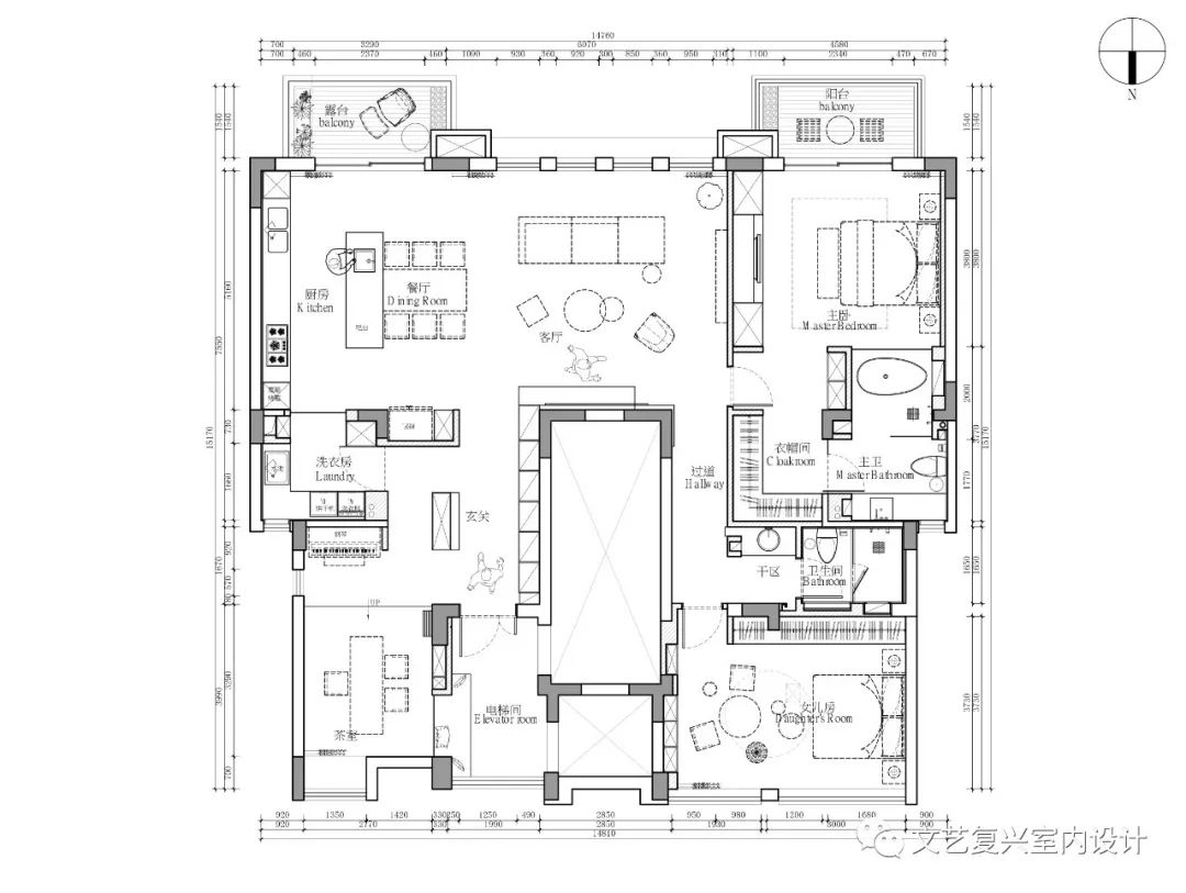
一梯一户的结构,电梯间的利用变的尤为重要,需要跟室内沟通
2、当然这是改善型住房,所以考虑更多的不是房间越多越好,以备有客人而
留着
住不到一年一次的客房,更多的是
常住
一家三口的生活体验感
3、女主人有很多鞋,所以需要一个很大的鞋柜,玄关区域形式追随功能
4、茶室区域会是一个多功能多元化的存在,喝茶、书法、绘画、作业、钢琴、临时居住
5、露台对于现代生活是个尤为重要的存在,所以单独划分一个区域用来做洗衣房
6、客餐厅一定是在一起的,随着厨房文化的发展她更多承担的是一种家庭社交空间
7、卧室是最私密的空间,希望是以套房的形式出现,可以自由的,放松的,舒适的享受卫生间水疗文化给主人带去的私享
8、孩子活动的空间是开放的,自由的,以交互式的空间动线贯穿于整个空间
太阳是最好的调光师,有了光这个空间才有了生命。室内有意采用白色和木材的原色作为基础,白色被大量的运用在地面、墙面、和天花,木材原色则出现在局部点缀的柜体、电梯间吊顶、露台上,奠定了典雅、自然和清新的格调。在此基础上,点缀以米色、黑色、绿色系的家具和配饰,带来了轻松活泼的氛围。
顶面线性光主要为了弱化几个大梁的问题
为了找到更好的方式解决顶上的两根大梁给人带来的压迫感,足足思考了两天,最终以不同的钻石切面入手把客餐厅融入到了一体,并以小光束角的模块灯与线型灯的组合方式来虚化体量感,拉升层高。
落地提升推拉门与八个小窗,框出了最美的风景明亮的光透过柔软的窗纱时,又流露出些许禅意。
FLOS的ARRANGEMENTS吊灯延续了顶部的平行光
整体布局融合了空间堆叠设计美学,交互式空间动线的设计,更倾向于展现纯粹的现代主义生
活。
空间板块、线条、穿插,简约又不失精致
。
大容量的鞋柜跟衣帽柜为选择性储藏提供了可能性
洗衣房利用了原来厨房间的位置单独存在
吊柜用来补充茶室区域钢琴、书法等多元化功能的储藏
哑光白漆和大理石因为自然光的反射,把空间分出了层次,结合经过细致考量的灯光,形成了白天与黑夜时独特的光影魅力。
皮、木、瓷砖、玻璃等不同材质的搭配,丰富了空间的气质和格调。
如果有朋友过来喝茶,开电梯门就可以看到
可以坐着换鞋,侧面隐藏的抽屉用来储藏日常拖鞋
给孩子一份礼物,一面可以随意画画的黑板墙
黑白灰的空间中嵌入了一幅蒙特里安风格的现代主义装饰画,加上金属质感的FLOS吊灯跟台灯,不经意间彰显个人品味,静谧的空间弥漫着艺术气息,用没有繁杂装饰但人人都能感受的色彩与形体构成变大居住者的个性。
茹素而质朴的氛围,有助于抚平心中的焦虑,让人慢下来审视内心。绿
、白和光线烘托出强烈的戏剧感。
灯光所照之处,皆是焦点。
在这场关于家的戏剧中,自己才是主角。
在绿色跟木色的调和下,沉稳的空间里又多了几分随性和洒脱。
为了与业主从容的心境、兼容虚怀的气度相契合,以沉静雅致的绿色为主色调,同时运用了大量灰色阶的材质。而小女儿房应该是活泼的,自由的,有爱的,充满乐趣的,希望她开心不开心的时候都可以随时抬头仰望星空。
给孩子一个可以抬头仰望星空的地方
项目名称:耕云坞
项目坐标:江阴·爱家尊邸
建筑面积:195㎡
设计时间:2018.10.08
竣工时间:2019.12.24
设计机构:文艺复兴室内设计
设计
主创
:林恺
设计执行团队:承佳欢、
张倩芸、郁俊杰
空间摄影:杨森
主要用材:
CHIC
家具、
海尔橱柜、
巴尔蒂克系统门窗、梵高瓷砖、云铂石材、
西顿照明、优觉照明
预约咨询:
C:15961510954
W: LinKai80M90
客服
消息
收藏
下载
最近























