查看完整案例


收藏

下载
当建筑成为艺术的载体
关于场景体验的感官之旅才刚刚开始
...
阳光惬意的午后,「山东泰安艺术生活馆」就这样静静矗立在城市街角。
它仿佛有种让人安定下来的力量,讲述艺术与生活的故事。
暖灰石材立面搭配澄澈见底的水景,局部灰色金属铝板和灰玻相互映衬,流动的光影在空间错动交织,迂回游走的空间序列将仅600方的空间放大于无形。
从迎门到游走,片墙成为始终贯穿的存在。
光影流转,纯粹的建筑感与极致的细腻感,层层递进的序列感与精致至极的场景感……无处不格调,无处不生活。
这是一次空间的探索之旅,
更是
一场关于生活与艺术的感官之旅
。
One.切入|限定条件下的反限定设计
—
设计以片墙为“引”,将
地块划分为前场、后场、主体空间三大区域,并因地形限制将体块按线性排布。
而体块外剩余的自由场域,则可用于停留、休息、交谈以及作为交通连接空间。
之后再将片墙局部错动,同时打散原有体块形成一系列“功能盒”,并根据使用需求、私密属性来调整相互位置和尺度关系。
于是,原先规整而均质的空间,逐渐转化为相互独立又联通、层次丰富的场所,呈现出一定的流动性。
而在这限定与开放的微妙平衡中,既满足
了功能需求又将单调均质的空间变得丰满而有趣。
这种限定条件下的反限定处理,让建造成本也得到很好控制。
Two.收放|空间序列中的场景感把控
—
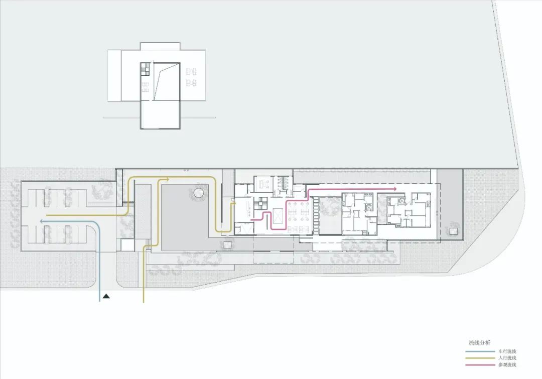
园区设计因循中国古典园林的空间序列手法,以片墙为核心元素,按“起承转合”之势串联各功能场景,并通过情境开合铺陈出空间脉络上的完整语境。
由城市而入,沿街高耸片墙围合出园区内向特质,墙引人随,让宾客抽离城市浮华,开启一段静谧的游园之行。
迎面入口水景,沿片墙水平延伸开去,轻盈空灵,让人豁然开朗。
汀步在柔和的水上小径,单棵植株轻倚转角,敞亮平和的入园氛围映射而出,洗净城市的喧嚣,心神慢慢平静。
进入接待区前,大块面清水片墙引导空间的方向性,在温润的古典空间序列中融入现代的纯粹感,并成为大面积展陈空间的过渡铺陈。
沿接待区入内,内部空间依照“品牌展示-影音展示-沙盘展示”,形成半开放-私密-开放的三种层次关系,聚焦核心的同时,放大宾客对空间的感官印象。
迂回进入沙盘展示区,
东、南两侧界面,以大块面玻璃的通透性去消解建筑的界面感。
一面映射水景,一面映射中庭景观,成为模糊内外界限的自然背景墙。
二层通高的沙盘展陈空间给人以大气之感。
被光影填满的展陈空间,不仅“引景入帘”,映衬出流转的四季风景,同时用留白的墙面为宾客留下空白的想象,刺激宾客观看的欲望。
后场延续片墙和绿植庭院的处理方式,将层层递进的空间保持着一贯的连续性。
迂回巧妙、收放自如,层层递进的空间序列,时刻讲述关于“艺术和生活”的未来。
Three.戏剧|视觉冲击下的艺术化处理
—
为消解对街建筑的压迫感,我们将一层公共区域上部挑空,并在垂直方向上叠加一个向场所外延伸的“功能盒”作为办公区域。
于是,带有大面积落地窗的盒子与一层体块和片墙穿插悬挑,在街角形成强烈的视觉冲击。
园内平和的艺术氛围与街角强烈的视觉冲击对比鲜明,化成一种奇妙的戏剧反差。
立面设计选取大块面错缝铺装暖色石材、灰色金属铝板和灰玻,大虚大实,细致而富有韵律。
空间与空间相互渗透、叠合、对比,形成一种连续而丰富的空间变化。
阳光映衬下,
空灵温润的建筑,在城市街角弥漫出关于生活的艺术感知;
轻柔纯粹的设计手法,将现实的客观矛盾化解与无形。
「山东泰安艺术生活馆」的设计,我们尝试
用连贯的序列感
铺陈空间的艺术性,
用对比的戏剧张力
营造空间的趣味性,
层层递进,直抵人心。
在这里,我们希望它——
温润有致,又巧露锋芒。
静中有序,亦妙趣横生。
是生活之美,更是艺术之美。
13868173040
地址:杭州市西湖区紫荆花路联合大厦A座3单元405、406
「青墨建筑设计」
期待与你同行
客服
消息
收藏
下载
最近















