查看完整案例

收藏

下载
咖啡馆, 混合用途建筑, 更新项目, Beijing, 中国
建筑师:KLC
面积:257 m²
项目年份:2020
摄影师: Beijing Ruijing Photography
厂家:Chinalco, S_Beijing
主创建筑师:Yoshihiro Kamiyama
设计团队:Lauren. L
施工方:A+A workshop
City:Beijing
Country:中国
场地位于北京五环附近,位于市中心和郊区之间的特殊边界地区。它也是一个工业街区,里面的红砖仓库是用于六十年代文革时期。现在的它正在进行新的商业区的各种翻新,我们的项目是翻新其中的一个。
客户已经在市中心拥有一家相对较小的商店,仅出售有机植物制成的饮料。他们的业务正在扩展,不仅销售饮料,而且销售各种健康食品,因此他们购买了其中一个红砖仓库作为主要的工作室和美食吧,并要求我们进行设计。
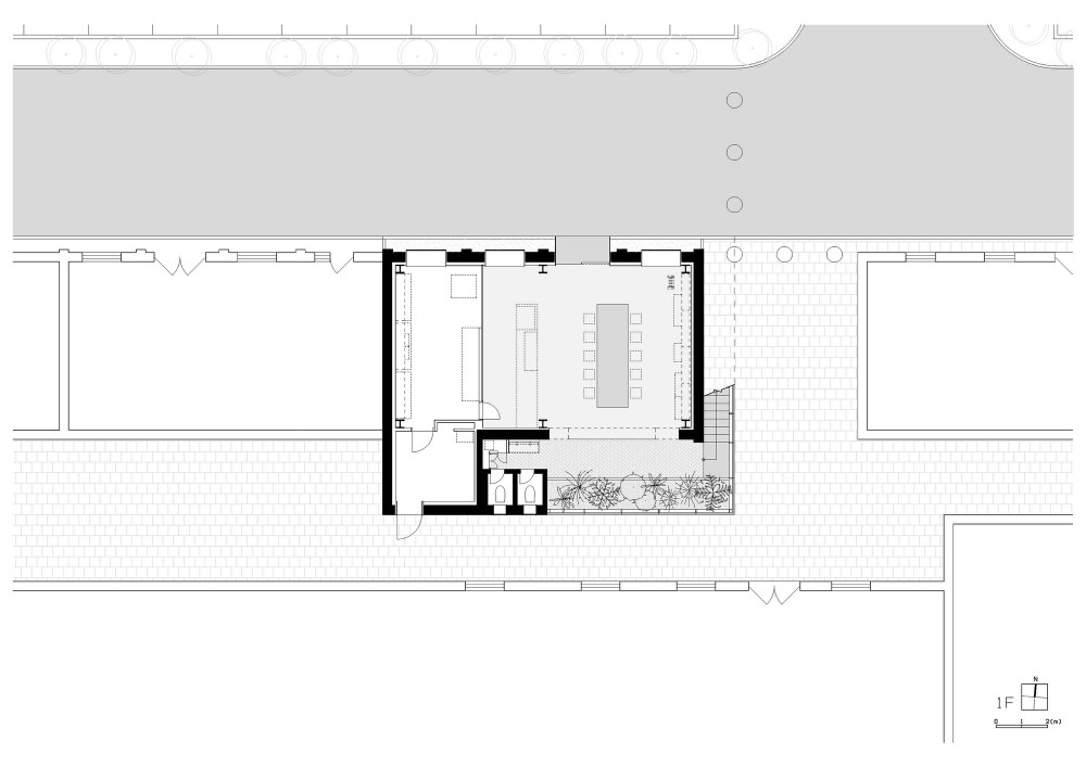
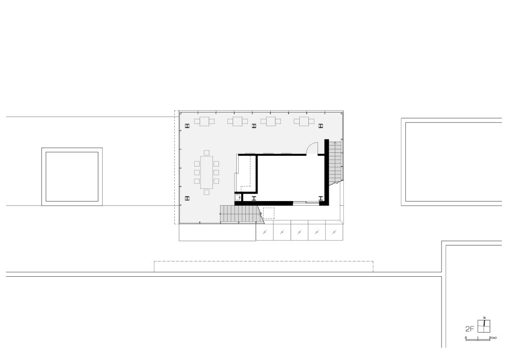
建筑需要有两层,包括食品实验室,就餐空间,销售空间,工作区,供团队艺术家使用的画廊,办公区和温室。受客户对自然生态系统(包括温室中的许多植物)的浓厚兴趣的启发,我们试图将室外空间引入到室内空间。作为零售区的一部分,重要的是要在内部展现一个受欢迎而忙碌的氛围,以便从外面看到可以吸引更多的客人。因此,我们根据以下8条规则设计了项目。所有这些规则都具有多重视角,因此所创造的空间也非常激动人心。
概念:共存
2.从室内看向室外的景色要丰富。
4.设计一个没有隔板或门的连续空间,并根据室外环境确定室内每个位置的用途。
5.在营造建筑环境时,首要从被动式设计方面考虑,其他机械设备附加可选。
6.混合结构系统不仅要强调机械张力,而且要表达力的流动。
7.建筑材料应便于当地的建造技术获得,并应能联系过去与未来
8.应当在产品和建筑设计的意义上创造出人工制品。
考虑到各种功能的布局,室内空间的设计与外部环境协调。预计将吸引日常客户的实验室和零售空间安置在一层的北侧。从街道或室内都可以看到它们。为了获得足够的阳光,因为暖房的位置要考虑其日光照射和土壤管理,所以将它放在南侧。画廊中的艺术品放在可以看到街道的二楼北侧玻璃窗旁,也避免了阳光直射。在二楼的西南侧,设置了一个私人聚会的工作空间。
主要的内部交通流线设计成像连续不断的书法笔画,将所有功能空间连接在一起。通常,交通流线是紧凑的,并且以最小的距离连接空间,从而将最大的地板面积用作商业空间。在这种情况下,客户流程线会在各种类型的空间之间延伸,以确保在有限的商店面积内获得最多样化的空间体验。
室内空间没有设计任何门,试图将三层楼的空间通过气味和声音连接起来。没有严格的空间使用规则让空间变得灵活且界线模糊。客户甚至可以坐在交通流线的中间。同时,可以从建筑物内的任何方向感受到自然光,从而形成3维螺旋状的空间,像植物一样向上生长。
这也是一个尝试混合公共与私人空间的实验。顾客流线从外部空间到内部空间连在一起,从而在公共与私人之间实现了转换。沿着上升的楼梯,走到顶部的露台,北京的摩天大楼的风景为郊区建筑营造出城市环境的感觉。通过插入一个不同的元素,即在密集的城市环境中营造的一个自然环境,让人们在精神上有机会得到放松
设计和施工监督完全在线完成。由于新冠疫情,原定从东京来的定期实地考察都被取消了。在项目竣工前后都无法无法进行现场确认。即使有很多原因推迟了施工,但由于客户的努力和所有电子通信技术的影响,该项目顺利结束,现已开始营业。
翻译:杨佳欣
项目完工照片 | Finished Photos
设计师:KLC
分类:咖啡馆
语言:简体中文
阅读原文
客服
消息
收藏
下载
最近
































