查看完整案例

收藏

下载
支撑结构形成了空间的亮点 © José Hevia mail
历史悠久的Tercio y Terol社区由Rita Fernández Queimadelos设计,于1940年代在马德里卡拉班切区建成。它最初是为经费有限的家庭提供的社会住房项目,现在是马德里的城市遗产保护区。Tercio y Terol社区由640个排屋组成,该项目是其中之一。这里有70㎡的可用空间,曾经为八口之家设计,所以空间高度分隔,房屋后部还留有庭院,用于种植果蔬和饲养家禽。现在这里只住有一对经常在家办公的年轻夫妇,空间经过重新配置,满足了他们的需求。他们喜欢在家中招待朋友,需要开放且热情的氛围,因此,他们希望房间相互连接,并且使室外区域成为住宅的一部分。
▼空间概览 © José Hevia mail
基于住宅的原有外形和立面,设计团队着眼于在内部创造更加连续的空间,使其从一层庭院至整个楼层自由地流动。改造将新的几何结构引入空间,融合了曲线元素和独特的配色方案。在一层,设计团队拆除了隔墙,创造出统一的起居空间,保留中心的钢柱并使其裸露在外。在二层,三坡屋顶的支撑结构形成了空间的亮点,独立于屋架的曲面墙将卧室和工作室分隔开来。
▼新的几何结构 © José Hevia mail
▼独特的配色方案 © José Hevia mail
▼楼梯 © José Hevia mail
▼细部 © José Hevia mail
▼支撑结构形成了空间的亮点 © José Hevia mail
▼曲面墙将卧室和工作室分隔开 © José Hevia mail
设计团队去除踢脚线、使用隐形门框并且限制不同材质的数量,大大降低了视觉噪声。这座房屋为业主夫妇收藏的艺术品和使这里更具家的味道的小摆件提供了低调的环境。
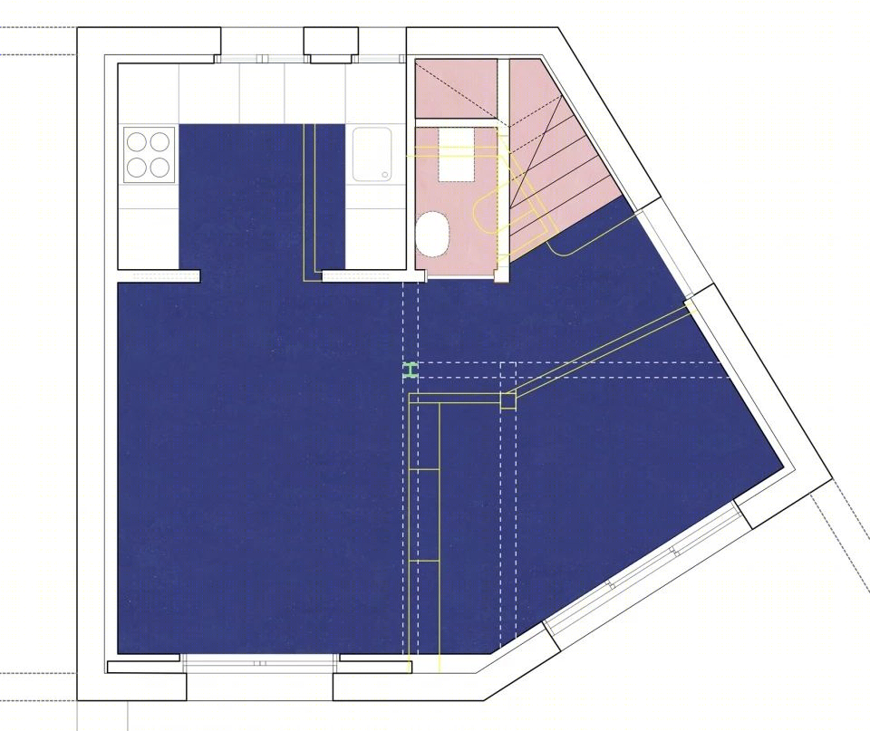
▼一层平面 © Beatriz Alés Atelier
▼二层平面 © Beatriz Alés Atelier
▼剖面图 © Beatriz Alés Atelier
Type: Refurbishment in Carabanchel, Madrid ES Year: 2017 – 2020 Authorship: Beatriz Alés Atelier Construction Site Management: Espacio Papel Arquitectos Landscape Architects: Mingo Basarrate Photography: José Hevia Photos: José Hevia mail Drawings: Beatriz Alés Atelier
客服
消息
收藏
下载
最近














