查看完整案例


收藏

下载
您受邀参加一场关于家的创意之旅
请查收
唯家和生活不可辜负。
品界装饰,携手美居中心,
万科·长基云庐户型讲解
,与您共见,设计之奇妙。
项目简介
Introduction
项目名称:万科长基云庐
建筑类型:5层
楼盘地址:雁鸣大道与雁月大道交会处向西2公里
交通:
横向——连霍高速,绿博大道,郑开大道,雁月大道,平安大道
纵向——京港澳高速,新107国道,雁鸣大道,广惠街,机西高速
自驾路线:
1.京港澳高速→连霍高速→雁鸣大道;
2.金水东路→郑开大道→雁鸣大道
实景照片
Photographs
▲建筑实景
▲样板间实景
设计规划
Design
▲负一层原始结构图&平面规划
▲一层原始结构图&平面规划
▲二层原始结构图&平面规划
▲三层原始结构图&平面规划
▲四层原始结构图&平面规划
▲负一层光照&动线设计
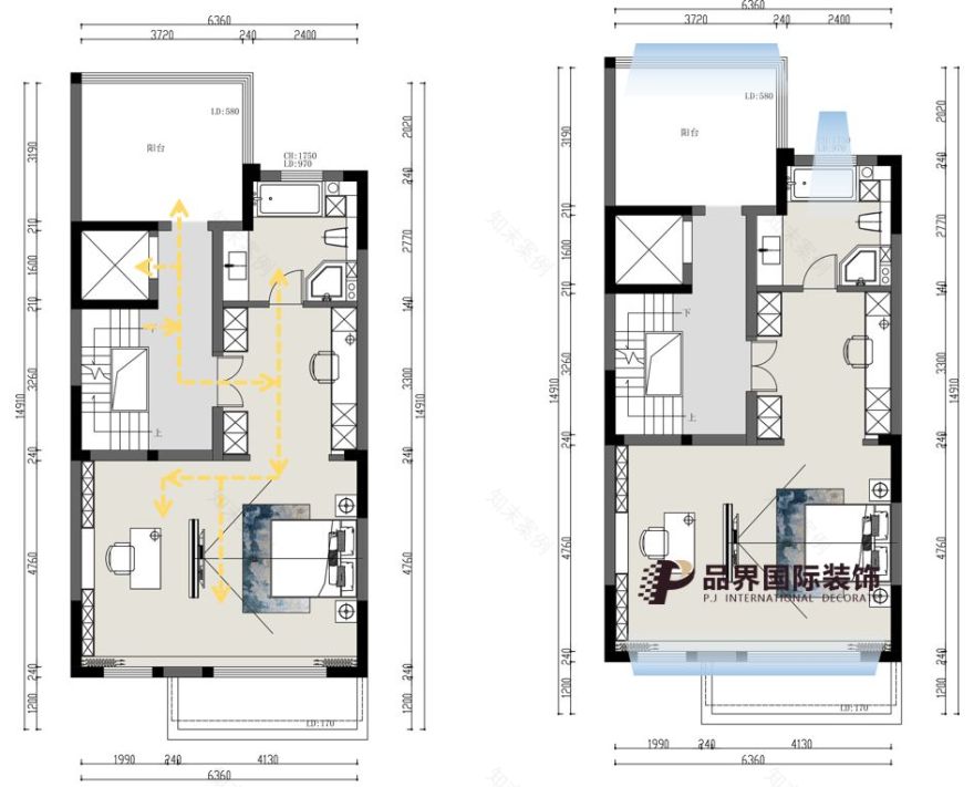
▲一层光照&动线设计
▲二层光照&动线设计
▲三层光照&动线设计
▲四层光照&动线设计
风格参考
Style
返璞归真,在简单中,发现生活的本质和魅力。于繁华里,享受属于自己的平静和安宁。
为何大宅需要设计
Why
一个多月的宅家经历,是否让您对家有了更多的思考?家是什么?是我们居所,是我们生活的地方,而不单纯只是为了居住,功能齐全的一个家,才能让人百居不厌。
大宅的境界是什么?是设计,但也不单纯是设计,我们在谈论墅居的设计前可以下看看下面这句话
墅居境界不只是设计的好看,而是功能与美学的和谐
很多业主,由于对大宅装修方面的知识了解得很少,对于大宅装修这样的庞大系统性工程,信息严重不透明。对设计的认知也十分单薄,他们认为“设计师不就是画画图,盯下工地”。实际上,这是完全错误的。
完整的图纸对别墅大宅装修是非常有必要的,图纸的规范与否从反映了设计师的专业水平,也是工人正确施工的唯一参照。
但是,大宅又不同于公寓和平层,其生活空间高度延展,使得墅居的生活更加富有多样化、个性化;大宅空间上,
除去客厅、餐厅和卧室外,增加了更多的活动休闲区域以及独立的庭院、露台和地下室,像酒窖、健身房、泳池SPA、影音室等深受别墅业主喜爱。
当一个大宅要融入如此多的空间,该如何布局既能满足每位家庭成员的生活习惯,又能保持个性呢?如何让公共空间和私密空间有效隔开?这些都是在前期设计整体架构时要考虑的问题。这么大体量的工作是需要一个设计团队来完成的工作。
此外,优质的材质,完善的施工团队,专业的1对N+1服务,一站式的装修流程,都同样重要,优质的材质确保了大宅的健康和质感,完善的施工服务团队给设计落地提供了可能,专业服务让您更加省心省力。
大宅设计
是功能和美学的和谐
若非系统,必困于局部
若非经验,必形成缺憾
若非专业,还是平层再现
品界核心
全功能设计&管家式服务
←
全功能设计
管家式服务
↓
全功能设计
大宅设计
是功能和美学的和谐
若非系统,必困于局部
若非经验,必形成缺憾
若非专业,还是平层再现
管家式服务
将管家服务全面移植到家装服务体系
将客户从繁复的装修过程中解放出来
形成“N对1”式全程托管服务
帮助客户打理好装修的每一个环节,免除装修烦恼
轻松享受精英阶层高品质家居环境
先施工后付款
先施工后付款,验收满意再交钱
确保施工质量,交付效果,保障客户利益至上
施工 | 设计 | 材料 | 软装
留下来,我们一起
让生活更品味
客服
消息
收藏
下载
最近























































