查看完整案例


收藏

下载
设计以人为本 精进自己 满足客户对家的需求。设计
以人为本 家是生活态度的反映、是生活方式的延续演
绎在于感受亲人、爱人的情感交流。设计改善生活生
活反馈于设计。设计师不仅仅设计空间,更设计生活。
——冯 琎
境界至上,品味生活
我们相信,
每一次生活方式的变革,
都源自少数人对享受的追求。
让时间将浮华剥落,
留下艺术的力量。
·
品界设计正弘瓴A1户型研发,
生活的艺术,油然而生。
设计师简介
个人介绍:
毕业于意大利都灵理工大学建筑系
生态设计专业,理工硕士
中国装饰协会注册设计师
中国建筑装饰协会会员
2011年 ---德国 IF 产品设计优秀奖
2014年---获得INTERIOR DESIGN单项设计奖
2015年 --- 获得亚太设计家居单项奖
2016年 --- 中原金马凯旋杯“年度最佳创意设计师”
2017年 --- 新家杯中国家居设计百强新锐青年设计师
代表作品:
瀚海晴宇、东润太和、天地湾别墅、银基王朝 、蓝堡
湾、国瑞城别墅、锦艺国际华都、 海马公园 、 新田
城别墅等
项目概况
正弘瓴
位于郑州,郑东新区,龙湖副CBD九如路
和朝阳路交叉口东北角,此区域是兼具城市
属性和生态属性的复合型高端宜居地,区位
、地段圈定中原高端阶层。正弘瓴项目占地
64531.37㎡。项目建筑面积182522.92㎡,
联排别墅、叠加别墅、多层。项目开发商为河南
正弘置业有限公司。物业是:河南正弘物业
管理公司,是正弘置业有限公司的又一钜作
,作为正弘置业有限公司升级产品线——城
市顶豪系列的开山之作,联合全球顶级资源
倾力打造,开启郑东新区新奢主义时代,定
义一个高端阶层的极致荣耀。
根据规划,郑东新区将形成“一心、一轴、
两环、四片”的功能布局结构,“一心”是
指CBD副中心,主要安排商务休闲、旅游度
假及餐饮娱乐等设施;“一轴”指以运河为
纽带连接CBD中心及副中心,主要安排商业
、现代服务业以及公共服务设施;“两环”
是指生态旅游休闲环和生活居住服务环;“
四片”则是指四个以居住功能为主的城市片
区。龙湖地区将建设成为土地与空间资源配
置合理,配套设施完善,景观优美,环境宜
人,富于水景特色的未来型新城区。
设计理念
设计是什么?
设计不是一味的消费,
设计是为了解决问题,
设计不等同于时尚,
设计更要历久弥新,
设计面向的不单纯是当下,
更重要的是在当下承接传统,放眼未来。
这就是设计,
发现生活的艺术美学,
让美学成就生活艺术。
主创设计
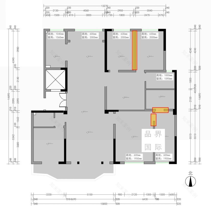
原始结构户型
▲原始结构户型和平面改造方案
平面方案设计图
▲户型拆改方案
▲平面布局方案
▲动线分析方案
红:访客动线
黄:家务动线
紫:起居动线
▲平面方案-通风与采光
▲储物分析方案
效果展示
传承经典,把握时尚。
经典让设计历久弥新,
时尚令设计卓尔不凡。
这就是设计的所追求的境界,
承载过去,放眼未来。
让美学和生活结合为艺术,
让艺术的生活成就生活的艺术。
意向参考
品界
全功能设计
←
全功能设计
软装全案设计↓
全功能设计
大宅设计
是功能和美学的和谐
若非系统,必困于局部
若非经验,必形成缺憾
若非专业,还是平层再现
品界设计 · 从心开始
家之清,室之明
搬座花园到家来
老城区里的悠闲生活
赋予生活以意义——仪式派设计案例
你家大宅曾经长这样
设计|施工|材料|软装
留下来,我们一起
让生活更品味
客服
消息
收藏
下载
最近










































