查看完整案例


收藏

下载
居住郑州
·
品读生活
或许,我们并没有在意,自己所在的这座城市其实真的很美。我们在这里拼搏,也在这里生活,我们欣赏窗外的灯火霓虹,也欣赏自己居住的家。
品界专题,郑州小区户型解读——居住郑州,品读生活。
九如意
最近,设计师考察了九如意十号楼顶层复式户型,一致感觉这是个非常不错的户型,值得仔细思考,搭配出最佳的效果,下边,我们一起来欣赏一下这套户型解读吧。
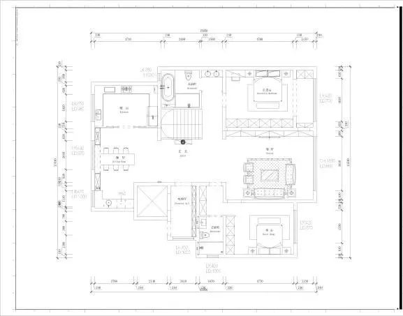
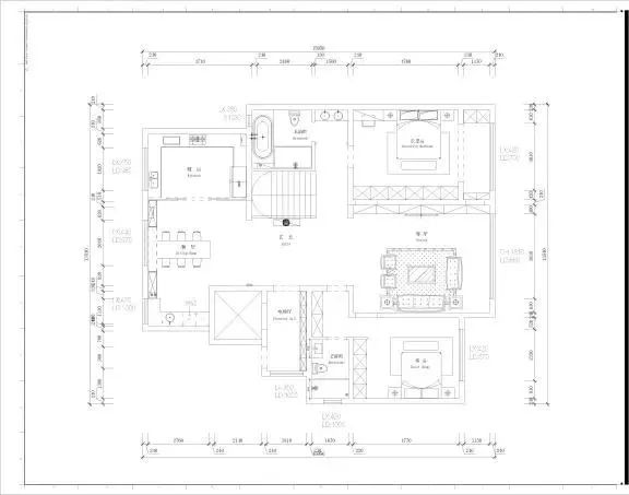
户型图分析
▲原始户型1F
▲原始户型2F
▲布局1F
▲布局2F
户型感官
如果要给这套户型一个直观的感觉,或许第一印象是大气吧,宽敞而挑高的客厅,气势逼人,居室不多,但每一个都很宽敞明亮,这就是大宅,高端小区该有的气气质,以精致生活为导向,而非以刚性需求为指引。
此外,本案的另一个大亮点在于本户型的区域分工非常明确,烟火区,公用空间,私人空间,每个区间划分清晰明确,动线非常合理。
1F
一楼入户,首先看见的是玄关台,这里可以设计一处非常不错的景致,起到视觉缓冲的作用,同时弱化背后的楼梯。
▲中式和美式的玄关,一个禅意,一个神秘
转过玄关,看见的是挑高的客厅,视觉上会突然产生开阔的感觉,这样的户型,最适合一些相对大气的设计,会让人产生豁然开朗之感,气势逼人。
▲
挑高的客厅设计
除此之外,在一楼还有餐厅,客卧,和老人房,彼此间功能分明,其中,因为客厅墙面门洞口较多,影响墙面整体美观。故而进行了些改动,将老人房原本的门洞进行了封闭,从新开了门洞,保证了墙面的一体性。
▲老人房以及客卧
2F
二楼最显眼的是大露台,对于大露台,进行了分割处理,上楼后首先看见的是一处休闲区,得益于露台改造,这处休闲区的采光很好。
▲漂亮的吧台和休闲区的摆设
可以体现出屋主独到的生活情调
另外,主卧和儿童房都在二楼,可以说,上来楼梯,就是主人的私密空间,在这里,可以随意地展现出屋主的个性,显示属于自己的别样风格。
▲主卧和儿童房,彼此都富有各自的情调
户型总结
这是一套非常触发人灵感的户型,现在总结户型效果如下
一.户型优势:
1.经典南北通透户型
2.房屋整体光线充足,舒畅
3.功能划分清晰明了
二.户型劣势:
1.入户第一眼看到生硬的楼梯造型,需进行装饰弱化
2.二楼没有公卫,使用不方便。
3.1F客厅墙面门洞口较多,影响墙面整体美观。
三.改造方案:
1.入户玄关处,可选择作多种玄关,弱化遮挡楼梯,且创造出富有意境的一处景。
2.在二楼西北角开门洞,搭建阳光棚,改造出卫浴间。方便使用,且位置处于顶楼。想想一下,在星光的陪伴下,洗去烦琐与疲惫,该是何等惬意。
3.长辈房原有两处门洞封上,在其他合适位置开门洞,可保持客厅墙面美观整体性。
4.考虑到长辈房内不宜设卫生间的原因,方案A将卫生间改到房间外部,且需是距离长辈房最近的位置,方便老人使用。
品界
全功能设计
←
全功能设计
软装全案设计↓
全功能设计
大宅设计
是功能和美学的和谐
若非系统,必困于局部
若非经验,必形成缺憾
若非专业,还是平层再现
品界设计 · 从心开始
一棵白菜告诉你,什么才是好设计
四色家居,四色人生
换个视角看家居
知否知否,这就是从大宋流传至今的家居设计灵感
家居有史三万年,前世今生说大宅
设计|施工|材料|软装
留下来,我们一起
让生活更品味
客服
消息
收藏
下载
最近



























