查看完整案例


收藏

下载
建筑师管自建房叫独立住宅,所谓独立住宅,指的是独门独户的住宅,包括普通住宅和豪华别墅。
每一个建筑师都有设计独立住宅的梦想。赖特的流水别墅;文丘里的母亲住宅;柯布西耶的萨伏伊别墅,密斯的范斯沃斯住宅,库哈斯的波尔多住宅;…… 每一栋独立住宅都被写进入教科书。
但是实际上目前我国独立住宅设计水平和国外发达国家差距较大,主要2个原因,一是设计难度大收费低,建筑师普遍积极性不高;二是我国不明朗的土地政策,导致很多人有愿望却没有土地指标可以盖房,所以很难出优秀作品。
所以国内常见的独立住宅基本分成三类,一是开发商开发的欧式,法式,美式豪华别墅;二是各种各样仿古建筑;剩下的基本就是农民房了。
而我们是一家不惜代价设计美好的精细化建筑设计事务所,专长
度假酒店
及
独立住宅
设计。
酒店设计以及独立住宅设计几乎是建筑设计中难度最高的,所谓画虎容易画人难。难的核心就是对
生活方式
的理解。生活方式每年都会变化,而经典的建筑设计能够100年不过时。
关于独立住宅设计的书籍资料又相当少,欧美的模式没法直接搬来用,传统中式建筑有经典有糟粕。我们在20多年摸索积累的经验几乎可以写一本书了。尽管如此,这次发表三套近期不同风格的独立住宅设计作品,亦有诸多不足。恳请大家批评指正。
独立住宅设计又分成功能层面的设计和精神层面的设计,我们目前还上述大师还没什么关系,所以现在老老实实只讨论功能层面的设计。
01 / 河北辛集合院大宅
接到这个设计任务后我去河北辛集勘探了现场,发现当地人喜欢用砖盖院落式建筑。喜欢用砖砌筑出有趣的机理。
用地方正并且比较大,业主的主业是育苗,有非常大一片土地,这个房子兼做住宿,办公,接待,工人房,农具等多种功能。我们梳理了这些功能,根据动静流线,把建筑分成左右二半。红色部分对外,黄色部分和二层部分为对内的卧室。
入口采用内凹的形式,挡风避雨,车库位置隐蔽。
北方四合院式建筑,通风采光
场所的情绪
设计考虑的不仅仅是建筑,更多的是建筑之间的空间,利用建筑的角度,轴线,所形成对话和场所,以及和高差,隔墙相融的多层级空间体验。
材料的表情
设计上提炼乡土之简,取当地材料,红砖墙,木格栅,平屋顶等,配以景观绿化,透过材料、线条、语汇的简化,量体。块面与空间的延伸,凝聚成一股沉潜的、宁静的静定之气,书写独具辛集气韵的住宅建筑诗学。
文化概念——四合院
四合院,又称四合房, 是中国汉族的一种传统合院式建筑,其格局为一个院子四面
建有房屋,从四面将庭院围合在中间。正式的四合院,一户一宅,平面格局可大可小。四合院是由许多单体建筑组合而成,包括大门、正房、厢房等。
我们一共设计了1个主卧室,5个带院子的次卧室。满足业主接待和经营的需求。
项目地点:河北省辛集
建筑规模:1200平方米
投资规模:500万人民币
建筑设计:陆启水 王梦阳
设计时间:2015年4月
完工时间:2019年
02 / 浙江宁波现代别墅
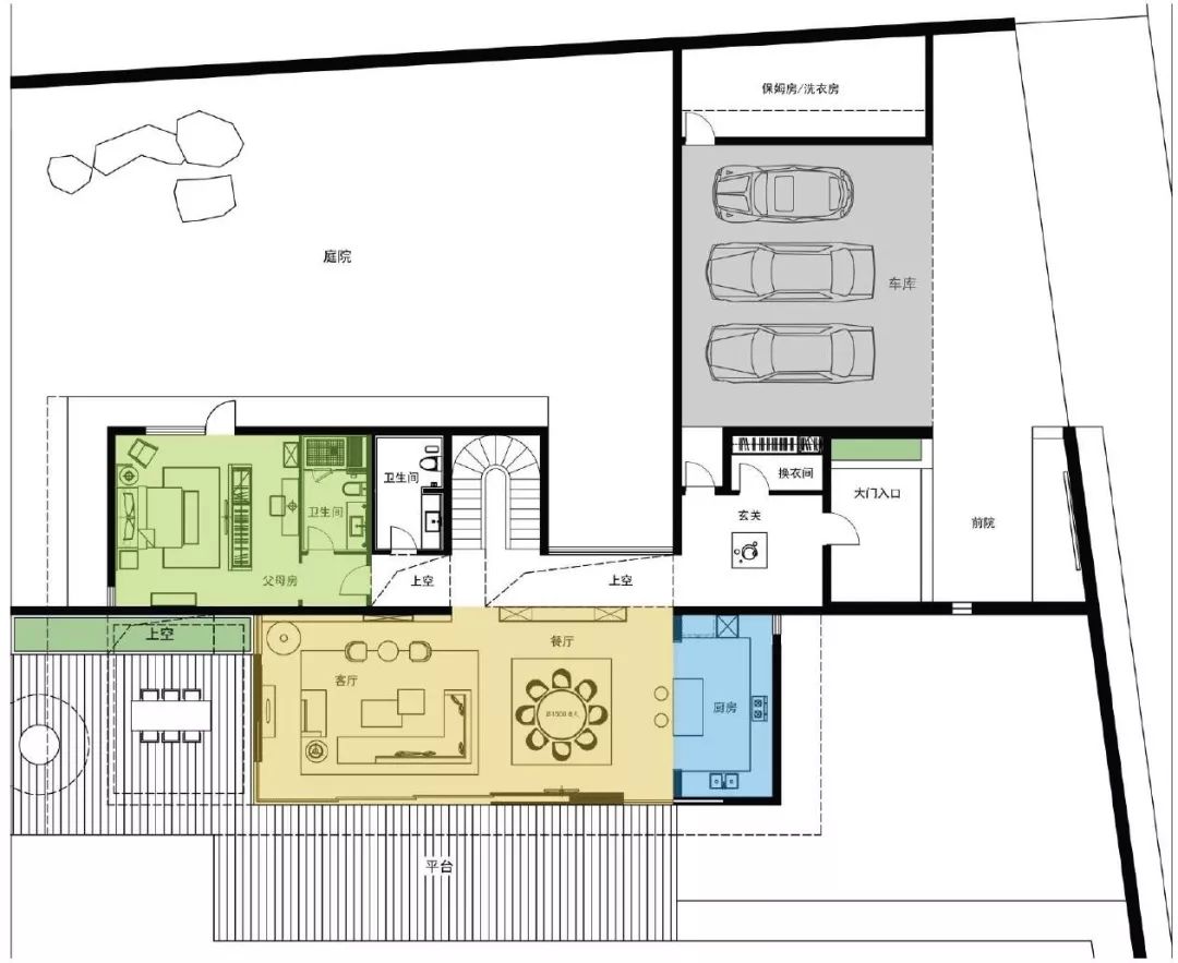
这套宅子占地面积较大,但是可落地建筑面积只有北侧100多平米。业主房间数量要求不多,所以我们就尽量缩减建筑的体量。这套独立住宅为2层,总建筑面积约250平米。
要求就是有一间母亲卧室,三个女儿房,一个茶室,一个比较大的车库,一个25米标准恒温游泳池。
其他由我们发挥了。所以我们设计了纯现代风格建筑。
建筑南立面
细部放大
业主有车比较多,也有摩托车,所以我们设计了一个比较宽敞的停车库,从车库可以直达玄关。(参考图)
一层平面图,入口有更衣间。这是现代别墅必备的配置。从车库和和主大门进入都很方便。
通透的客厅和餐厅。
室内外的关系
是我们设计的重中之重。
这个是楼梯屋顶采光,神圣而迷人的光线,引人向上。
因为控制面积,所以我们只是在过道设计了局部2层挑空,屋顶采光,光线能够直接从屋顶洒到地面。
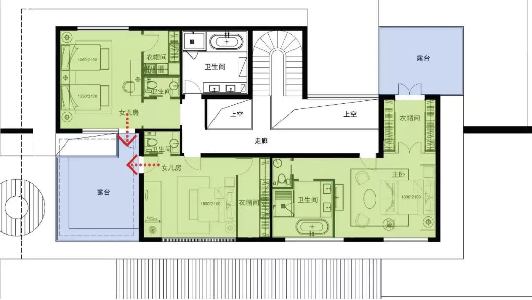
二层有3个卧室,其中一个主卧室,二个女儿卧室。
屋顶露台,可以看到整个院子。
西侧的室外游泳池,我们有比较多的灰空间设计。
游泳池绿化示意
住宅分解图
项目地点:浙江宁波
建筑规模:260平方米
投资规模:1000万人民币
建筑设计:
李国斌
马卿
室内设计:能量黑石 马丹艳
结构设计:东工方木 奚小燕
设计时间:2018年2月
03/浙江中式父母大宅
这个宅子是某上市公司的老板为他父母盖的宅子。
之前也请人设计过一稿方案。房子在基地的中间,周围一圈道路,理由是老年人可以围着房子跑步。
我们认为现代住宅缺的不是跑步的地方,院子才是一个大宅的核心。把方案从以
房子为核心改成了以庭院为核心的围合式
,建筑围绕庭院。
建筑围绕场地布置,围合出一个大的庭院。所有的房间都有良好的通风采光。
二楼是4个卧室和1个起居室。
地下室为客厅、视听室、健身房和工人房。我们设计了多个地下采光井。
平面图是第中间稿方案,而立面是定稿方案。有所不同,我们认为中间稿的平面图更能够传达我们的理念。所以平立面并未完全对应。
下图是前院
客厅和前院之间的水池
从客厅往前院看
内院
后院
自然采光通风模拟图
地下室采光井
地下室采光井示意图
项目地点:浙江宁波
建筑规模:1200平方米
投资规模:1500万人民币
建筑设计:
李国斌
马卿
室内设计:钟俊杰
结构设计:东工方木 奚小燕
设计时间:2018年5月
预计完工时间:2019年12月
延展阅读 / LQS建筑设计事务所的其他作品
有人只花150万住上了这样的别墅!
10X10的地基能玩出啥花样?
我们用泥巴建造一个野奢酒店
老板,喜欢这样的办公楼吗?
私人会所
东钱湖精品酒店
我家
最后:这三个方案有没有您喜欢的?
陆启水
国家一级注册建筑师
高级工程师/
副教授
中国建筑学会会员
作品入选《中国当代青年建筑师》
Tel: 0574-87748966
:19905847167
LQS Architects / 规划/建筑/室内/景观 专注于精细化建筑设计
地址:宁波市鄞州区文苑路462号1号楼603室
客服
消息
收藏
下载
最近














































