查看完整案例


收藏

下载
结庐在人境,而无车马喧
问君何能尔?心远地自偏
四季如春,理想栖居
IDEAL HABITAL
神奇的北纬25度线,擘画北半球上最绚丽的画笔,点染出浪漫的夏威夷岛、秀美的迈阿密、灿烂的冲绳,当然,还有四季如春的昆明。
有人说,在昆明看海鸥,一定要在滇池,因为海鸥天生是和蓝色一起的;我想说,在昆明安家,一定要选择雅居乐&绿地·云和中心,因为这里不止有百鸥齐飞与碧海蓝天,还有光影交织,云蒸霞蔚的诗意生活。
|实景图
城心之上,匠心规划
PROJECT LOCATION
云和中心
位于昆明市西山区滇池路繁华市区,由雅居乐集团联袂绿地香港共同开发。项目毗邻昆明城市地标建筑“昆明双塔”,周边交通便利,风景优美,商业发达,教育、医疗资源丰富。
|项目区位图
THINK
思考
?
项目在示范区的打造上遇到哪些挑战?
1.城市节点营造
2.项目展示功能
3.景观资源利用
4.后期功能转换
基地未来作为幼儿园用地,同时处在城市转角,周边是繁华的市区,如何在繁华的闹市中,寻找一片生态共享的城市微客厅,街心漫公园是我们的初衷?
|体块生成图
推陈出新,巧置场地
DEMONSTRATION AREA
示范区作为整个大区规划中的点金之笔,设计将一路之隔的转角纳入整体前场空间,合理利用沿绿荫大道20米绿化带,结合示范区基本流线,以
百鸥齐飞、栖梦滇池、千帆叠屏、翠羽明珠、云朵森林
为主题,巧妙地将建筑、景观、室内融合在一起。
|总平图
结合属地化景观,项目采用开敞式园林设计,并利用高差打造台地景观,营造富有趣味的空间序列。口袋型的前场铺装,静谧的圆形水面,岛屿状的台地绿化,打造城市生态共享空间,引导驻足、休憩,参观、互动。
|流线分析图
凌空俯瞰归家的云、南飞的红嘴鸥、滇池起伏的波浪等,通过光影搅动宛若
天成,相得益彰。
|实景图
融合创新,书写美学
BUILDING
ELEVATION
建筑佐证着城市的发展与更新。项目以
“百舸入滇,千帆竞渡”
为建筑立意。设计师希望通过“飞翔、静谧、韵律”等景观元素提取,实现
“鸥飞帆影近,云黛展华图”
的场所意境。
|设计元素
底层采用通高的玻璃幕墙;二/三层是悬挑的金属盒子,采用纯白的氟碳喷涂铝折板,铝折板通过冲孔板与实板大小变化规律排列,如同即将启航的风帆。且高透的底层与较实的二三层体块形成对比,更加突出整个立面形式的悬浮感和现代感。
|前期设计草图
|立面推演过程图
|实景图
栖梦港湾,湖山映画
LANDSCAPE PARK
洁白的红嘴鸥飞过广场,伴随人们穿过时光之门,进入这一湾倒影婆娑、波光粼羿的环形水面之中,留下温情舒缓的归家印象。倒影、光影交织渐进,构筑起一个具有
仙林之气的
城市共享公园
。
|实景图
迎 · 宾
人气爆点的网红景观
示范区前场,利用开阔的城市界面,以形似海浪起伏的地形花池、船帆造型的建筑与精神堡垒的层次搭配,打造开放式公共艺术景观,为归家人提供休闲栖息场所。层层叠叠的红嘴鸥聚集在前场,远看如海浪翻涌,吸引来往人群游玩打卡。
|实景图
晨曦中,
鳞次栉比
的表皮如同一个个停靠在
港湾
即将起航的
风帆
。富有
动感
和
张力
,迎接崭新的一天。
|实景图
追
· 光
城市型开放的示范空间
尊贵的艺术迎宾门厅,通过仪式感上的升华,指引客户进入叠水潺潺的栖梦港湾。通过水面的映射,将万达双塔巧妙的植入到视觉构图,实现与城市的和谐共生,城景合一,建景相融的场所精神。
|实景图
踱步中场,设计以滇池波浪为灵感,延续开放式景观主题,将设计的流线与空间的层次完美结合,同时区分功能和艺术装置,预留活动场地,营造一体化的美学空间体验。
|实景图
沿着
飘浮的汀步穿行水面,宛如置身静谧的滇池之中;亲人尺度的建筑门厅平台,以环状铺装、跳动涌泉、精致户外沙发,
点亮场地里的生活气息。
|实景图
立面通过虚实对比,使得参观者在不同的角度,感受到不同的光影肌理,达到步移景异的视觉效果。
|实景图
归
· 堂
艺术精致的生活场所
|平面设计图
· 大 厅 ·
流水纹理般的石材地面与流畅的线条,波光潋滟,灵动迷人;简洁的弧型跌级墙面,灯光映射;艺术装置以滇池为引,一湾静水,白羽翻飞,成群结对的海鸥在晴空中盘旋。
|实景图
· 沙盘区 ·
延续接待前厅的造型层次,沙盘犹如滇池上的翠珠映入眼帘,天花上的不锈钢波浪板反射的影像与沙盘相映衬;墙上的沙盘及单体模型如艺术品般引人驻足。
|实景图
· 洽谈区 ·
深度洽谈区的木饰面造型如画框般把云南天然的美景映入室内,形成独有的迷人特质,彰显出空间的尊贵雅致;置于墙面翼·动的艺术装饰则增加了空间的趣味性。
|效果图
入 · 院
艺术精致的生活场所
走进后场空间,视线豁然开朗。360°镜面反射的彩虹圆环、绿意盎然的林下空间
、波浪形铺装的花境夹道、简洁而有韵律的立面设计等,往若置身自然梦境,带着满心欢喜归于家的怀抱。
|实景图
高低起伏的镜面云海掩映在丛林之中,形成梦幻般的云朵森林;
在彩虹圆环的奇妙光亮里,云朵森林像是蒙上一层黑纱,在静谧的黑夜里,悠然绽放。
|实景图
让所造之境皆为人服务,
让每一个可视空间透视未来生活的想象。
云和中心
凌驾于城市繁华之上,
营造一方诗意栖息之所,知遇生活的朝夕温度,
未来它不只是昆明的网红打卡地,
城市向往的生活场,亦是万千儿童的成长乐园。
细节展示
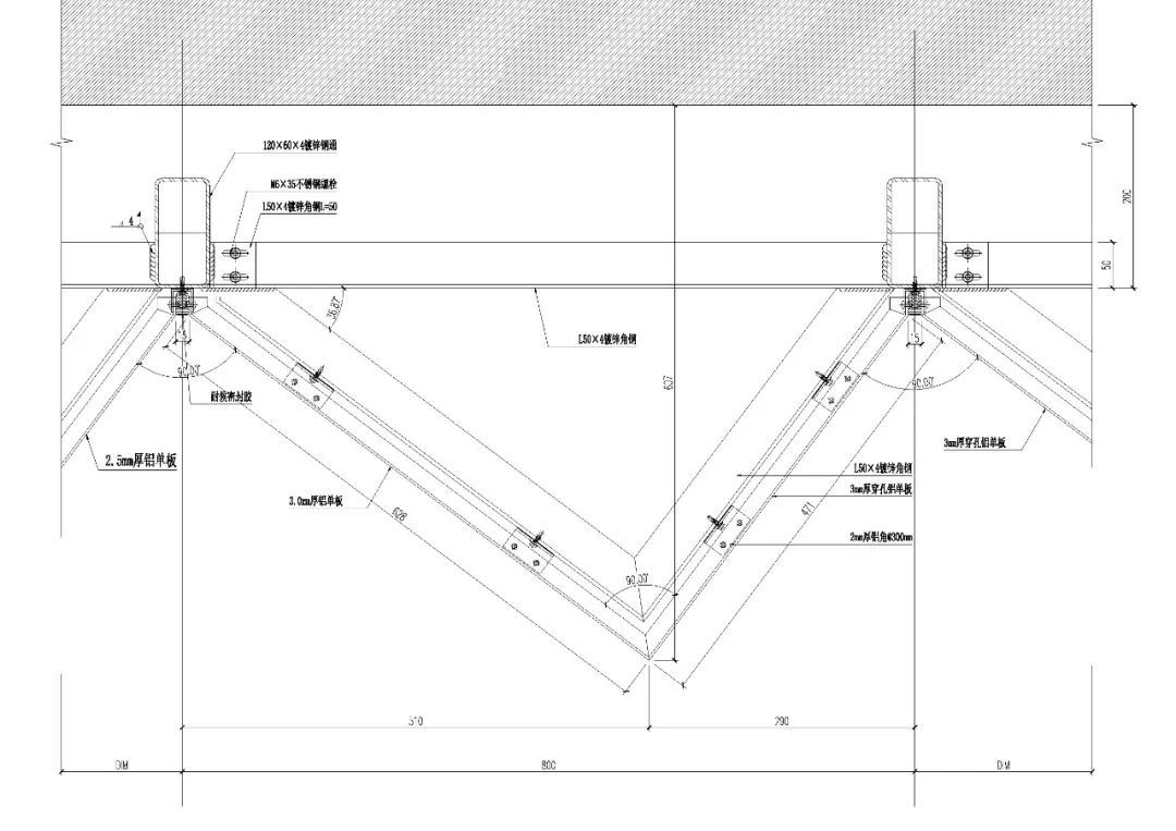
穿孔板构造节点
穿孔板表皮肌理及孔率研究
售楼部拆改分析
工程档案
项目名称:云和中心
项目开发:雅居乐集团&绿地香港
项目地址:昆明市西山区小官路与南博路交叉口
建筑设计:洲宇设计-上海创意三部
设计团队:崔文涛 王中华 张卫华 李文卿
镐金凤 乔家兴 陈 地 蒲生辉
施工图设计:洲宇设计-昆明分公司
甲方设计团队:雅居乐集团
景观设计:重庆蓝调城市景观规划设计有限公司
室内设计:梁志天室内设计(天津)有限公司
幕墙设计:深圳市中深建装饰设计工程有限公司
灯光设计:广州热伙照明设计有限公司
示范区面积:约1万㎡
摄影:何炼(建筑) 雪尔空间(景观)
撰稿:地产线
客服
消息
收藏
下载
最近















































