查看完整案例


收藏

下载
香槟色的优雅
西格拉姆大厦
Seagram Building
密斯·凡·德·罗,菲利普·约翰逊 1958年
纽约,美国
西格拉姆大厦的业主是加拿大酿酒公司,他们期望是在曼哈顿建设一栋能代表他们酿酒事业并富有纪念性的大楼,而这栋大楼必须在他们企业成立的100周年之前完成。
最后在曼哈顿,一座香槟色如醇厚名酒一般的大厦诞生了。直至今日,很多的摩天大楼依然拥有这一特色。虽然一直在被模仿但一直无法被超越。
大厦的设计风格体现了密斯一贯的风格,清晰的结构和构造。对他而言,建筑物的特性是隐藏在内部秩序与比例之中的。建筑的功能需求会随着时间而变化,在这点上来说,就功能主义而论,唯一有道理的建筑物乃是不顺应任何功能的建筑,但若把形态当作目标,就是密斯所不能接受的形式主义。
钢铁和玻璃的大量使用成为他的作品的一大特征,透过清晰的逻辑操作,他的作品最后所呈现出的是带着古典精神的洗练形式,经久不衰。
除了外立面和大广场上的花岗岩外,室内部分还使用了大量铜、洞石和大理石,使西格拉姆大厦成为当时世界上最贵的建筑。
▲底层石材
整个建筑的细部处理都经过慎重的推敲,简洁细致,突出材质和工艺的审美品质。考究的细部设计,使得一贯不被美国人看好的玻璃摩天大楼显得如此优雅,这得益于密斯在新古典主义风格上的造诣。因为西格拉姆大厦,使得玻璃摩天楼在美国人眼中的地位大幅提高,在陆续出现的大型事务所的推波助澜之下,大量形似的建筑开始出现在美国的大城市之中,比如芝加哥和纽约,一时之间这些建筑也成为了现代主义的符号。
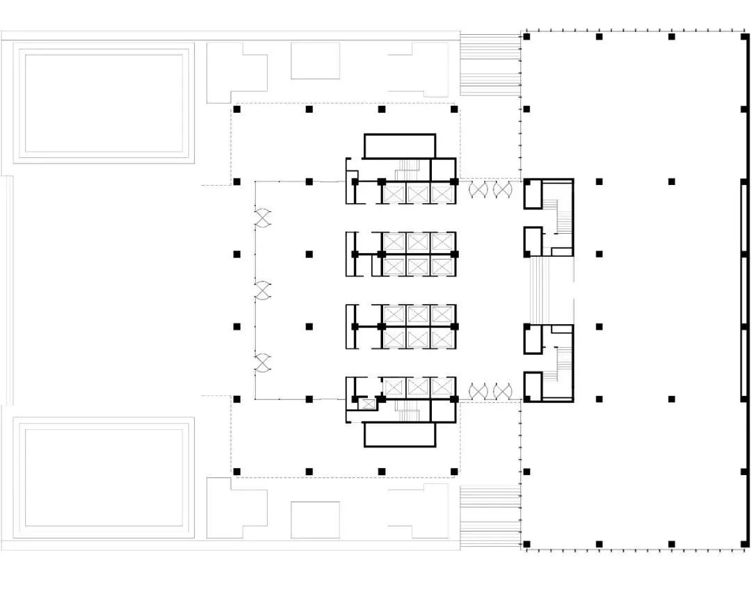
▲平面图 图源:Mies Van Der Rohe The Built Works
▲立面图 图源:Mies Van Der Rohe The Built Works
▲节点构造图
▲节点构造示意图
▲节点实景
但对于作品被大量模仿,密斯本人并不以为意,他认为自己就是一个通用准则的创造者,一个最高标准的制定者。
1959年后,西格拉姆大厦迅速确立了自己的现代经典地位。《纽约时报》评论称其为“20世纪最重要的建筑”。在50年后的今天,西格拉姆大厦依然受到追捧,是纽约天际线中国际风格摩天大楼的一个经典范例。
攸设计说:设计小背景
当时选择密斯是因为CEO受到他女儿菲莉丝·兰伯特影响。当她注意到报纸上登出的充满装饰元素的新古典主义风格的方案后,就立刻飞回纽约劝说父亲放弃原先的计划,而父亲也交给她寻找合适建筑师的任务。
她和当时MoMA建筑部的负责人菲利普·约翰逊合作,试着在最后的四人名单(赖特、柯布、密斯和贝聿铭)中选择一位合作建筑师,除了考虑到选择前两位可能会让甲方很难提出意见外,兰伯特在参观了密斯的湖滨大道公寓后,着迷于密斯洗炼的建筑设计。为了投桃报李,密斯聘请了时为纽约注册建筑师的约翰逊参与这个项目,主要负责室内的设计工作。
有方空间”
和网络,此内容仅供学习参考不作为任何商业用途。
攸地UDIA
不止于设计
客服
消息
收藏
下载
最近

























