查看完整案例


收藏

下载
艺术来源于生活的理解与尊重。摒弃欧式建筑的浮华冗杂,以简约的色彩艺术游刃于现代与古典之间,让空间同家居的平衡在舒适中不断凝结,「浪漫」「惬意」的生活从此悄然进入。
传承经典,与时代接轨,从世俗中脱颖而出的简洁和自然,是本案业主追求的生活方式。设计师从「心」出发,用最原始的线条雕琢生活的态度与空间的氛围感,还原生活艺术至美状态。
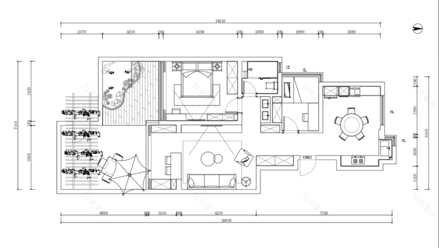
△ 项目平面图
「穿梭」
-
客厅以极其温柔的形式,沿用色彩的相似性,多层次的白穿梭于衔接处,相互交织,给予空间错落感。
设计师将墙体打通,贯穿属于视觉的一镜到底。舍弃玄关,归还居者入户时的豁然,于局限的空间内增加隐蔽柜体,将收纳发挥极致。
简欧风的地砖结合现代建筑几何图案,传递立体的艺术感。沙发在深、浅,明、暗的秩序中赋予空间强烈的通透感,在优美中静谧,于清新中沉沦,仿若呼之欲出的西方精灵踏上归家之旅。
四时轮转,揉碎光的浓烈,于天然中感受温和。融入雅致质朴的灯光,将南北空间的沉寂划破,分割出室内外的从容,模糊现代与古典的冲突。
落地玻璃窗自然承接,无需任何跳跃修饰,还原生活最初本质。躺坐于沙发上,将和煦春风、温润骄阳、青葱郁绿的画面尽收于眼底。
「共鸣」
-
艺术是家居生活的调味剂,酌一口小酒、品一壶清茶、弹一首巴赫、唱一曲流行,沉浸于灵动的艺术世界,感受来自家人们欢歌笑语的共鸣。
借用厨房空间,将餐厅共用,开放式予以开阔视野的同时,也连系家人团聚的共情。圆润图案持续优化空间个性,吊顶、灯饰、餐桌保持形状的连贯,配色跟客厅统一,往往能叙述生活轨迹的完整与细致。
设计师将家的温馨之处悄无声息地隐藏于细节之中,居者满足饮食的喜悦之余,窗外景色依然能赏心悦目,乐享家人其乐融融。
「净地」
-
古典空间的精髓在于异域风情与繁琐纹路,而主卧并未过多粉饰,用回归现代原木空间的自然素雅方式,精挑细选出浅色基调,淡然地显现生活质感。
设计师追求建筑所带来的呼吸感,跃出空间的僵局,分拨花园与卧室的维度和层次。拉开窗纱,空间内的宁静谦和与窗外花园的闲情雅致交相呼应,留一半清醒,褪去居者疲惫,还身心一片净地。
时光如水流,世间的纷扰在孩童的“净地”中仿佛静置。设计师给儿童营造的粉色气氛,打造出属于童真的私密天堂。伴随成长的力量叠加安宁舒畅,在别具格调的空间里,肆意发挥艺术天分与灵动个性。
时光如梭,岁月如歌。家人同空间的对话,宛若恬逸生活的主旋律,在艺术氛围中演绎出居者感官世界与自我认知的回响。
DESIGNER
About Designer More
▼
推荐阅读
设计师的房子 X 王朝婧 | 70㎡精装房改造逆袭,真实版「小家越住越大」
M F D设计丨ZOO COFFEE x 动物环游 · 不止咖啡
邓周彬新作 | 格局重置,老宅的新生启示录
客服
消息
收藏
下载
最近





















