查看完整案例


收藏

下载
「 原 境 」ORIGIN REALM
流动即是本源 Flow is the source
△图片来源:视觉中国(上),戏构建筑工作室(下)
概念阐述
Concept Statement
在方案之初,戏构建筑设计工作室思考住宅设计的本源问题,梳理人与空间中的运动关系,希望让空间变得更加流动、更加亲人。通过研究自然界中的基本形态,给予设计充分想象与赋能。“原子”作为本次方案的概念演化,设计团队将这一最小粒子的物理模型延伸到本案的设计改造中。将原子的结构形式进行抽象提取,在空间和平面中形成转译。意在用物理层面的物质本原展现空间形态的纯粹本真。
At the beginning of designing the scheme, XIGO STUDIO thought about the origin of housing design, and hoped to create a more mobile and closer space while sorting out the movement relationship between human and space. By studying the basic forms in nature, the design team made the design full of imagination and power. Taking "Atom" as the conceptual demo of the project, they extended the physical model of this smallest particle to the design transformation of this project. The designers abstracted the structural form of atom, and transformed it in space and plane so as to show the purity and nature of the space form through the material origin of physical aspect.
前期分析
Site Analysis
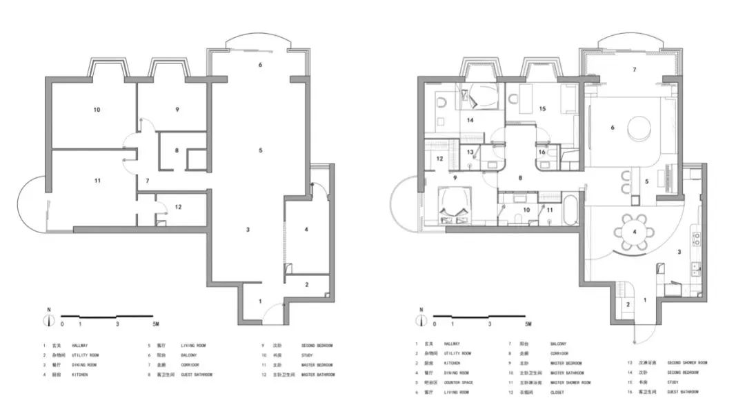
房屋主人为三口之家,对于居住生活的卫生和收纳条件有很高要求,形式上希望力求简洁,保持空间的整体性。188 平米的面积下,原始结构中的“动静区”划分规整,拆除厨房墙体隔断后,公共区域呈现为一个通透开敞的完整空间体量。如此开敞的大户型设计上也应该可以有更多可能。
The apartment owner is a family of three, who has very high requirements on living sanitation and storage condition, and hopes to have a simple space form while maintaining the integrity of the space. With the area of 188 square meters, the original structure has well-regulated "dynamic and static zones". After the wall partition of the kitchen is dismantled, the public area presents as a complete space structure that is transparent and open. With such an open and large house type, there should be more design possibilities.
△场地概况 © 戏构建筑工作室
△平面前后对比 © 戏构建筑工作室
改造后平面仍然保持基本的三居室格局,但设计团队重新梳理了公共区域的空间组织和不同房间的结构关系,赋予原单一“方盒体”一种递进变化的空间序列,同时专注于空间形式构筑,通过形态带动功能,产生附有联系的依存关系,让人在行进过程中具有非常丰富的空间体验。
After reconstruction, the plane still remained the basic pattern of three-bedroom. However, XIGO STUDIO rearranged the space of the public areas, reframed the structural relationships of different rooms, and endowed the originally single "box body" with a space sequence with progressive changes. Meanwhile, they focused on the construction of space form, promoted the function through form, and developed a dependency relation full of connectivity so that the habitants can have rich space experience when they live there.
△概念分析 © 戏构建筑工作室
△叙事轴测图 © 戏构建筑工作室
弧形影壁
Arc Screen Wall
步入玄关,第一视觉落在玄关与餐厅之间的弧形影壁上。影壁的设立划分出两条“向光而行”的动线方向:左侧入口通向串联整个空间的主动线,直达毗邻阳台的客厅区;右侧动线连接开放式厨房,通向另一位于洗衣区的采光口。两动线之间构成围绕影壁后餐厅区的第三条回游动线,带来空间的开放性。
When habitants enter into the hallway, their first sight will be cast at the arc screen wall between the hallway and dining room. Two moving lines that "move in the direction of light" are designed in the screen wall. The entrance on the left leads to the main moving line which connects the whole space, and reaches the living room adjacent to the balcony. While, the moving line on the right is connected with the open kitchen and leads to another daylight opening located in the laundry area. Between the two moving lines, the third back-and-forth moving line is formed around the dining area behind the screen wall, which endows the space with openness.
弧形影壁的遮蔽功能一方面保证内部空间的隐密性,另一方面为后续的空间叙事做铺垫。影壁与入户门口的小距离错位,将采光引入相对独立的玄关空间。
入口玄关区设计了非常强大的储物空间,同时嵌套了一个弧线元素为合起来的白色换鞋区。右侧动线连接厨房,通顶柜体开设洞口,提供进门后买菜放置的区域,形成厨房与玄关之间的互通。
The shielding function of the arc screen wall, on the one hand, ensures the privacy of the internal space, on the other hand, it foreshadows the subsequent space functions. Between the screen wall and the entrance door, a small distance dislocation is formed to introduce light into the relatively independent hallway space. In the hallway area, a space with very strong storage function is designed. And an arc element is embedded as the closed and white area for shoe changing. The moving line on the right is connected with the kitchen. The roof-connected kitchen cabinet is designed with holes to provide area for putting vegetables after habitants enter the apartment, which forms the interconnection between the kitchen and the hallway.
旋转餐厅
Revolving Dining Room
餐厅通过清晰的色域边界的划分和色块量体的构建,对空间形态进行大胆提炼和概括,从窗边延伸至室内的流线,围绕餐厅旋转让空间更加活跃,动势节奏愈加剧烈,与客厅吧台空间的流线吊顶形成节奏变化。极度简化的形式中功能性的内容被保留,冷色系的色彩运用和几何形的穿插共同赋予餐厅一种艺术展厅的既视感,白色桌椅、灯具成为“展厅”中的艺术藏品,形态和色彩与环境相呼应。
Through the clear division of gamut boundaries and the construction of color lump and structure, XIGO STUDIO boldly abstracted and summarized the space form. The streamline that extends from the window to the interior, and rotates around the dining room makes the space more active, and the dynamic rhythm more intense. And the streamline, together with the streamline ceiling of the bar space in the living room also forms a rhythm change. In the minimal form, the functional content is retained. The application of cool colors and integration of geometric shapes jointly endow the dining room with a visual sense of art exhibition hall. Accordingly, the white tables, chairs, lamps and lanterns become the art collections in the "exhibition hall", and echo with the environment in form and color.
从客厅看过去,天边引出的流线与水平框线相互嵌套叠望。充足的收纳墙和餐边柜,解决了一家人的储物问题。场景中三把中古椅具有一定的收藏价值,分别为:No.4860 Universale Chair,由 Joe Colombo 于 1965 年设计;Artemide selene chair,由 Vico Magistretti 于 1969 年设计;Carlo Bartoli Chair Model 4875 for Kartell,于 1970 年设计。
Seeing from the living room, we can find that the streamline starting from the horizon embeds and overlays with the horizontal frame line. The adequate storage wall and sideboard cabinets solve the storage problem for the whole family. The three vintage chairs in the scene have certain collection value. They are respectively No.4860 Universale Chair designed by Joe Colombo in 1965, Artemide Selene Chair designed by Vico Magistretti in 1969, and Carlo Bartoli Chair Model 4875 designed for Kartell in 1970.
中心舞台
Center Stage
将酒吧台与钢琴融合为一个中心舞台,整体空间组织围绕着舞台展开,舞台作为带动空间形态产生流线运动的核心,如同空间的“原子核”联系各功能分区。入口玄关、餐厅、舞台、客厅四个功能分区延北侧光源方向依次排布,光照影响在四个空间层级的过渡中渐强渐弱,营造从入户至房屋内部的递进空间节奏。流线形在中心空间交集,舞台也形成整个空间的核心视觉焦点。
The designers integrated the bar counter with the piano area as the center stage, and arranged the overall space around the stage. The stage, as the core that drives the space form to produce streamline motion, is like the "nucleus" of the space, connecting with each functional area.
The four functional zones: entrance porch, dining room, stage and living room are arranged in sequence along the direction of the light source from the north side. The influence of light is gradually strengthened and weakened in the transition of the four spatial levels, creating a progressive spatial rhythm from the entrance to the interior of the apartment.
Streamline forms intersect in the central space. The stage also forms the core visual focus of the entire space meanwhile.
流动客厅
Dynamic Living Room
流线吊顶自阳台延伸至走廊,灰色与白色的色彩区分强调流线的形态轨迹。同时将平面的色彩区隔延展到立体的空间分割中,地面的色域形状划分呼应天花的颜色形态,对应构成的灰色体量延伸至内部走廊。站在端点望向客厅,连续的流线吊顶勾勒出空间图景的边框,灰色吊顶延伸至旁侧的走廊入口,将空间动势引向内部。
The streamlined drop ceiling extends from the balcony to the corridor. The color distinction of gray and white emphasizes the form track of the streamline. At the same time, the plane’s color partition extends to the three-dimensional space segmentation. The color gamut’s shape division of the floor echoes with the color form of the ceiling. Meanwhile, the gray structure formed correspondingly extends to the internal corridor. Looking towards the living room when standing at the end, habitants can find that the continuous streamlined drop ceiling outlines the frame of the space picture. The gray drop ceiling extends to the entrance of the corridor on the side, leading the space’s kinetic potential to the interior of apartment.
空间的形态构筑以外,家具单品的使用克制在最低限度,沙发单品选择意大利设计师 Vincenzo De Cotiis,2014 年为 Baxter 设计的这款 TACTILE 香蕉船沙发。沙发利用线条那种拥抱的形态和延展性与空间和谐统一。
电视墙设计整面落地储物系统,最大限度的收纳让空间更加整洁。
Apart from the space’s form construction, the use of furniture items is kept to a minimum. TACTILE banana boat sofa designed by Italian designer Vincenzo De Cotiis for Baxter in 2014 is adopted. The sofa is in harmony and unified with the space through its streamlines’ hugging shape and ductility. The whole TV wall is designed with a storage system that starts from the ground, which provides a maximum storage space, making the space more neat.
引光入室
Introduce Light into the Apartment Interior
光的参与是空间之所以能作为“空间”呈现在我们视野中的先决条件。设计团队希望自然光线能够尽可能地伸入到空间的各个角落。灰色乳胶漆的吊顶与地面铺装延伸至走廊尽头,三面环绕的灯带营造出科幻隧道的未来感。
The participation of light is a prerequisite for space to be presented in our vision in the form of "space". The designers hope the natural light can penetrate into every corner of the space as much as possible. The gray drop ceiling painted with latex paint, and floor decoration extend to the end of the corridor. The light belts that surround three sides create a sense of future like the sci-fi tunnel.
原走廊作为公共区与私密区的过度空间,被包裹在整个空间结构的中心,显得封闭狭小。设计团队将原书房与次卧的位置对调,方便打开视口,将北侧自然光线引致走廊,再传递至南侧主卫生间。主卧入口与走廊入口相对位,日间卧室门开启时,走廊将获得第三个方向上的自然采光。
The original corridor, as the transitional space for public and private areas, is wrapped in the center of the whole space structure, which appears closed and narrow. XIGO STUDIO exchanged the location of the original study with the secondary bedroom to create a more convenient viewport so that the natural light from the north side can be introduced into the corridor and then to the master bathroom on the south side. The entrance of the master bedroom is designed opposite to that of the corridor so that the corridor can receive natural light from the third direction when the bedroom door opens in the daytime.
通过扩展通向书房的走廊宽度,利用超白玻璃作为书房与走廊之间的隔断,保证通透性。将客卫生间分为马桶间和淋浴间两个区域,分别排布在走廊两侧的位置,顺势实现了客卫的干湿分离。百叶窗帘的开合可以根据使用的需要灵活改变书房的封闭开敞状态,灵活的使用功能也能为走廊带来丰富的光影变化,同时有效保障了书房的私密性。
Meanwhile, the designers expanded the width of the corridor leading to the study. Ultra white glass is used as the partition between the study and corridor, ensuring the transparency. The guest bathroom was divided into two areas: namely closestool cubicle and shower cubicle. The two areas are respectively arranged on the both sides of the corridor. Accordingly, this design helps to realize dry and wet separation in the guest bathroom. The opening and closing of venetian blind can flexibly change the state of the study according to the need for use. Besides, the flexible function of venetian blind also can endow the corridor with rich light and shadow change, and effectively ensure the privacy of the study at the same time.
独立天地
Independent Space
屋主女儿需要一个可以宅在房间一天的独立天地,女儿有收藏手办、动漫周边等藏品的爱好。根据需求在次卧设置了三组玻璃门储物柜,间隔的排列方式丰富立面变化,玻璃柜门带来透气感。
The apartment owner’s daughter needs an independent space where she can stay in the room all day. Since the owner’s daughter has the hobbies of collecting garage kits, anime products and other objects, three sets of lockers with glass doors are installed at intervals in the secondary bedroom according to the demand, which enriches the space. Besides, the glass doors of the lockers create a sense of breathability.
要满足女孩日常睡觉起居的同时,灰蓝色体量的植入界定了学习游戏的功能分区。在次卧的小尺度空间中,区域安排有序,色域互相区分,形态相互关联。另一侧床体连接飘窗形成一个整体的休息区,飘窗下设计了储物柜提供床品的收纳功能。
To meet the girl’s requirements on daily sleeping and living at the same time, the implantation of gray and blue structures define the functional division of learning and game. In the small space of the secondary bedroom, zones are arranged orderly, color gamuts are differentiated from each other, and forms are related to each other. In the other side, bed is connected to the bay window, forming an overall rest area. Under the bay window, a storage cabinet is designed to provide storage function for bed products.
主卧收纳
Storage in the Master Bedroom
主卧室为男女主人居住的房间,地面选用灰色木地板,房间整体较为简洁。为了解决收纳问题,设置了步入式衣帽间,配置幽灵门,轨道藏进了门的内侧实现了极简悬浮的效果。衣帽间内部拥有强大的开放式收纳系统,完全解决了业主日常生活衣物收纳问题。
The master bedroom is a room designed for the male owner and female owner. Gray wood floor is used for paving the floor. The whole room is relatively neat and simple.
To solve the storage problem, XIGO STUDIO designed a walk-in cloakroom installed with an orbital stealth door whose track is hidden inside the door, achieving the effect of minimal suspension.
Inside the cloakroom, there is a powerful open storage system which completely solves the problem of storing owners’ clothes for daily use.
极致卫浴 Exquisite Bathroom
卫浴部分总体分为三个区域,主卧卫生间、客卫生间和独立洗浴间。卫生间做到了干湿分离,干区选用壁挂式马桶和人造石一体盆,极致无缝。主卧卫生间干区和湿区都有开窗,搭配长虹油砂玻璃,给予卫生间充分的采光同时材料自身带有朦胧的暧昧美感。
The bathroom is totally divided into three areas: master bathroom, guest bathroom and independent bathroom. Dry and wet separation is realized in the bathroom. In the dry area, wall-mounted closestool and artificial stone basin are installed, achieving a high-efficiency of seamlessness. Windows are designed both in the dry area and wet area of the master bathroom. The windows, together with the Changhong oil sand glass, provide the bathroom with sufficient daylight. Meanwhile, the materials used present a hazy ambiguous aesthetic feeling.
△原始平面图 © 戏构建筑工作室
△改造后平面图 © 戏构建筑工作室
△立面图 © 戏构建筑工作室
Project Information
项目名称:原境
项目类型:住宅公寓
项目地址:北京市海淀区紫竹院路
建筑面积:188㎡
设计公司:戏构建筑设计工作室
方案主创:刘阳、张艺馨
方案深化:王丹
设计时间:2019 年 7 月-2021 年 6 月
竣工时间:2022 年 4 月
撰文排版:刘阳、于水骄
摄影版权:立明
学术顾问:朱力
施工工长:朱新贵
主要材料:高钡特树脂、佐敦漆、德利丰岩板、享木地板
家具软装:步川厨房与衣柜、那里国际家居 Siloni casa、Collectie 中古家居
About Designer
刘阳
戏构建筑设计工作室创始人/主持设计师
A
b
o
u
t
company
「 戏构建筑设计工作室 」是一家专业从事“改造类”建筑与室内设计的事务所,2019 年成立于北京。
“戏”是现实的娱乐、是美好的梦境;“构”是逻辑建造、是倾向于建筑学中的严谨表达。在实践中我们以纯粹、活力、有机、当代的设计理念,为更多业主创造出更舒适、更独特、更具奇幻感的空间体验。
2022 发现中国好设计作品征集
15010580132
客服
消息
收藏
下载
最近


















































