查看完整案例


收藏

下载
把时间注入建筑,随四季变化而变化。Ruixiang GardenIn Dongshan,Natural Wrap。右见设计×东山瑞相院。序 Preface。建筑可以理解为本来只是一个容器,视其功能定位而不同,不可能是孤立的单体,永远会与阳光、自然、风、水、空气并存,与气候并存。建筑外形的重要性可以理解为与视距有关,与周边环境有关,与情绪有关,与使用功能有关。
建筑之情绪 Architectural mood
作为一个占地十亩,有着数棵很多年的银杏古树且位于苏州东山太湖之畔的餐饮、住宿、娱乐等复合型功能的载体,我们在本案项目整体设计中采用自然包裹的手法去设计,如树木、小溪、石桥、雾森、石雕、草坪、墙蔓植物等,并用黑色碳化木做建筑外立面的包裹,用大量的植物去包裹建筑、用时间去把建筑与自然融为一体,用时间的变化去改变建筑,生长的建筑是另外一个思想主题,会慢慢地产生变化。阳光照射也会改变建筑的形状,四季也会改变建筑的形状。或许二十年后的建筑已经不是现在的建筑,而我们也不再是我们。
水桥之纽带
Link of water and bridge
位置变化产生的视觉变化。室外的现有场地、分散的小体量单体建筑,各自孤立,说大不大,说小不小的地块,如何让建筑之间产生联动是我们需要探索的问题。作为太湖边的建筑,我们考虑用水与桥去连接这些建筑,用时间的痕迹去做这些建筑的纽带。石板、石雕、青瓦、石柱,用水从桥下过、从房屋下过、从树下流动。听水的声音,看晃动的光影,鸟的跳跃与鱼的游动,或许这才是生活的样子。
自然的视觉 Natural vision 枕流、和声、枕溪、听涧、清欢、念秋、拾忆、忘忧、久栖、良憩、尘外,单体建筑的命名与自然有关,与情绪有关,与人的行为有关。在这样的建筑内向外看去,自然的视觉引发的情绪与思考才是建筑本身存在的价值。
“空”间之思想
The thought of "emptiness"
内空间的设计思想以“空”字作线。“空”字应该是一个中性字,无具体指向,做空与放空其实特别难。身体接触什么,你在一个空间呆这二十四小时需要什么,你的身体形状会是什么样。装饰主义的目的性又是什么,如何去满足不同群体的需求,审美的、精神的、诱导性的,或许,我们在短时间内的空间体验会改变数年来形成的习惯,然后又返回固定模式。
归于自然,历久弥新 Return to nature and live forever
这个项目有一个共性的选料要求,旧物、历史、肌理、质感、自然、回收;在地化的材料上的使用,是项目设计的根本。宅中有园,园中有屋,屋中有院,院中有树。
▽概念图
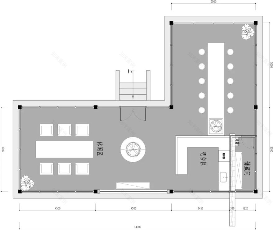
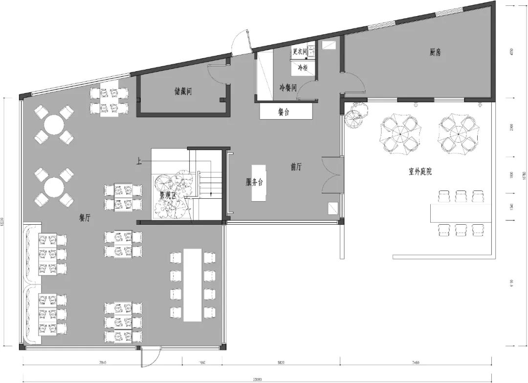
▽ 平面图
▽剖面图
Project Information
项目名称:苏州东山瑞相院民宿
设计方:苏州右见建筑装饰设计工程有限公司
景观设计:苏州右见景观规划设计有限公司
项目设计:2020 年 10 月
完成年份:2022 年 6 月
设计团队:金倩倩/汪拓/朱书君/陈旗/纪鑫娟/王星明
项目地址:江苏省苏州市东山镇启园路 106 号
建筑面积:约 1400 平方米
摄影版权:张坤(繁玺建筑摄影)
About Designer
汪拓
苏州右见商业设计机构创始人
苏州大学工业设计外聘导师
苏州科技大学研究生校外导师
苏州右见建筑装饰设计工程有限公司是装饰设计有关的公司,公司位于苏州市姑苏区娄门路 266 号,右见公司主要从事室内外装饰装潢工程,幕墙工程,景观工程,智能化安装工程设计。
About Company
右见建筑装饰设计工程有限公司
右见商业设计机构,于 2015 年汪拓创立,是一家专业从事设计相关产业的设计机构,其下涉及:产业跨越室内外装饰设计工程、高端家居、装饰材料(橱柜、地板等)、文化艺术集合空间、酒店、餐饮等。
2022 发现中国好设计作品征集
15010580132
客服
消息
收藏
下载
最近


















































