查看完整案例


收藏

下载
看的见风景的房子。
·
没有什么赶着要去做的事,也无需可以遵循某种节奏。不快进的生活就像这个家,美好而轻盈。
Location | 上海
Area | 480㎡
Designer | 盛莉娜、苏昊城
在设计师盛莉娜的操刀下,整个家如有着微风的夏日,散发着干净明朗的气息,简单、自由又轻盈!
一楼原始的非承重墙被拆除大半,承重柱与墙面之间原本的楼梯空间被设置为纵向的早餐吧台,门厅、钢琴区、客厅、早餐区和餐厅之间都不再有门的存在,人的视野和动线都变得无比的自由与通达。
01 入户门厅
看的见风景的房间
在玄关进门处的休闲区,精致的白色窗框凸显出窗外的绿意,好似一幅天然的风景画卷。
02客厅
兼容混搭风
客厅里摆放着一家人各自喜爱的家具,爸爸钟情的稳重型电视柜,妈妈喜爱的精致系沙发,两个孩子有专属的古怪金属椅和猴凳雕塑,家具们虽然风格各异,却在设计师营造的氛围中相处得格外和谐。
Taylor Llorente 金属椅的构造好像一个被打开的蜂巢,一旁摆着“暴力熊”和小猴雕塑,一枝千年木立在侧后,画面充满诙谐的艺术感与童趣。
垂帘百叶窗为室内带来奇妙的光影肌理,独具风格的设计单椅和 crazilla 潮玩摆件相映成趣,特别适合在这里阅读或与孩子一起互动玩耍。
电视柜与书柜的组合方式,实用而独特,用来摆放主人的艺术收藏,轻巧、别致。
电视柜上放着以漫画人物阿童木为主题的画作,古今结合的画风呼应了家中淡淡的禅意氛围。一大束黄金串钱焕发蓬勃生机,植物的绿意在不经意间将人的视线托起,与空中一组带有绿色元素的自由造型吊灯相遇,物件中若隐若现的童趣呼应着电视柜上阿童木主题的艺术画,一场亦古亦今的悠远对话,在家中悄然展开。
放眼望去,一楼门厅、钢琴区、客厅、早餐区和餐厅之间都不再有门的存在,人的视野和动线都变得无比的自由与通达。
03 餐厅
脚下别有故事
餐桌和彩色餐椅色彩互补,玻璃地板下是约 1 人高的恒温恒湿的酒窖。只要坐在餐桌边,就能透过不同于地板的钢化玻璃门户看见它。一家人用餐时最愉快的事,就是看着酒窖里的一张张酒标回忆每瓶酒的故事:“这瓶是旅游时从酒庄带回来的好年份;那瓶要等女儿成年礼的时候喝;最边上的那瓶是好友送来的贺礼,许久未见应该在家办个小聚会......”
二层布置了一家人所需的三间卧室,另外还有一个简单的三层阁楼游戏室。“一家人生活在同一屋檐下,又能各自安放属于自己的小宇宙”,主人对家的期望在设计师的帮助下完成效果很出彩。
04 楼梯井
结构与光影之美
楼梯井从原来的屋子的正中移到侧面的透光天井处,成为落满阳光的上下通道。
白色楼梯线条柔和、利落,踏步采用了单片木板的组合,透过一阶阶缝隙,来自屋顶的自然光层层落下,营造出特别的光影效果。
从阁楼往下看,楼梯扶手弯折出的曲线特别有美感,蜿蜒向上直至和整体空间融为一体。
05 卧室 刻意的留白
无主灯设计的主卧,刻意做了大量的空间留白,在这里醒来,更能体会到放空自己的闲适感。
地暖、中央空调、新风系统、净水管线、照明网络、隐形音箱......得益于高科技产品的加持,地面始终保持适脚的温度,日出时窗帘便自动开启,每进一间房都能听到自己喜欢的旋律,看书时光线明亮而怡人,而室内空气呼吸起来也清爽而洁净……就好似家里住进了一个经验丰富的隐形管家,贴合着每个家庭成员的习性,每时每刻都在对家的环境进行着细微的调整。
06 阁楼
快乐的儿童天地
斜顶阁楼设置为两个孩子的游戏室,乌龟造型书架是宝宝们的最爱。墙上的圆形小窗与网红日落灯一起交流,营造出别致的童趣。
07 花园一家人的温情时光
花园里没有太多花境,而是移植来数颗大树,简单铺上防腐木做地板和坐台,这样的设计既有格调又方便日常打理。
时间在清朗的空间里漫无目的地流淌,微风拂过花园里的枝叶发出沙沙的声响,这是独属于一家人的温情时光。四周很安静,生活很轻!
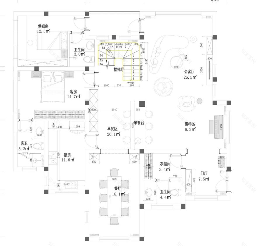
一层户型图
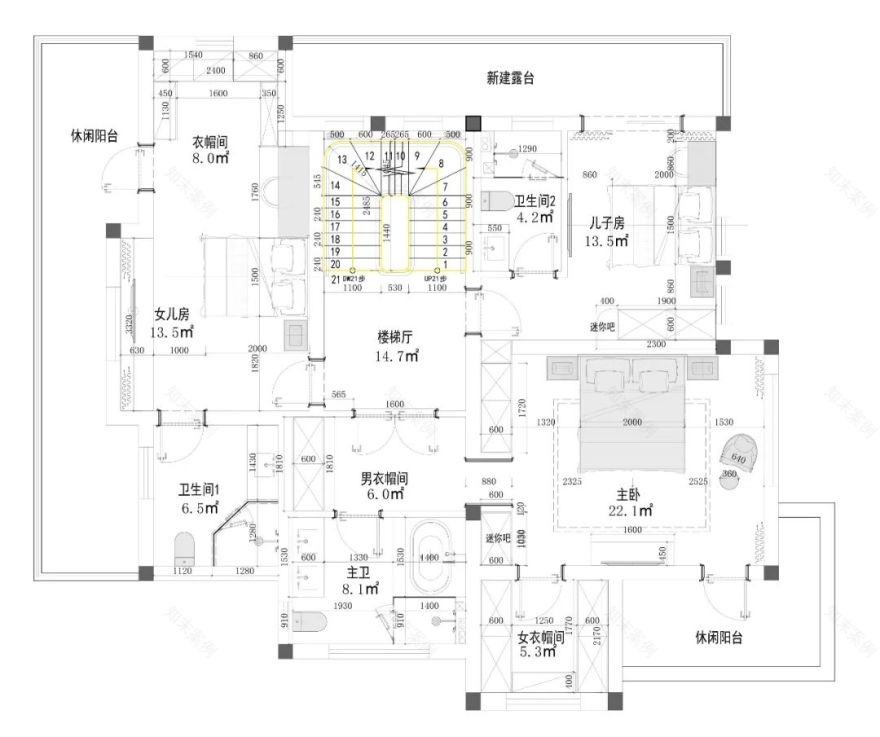
二层户型图
About Designer:
SHENG LINA(盛莉娜)
盛莉娜空间设计创始人
加拿大魁北克大学 PMP 硕士
2021 发现中国好设计年度推荐设计师
作为王安忆笔下《长恨歌》中提及的民国上海四大家族之一盛氏家族的后人,从小耳目渲染,深涉海派文化与西洋文化的融合精髓。留学多年后,Lina 回到上海专注室内设计行业。设计风格不拘一格,大胆多变。
2022 发现中国好设计作品征集
15010580132
客服
消息
收藏
下载
最近











































