查看完整案例


收藏

下载
艺术的伟大意义,在于它能显示人的真正感情,内心生活的奥秘和热情的世界。
——罗曼·罗兰
▲项目视频
—
楮墨浙韵,印象衢州
随着现代城市资源配置与服务,从聚拢向分散化、碎片化转变,空间开始复合更多的功能需求,新的生活场景里空间的体系被重构,抛开城市杂乱的抒怀,回归私人空间定义。在衢江之畔,设计师通过设计赋能江南婉约的人文气质,回归本真,将空间个性彻底释放。
▲空间分析图
作为商办空间的打造,一家企业的创始人,业主以高端简约的风格要求空间的气质,同时满足业主接待朋友,品茶、收藏以及高尔夫运动的功能需求。因此,此项目的设计,经由化繁为简、解析设计语言,结合居家空间的理性,将礼、宴、赏、乐、享元素以理性形态分区域投放,作为每层的功能特点;从功能分区入手,又根据地域文化提取茶、瓷、渔、帆、花这五大设计元素,多层次文化注入空间,承载人们对于未来生活方式的想象,更需具备一定的开放性,从此展开中西方交融的人文体验。
—
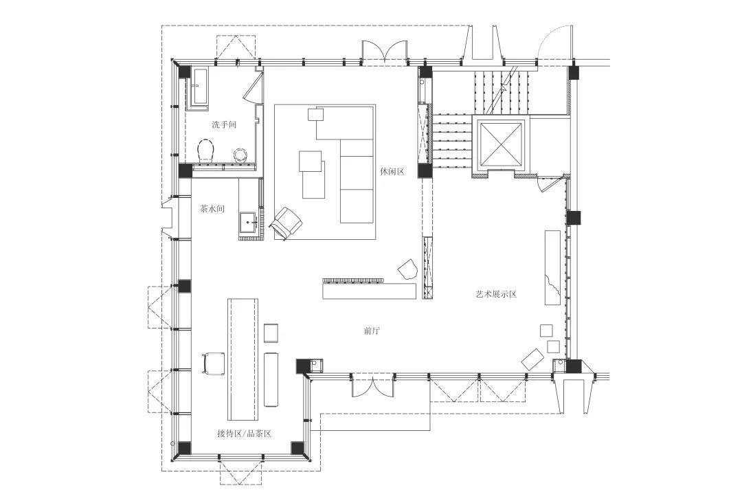
在此初见,以礼相待
首层,开门见山凸显整个项目的定位特征,明显感受私人会所气息。此处的功能以品茶、洽谈、艺术展陈为主。
洽谈区的莹白瓷挂件脱离平庸,沿用了婺州窑的雕刻技艺,饰之以极具民族特色的浮雕、刻花工艺;造型上,力求巧雅秀丽,给人以清新、神化之美感。
茶室体现了江南人的含蓄,寻茶香而入室,柜体线条简单明了;藏于柜上艺术家陶瓷器皿,其灵感来自英国海岸线,像是流动的潮汐。
艺术展陈区,中国当代艺术家的陶艺作品,保留了自然精神世界里的一丝慰藉,无形之中,空间美学别具一格的气质在此悠然浮现。以礼相邀,约三五好友,聚于雅室,思大业品茶香,情寄于家室一盏茗。
—
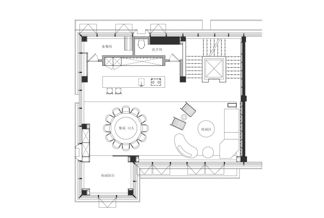
食宴笙歌,宴席之乐
食之有味人生百态,空间的转换,需有触发人的感官变换的渐进过程。
二层以“宴”开启宴席之乐,空间通过动线设计拉住了至外而入的疾尘步伐,简约的设计让空间更具质感。整个布置形式也更加开放、更具包容性。
休息区围合式组合,让宾客更自由、更舒适,西式壁炉的出现增添了一丝聚会氛围。沙发上方的瓷板画由景德镇陶艺家创作,抽象自然龟裂的纹理似山水似潮汐。
就餐区满足餐宴的功能,想象宾客们的欢声笑语,此时此景美妙绝伦。观景阳台的松更增添一丝古韵,凸显出文化特征。空间里每一件配饰、每一件家具都以特定的符号在空间中相互成就交融协奏,每一处设计的呈现都蕴藏着出色的审美品位,让空间拥有特定的价值体验。
—
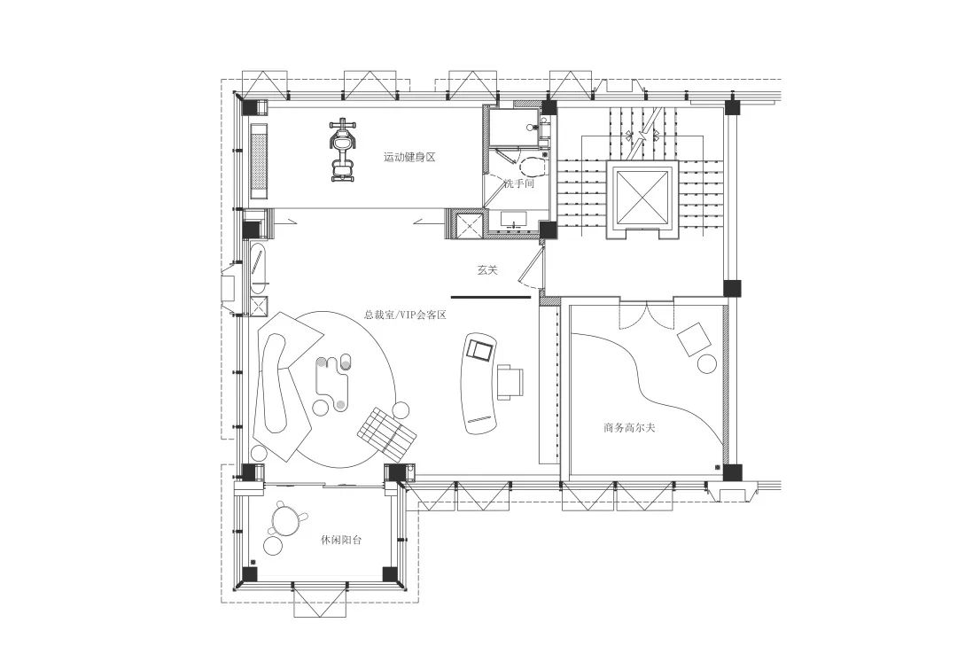
思绪之外 演绎空间艺术
三层空间的呈现更加开放、自由,达到一种玩赏的状态。低矮、低靠背的沙发家具,并增加落地灯设置点光源,将人的视觉重心下移,更多的强调人置身其中的舒适感。
高尔夫、休闲阳台与健身区秩序井然,增加更多生活仪式感,时时呼应整体的联动。
—
享受此刻杯酒人生
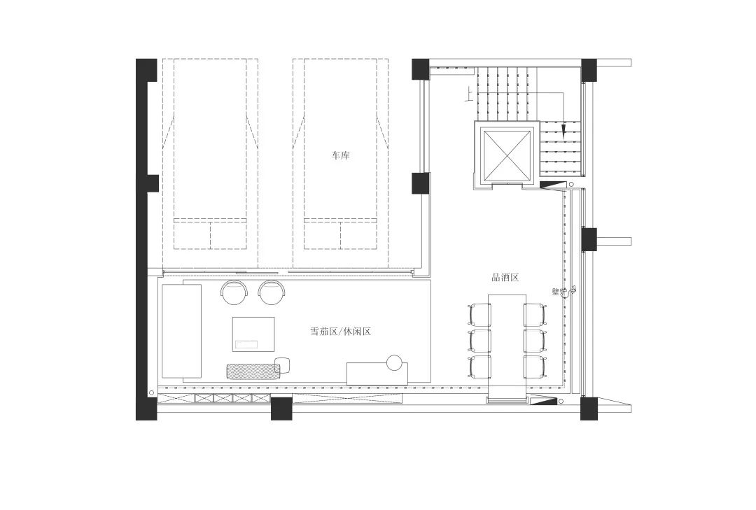
业主的品味体现于收藏,在负一层内置入多样形态的品藏区,收藏家们在负一层会晤,享受着此时此刻的杯酒人生。
较之前三层形成的商务休闲,负一层更具某种情感上的递进,软装通过酒柜的排布陈列、德州扑克与品酒场景,摩登时尚让此空间氛围更放松更享受。
车库摆放着业主收藏的甲壳虫复古车,墙面机械零件工具的摆放。整个空间优雅的古典元素与富有灵气的现代气质,均予以实现。
—
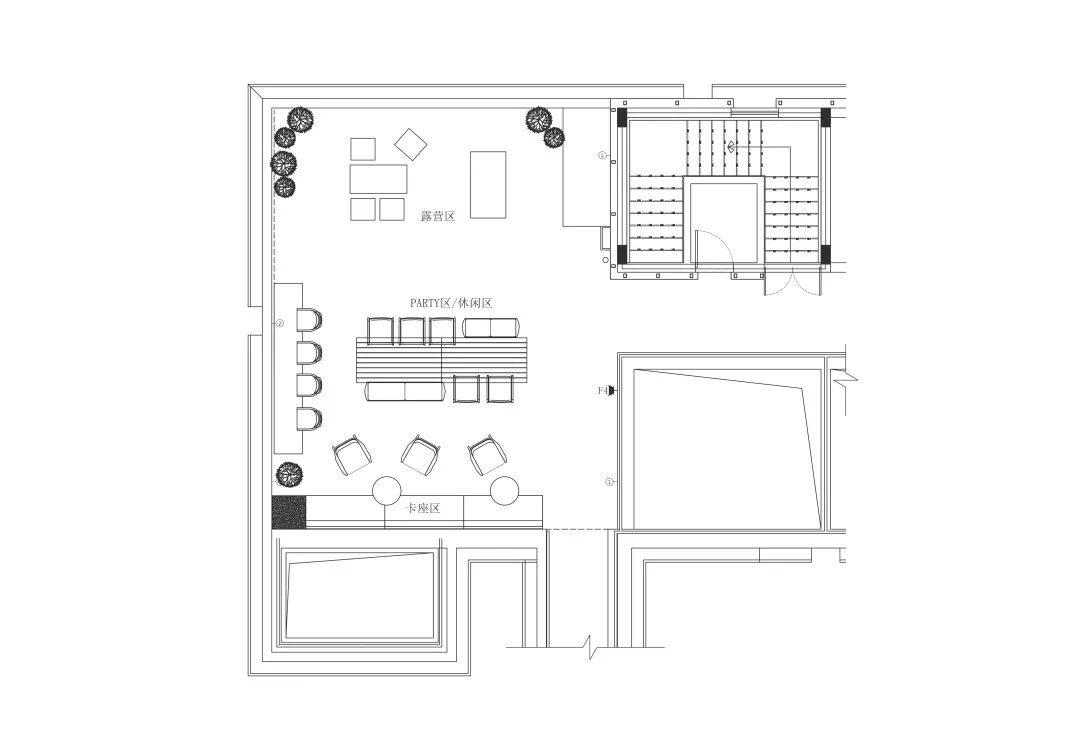
露台城市营地
顶层是以“乐”为阵营的城市营地。星空露营、户外聚餐、吧台、卡座等等功能都出现在露台,享受更多体验方式更多乐趣。在这里可以把平时失去的自然美好都找回来,浪漫夏夜里,告别城市的喧闹与浮躁,亲近星空的静谧与美好。
在整个设计过程中,如果说硬装形成了空间,那么软装则为空间加入了更多维度,建立了情感的链接,这个项目隐匿着一种理想化的艺术生活初心,依据内在的秩序和节奏,并以合理的设计手段进行了高度完整的实现,基于此,静谧、流动与细腻,交替出现。
▲【左滑查看】平面布置图
项目信息
项目名称:衢州·四方会所
项目地址:浙江衢州
业主名称:阳光城集团
业主团队:林晓东、顾丹、许文婕
硬装设计:飞檐设计
软装设计:兰舍设计
项目面积:484㎡
项目摄影:十观
客服
消息
收藏
下载
最近



















































