查看完整案例


收藏

下载
总体规划, 独立住宅, Ecquevilly, 法国
建筑师:Benjamin Fleury Architecte-Urbaniste
面积:2606 m²
项目年份:2019
摄影师: David Boureau
主创建筑师:Benjamin Fleury
设计团队:Sophie Lee / Guido Capecci / Capucine Cortade
客户:MDH Promotion
顾问:Synapse
认证:NF Habitat RT2012-10%
City:Ecquevilly
Country:法国
埃克维利(Ecquevilly)镇坐落在丘陵的顶部,面向广阔的田野。雷诺在塞纳河畔弗兰市(Flins)建厂后,这个小镇(根据16世纪城堡的布局进行了扩建)经历了三次扩张:首先是新的大型居民区,然后是一片活动区域,最后是大型房地产开发项目。
后者具有典型的现代形态。长度超过一公里的线性建筑超出了该镇建筑的平均尺度。本项目占据了这个建筑单元的其中一部分:对其拆除是城市规划事务所JAM architecture-territoires主导的地区重建项目的一部分。
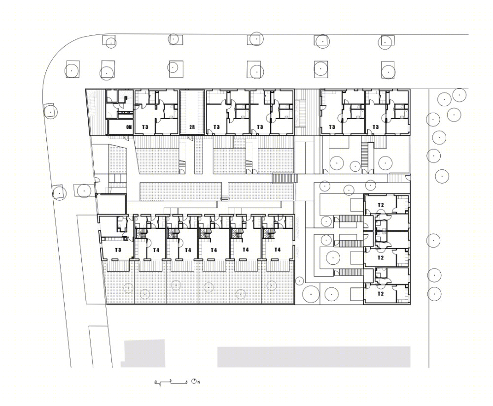
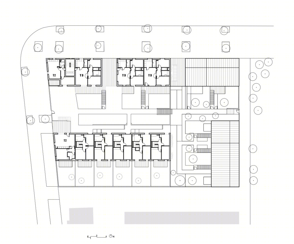
这个项目的两个地块彼此独立,位于历史城区与大型现代建筑区的交界处。周边环境要求项目以平和的过渡方式融入其中,从而产生了一种既具有现代感又受传统建筑启发的混合设计,建筑师在两个地块分别设计了26间公寓住宅和5栋独立住宅。
26间公寓住宅:第一个地块较大的坡度使设计产生了了两个高度的平台:较低的底层和较高的底层,彼此相差一层楼的高度。较高的底层下方作为住宅的地下停车场。房屋围绕中心庭院排布,可以欣赏到周边广阔的景观。
建筑体量由不对称的长屋形态演变而来,进深均为8米。这样的设计可以使每个房间有两个以上的开窗面,以确保建筑可以适应气候,具有生态意义。屋顶的起伏设计使这些体量更加生动。
5栋独立住宅:在第二个地块中,5栋独立住宅形状和排布各异,与共和大街的天际线和谐地融为一体。通过改变坡屋顶的方向,使体量产生变化,专用车道将建筑体量分开。
历史建筑的三个部分(基础,屋身和屋顶)以现代风格被重新转译。基础由灰褐色的混凝土制成,墙面涂有灰色抹灰。公寓住宅的双坡屋顶为原锌材质,而预钝化锌则用于独立住宅的屋顶。护栏和围墙的木材质为建筑增添了温暖感。该项目获得了NF Habitat RT2012-10%认证,证明了其优异的性能。
项目完工照片 | Finished Photos
设计师:Benjamin Fleury Architecte-Urbaniste
分类:总体规划
语言:简体中文
阅读原文
客服
消息
收藏
下载
最近






























