查看完整案例

收藏

下载

翻译
Architects:Koki Sugawara Architects
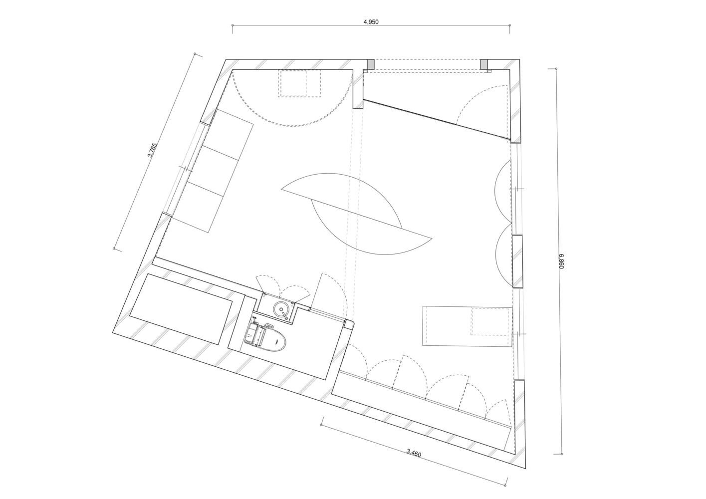
Area:34 m²
Year:2021
Photographs:Hirota Tastuya
Lead Architects:Koki Sugawara
Program / Use / Building Function: Store
Country: Japan
The project began with a plan to create a flagship store for the original eyewear brand "Kearny" in the backstreet connecting Harajuku to Shibuya in Tokyo. The concept of this project is inspired by residential neighborhoods. The site is located within a part of a residential neighborhood that suddenly appears in an area crowded with commercial facilities. Amidst the competition for consumption, we wanted to cherish the streets of this oasis-like residential area.
One common scene in Tokyo's residential neighborhoods is the construction of walls using materials like concrete blocks on the boundaries of properties. This not only physically excludes others but also visualizes the boundary of one's own property. An entrance gate is then created within these walls, and there is a small gap of a few steps leading to the entrance. If the blocks and gate create a frame for the street, then the gap serves as decorative framing. The residents decorate this frame, encompassing not only literal decorations but also traces of daily life. It is within these frames that the authenticity of life emerges.
In this project, we decided to incorporate elements of residential neighborhoods into the store to evoke a sense of a residential area. Given the lack of space between the road and the building, with the building situated right at the road boundary, we designated the building's exterior wall as the boundary with the street and set the entrance setback inside the building, creating a space between the road and the entrance. Since the building serves as a visual boundary, we installed an arched gate, intentionally incorporating the traditional Japanese concept of "matagi," where one must step over a boundary. This creates a sense of action and heightens awareness of passing through the gate and crossing the boundary.
While crossing boundaries in commercial facilities or public spaces happens effortlessly, in this project, we aim to create a slight psychological shift when crossing the boundary, similar to visiting a friend's house.
The finishing material used is plastering. The distinctive gate features the technique of "Kakiotoshi" (scribble finish). This choice reflects a longing for the earth in urban areas and serves as a strategy for the existence of soil. The interior design is determined by the brand's emphasis on materials and the image born out of conversations. Please note that the translation may have slight variations based on context and interpretation.
客服
消息
收藏
下载
最近













