查看完整案例


收藏

下载
我们相信,自由与建造性的玩耍,浸润与互动的学习环境,以及充足的爱、照顾与关注,会为儿童成长建立起最稳定的基础。 ——绮朵
”We believe that a combination of free and structured play, an engaging and interactive learning environment, and an abundance of love, care and attention provide the most solid foundation for children in the early years. “ ——The Kido philosophy
全球知名幼教品牌KIDO绮朵幼儿园,创立于2013年,总部位于英国伦敦,目前在全球5个国家和地区(英国、美国、迪拜、印度和中国)已开设30所幼儿园,正在服务全世界2000多个家庭。2021年,KIDO正式落地中国宁波,园所坐落于宁波东部新城核心区域,建筑面积约6500平方米。
Kido, a world-renowned preschool education brand, was founded in 2013 and is headquartered in London, UK. Currently, it has opened 30 kindergartens in 5 countries and regions around the world (the UK, US, Dubai, India, and China), serving more than 2,000 families worldwide. In 2021, Kido officially landed in Ningbo, China. It is also the first location in Mainland China. With a gross built area of about 6,500 square meters, the campus is located in the core area of Ningbo East New Town.
▼项目概览
overview © REAL Architects
REAL作为中国大陆首家KIDO旗舰园的设计师,希望绮朵校园不仅仅是一所幼儿园,它更将建立起一个社区。我们与绮朵团队一起,重新定义幼儿教育空间。这里的空间设计围绕着艺术,想象力,文学,玩耍,这些与KIDO教学相关的理念展开。孩子们在这里学习成长,玩耍交友,开放的园所设计,为他们提供了无限可能。
We hope that Kido is not only a kindergarten but also a community. Together with the Kido team, we redefine the early education space. The space designed here revolves around art, imagination, literature, and play – concepts that are related to Kido’s innovative pedagogy. Children learn and grow here, playing and making friends, the open campus provides them with many possibilities.
▼接待区
reception area ©NBP视觉空间
共享的校园
Campus for All
绮朵采用KIDO特有的“PPP“教学法,即“Project based learning项目式学习”、“Problem based learning 问题式学习”、“Play based learning玩乐式学习”。这样的教学方式,更需要能够自然融合学习与玩耍的成长空间,配合绮朵沉浸式的教学课程,完全唤醒孩子们对学习与生活的热爱。
Kido adopts a unique “PPP” teaching method, which is “Project-based learning”, “Problem-based learning” and “Play-based learning”. Kido’s innovative curriculum requires spaces that can naturally integrate learning and playing, cooperating with Kido’s immersive learning adventure, to fully awaken children’s passion for learning and life.
▼共享大厅
common area ©NBP视觉空间
首先,我们创造了一个融合多场景使用的校园共享大厅。大厅以圆形布局展开,整体空间充满了张力。这样的布局也让场地产生与生俱来的向心力,很好地增进各个区域之间的互动。这里兼容了一个温馨的接待展示区,一个能承载各种活动的开放式大厅,以及一条充满想象力的艺术展廊。这些区域之间不设置硬性分割,空间灵活通透,便于场地联动。
First of all, we created a Campus Common that integrates multi-scenario uses. The Common is in a circular layout and compatible with a welcoming reception area, an open hall that can host various events, and an imaginative art corridor. There is no rigid division between these areas. The space is flexible and fluid, allowing convenient linkage between different zones.
▼大厅以圆形布局展开
the circular layout ©NBP视觉空间
一部大台阶通往夹层空间,这里,我们布置了玩耍角和阅读区。隐藏在夹层角落里的旋转滑梯,是孩子们的小秘密,迎合了他们发现、探索、冒险的天性。旋转滑梯从孩子的视角联系了不同层次的空间,大大地增加了场地的趣味性。孩子们在大台阶与滑梯之间来来回回,这也无形之中加大了他们的运动量。
A central staircase leads to the mezzanine space, where we have arranged play corners and reading areas. The spiral slide in the corner of the mezzanine is a little secret for children, catering to their nature of discovery, exploration, and adventure. Children climb up and down the big steps and slide, substantially increasing their amount of daily exercise.
▼大台阶通往夹层空间
the central staircase leading to the mezzanine space©NBP视觉空间
▼夹层空间
the mezzanine space©NBP视觉空间
大厅里的弧形墙体所定义出来的长廊空间,适合用作艺术品、以及小朋友们日常作品的展示。展廊墙面上特别定制的洞洞板,也将满足小朋友们不断探索的好奇心。为了保持大厅空间整体的通透性,弧形墙体上开了宽窄不一的洞口,这也为孩子们创造出更多玩耍的可能性——捉迷藏,绕弯跑,这面弧墙始终被孩子们的欢笑声所围绕。
The Art Corridor defined by the curved wall is suitable for artwork display, as well as children’s daily works. On the other side, the customized curvy STEM wall is sufficient for children’s continuous exploration.
▼长廊空间
the Art Corridor ©NBP视觉空间
实际上,为了更好地利用空间,我们在这面弧形墙体中巧妙地融入了储藏功能,将其设计成了上下两层的柜体,方便幼儿园大量教具和物品的储藏。
To make better use of the space, a storage function is integrated into this curved wall. The two-story cabinet is great for the storage of a large number of teaching aids and items in the kindergarten.
▼储藏区
storage area ©NBP视觉空间
▼休息区
rest area ©XIRU
▼走廊空间
view of corridor ©XIRU
▼儿童软座
children seat ©XIRU
位于大厅一角的教职工区域集合了办公、休闲、接待功能。这个区域面向多功能大厅展开,使得工作人员与孩子们的互动随时展开,提高空间安全性,也丰富了教职工的办公体验。
The staff zone located at one corner of the Common integrates office, leisure, and reception functions. This area is open to the multi-functional Common, which enables the interaction between the staff and the children at any time, improving the safety of the space.
▼教职工区域
the staff zone ©NBP视觉空间
探索的空间
Places to Explore
孩子们将在开敞明亮的教室中度过许多学习玩耍的时光,这里,我们综合考量了儿童的生活行为习惯,创造出舒适且激发孩子探索天性的教学环境。基于老师们对教室空间的使用习惯,我们对教室内的物品存放区、教师办公区、午休区等进行合理布局,以实现整体环境使用的安全与便捷。
Children will spend a lot of time learning and playing in their bright and open classrooms. Here, we have comprehensively considered children’s behaviors to create a comfortable environment, at the same time stimulating them to explore. Also, we have rationally arranged the storage area, teacher’s office area, lunch break zone, etc. in the classroom to make the overall environment safe and convenient for everyone.
▼教室
classroom ©XIRU
▼物品存放区
storage area in the classroom ©XIRU
每个教室都设置了探索平台,由一部楼梯和一部滑梯连接上下层空间。平台下方摆放着孩子们的小床,围合空间创造出静谧的感受,非常适合孩子们午休;上层则用于各种使用场景——阅读、玩耍、过家家——探索平台有效地扩大了教室内部的活动范围,使空间的层次更为丰富。这样的布置也非常受孩子们的欢迎,大大增加了他们的日常活动量。
Each classroom is equipped with an exploration platform, connected by a staircase and a slide to the upper and lower levels. The children’s cot is placed under the platform, and the enclosed space creates a quiet feeling, which is very suitable for nap taking; the upper layer is used for various activities – reading, gaming, playing house – the exploration platform effectively expands the area in the classroom and the space richer. This arrangement is also very popular with children, that subsequently increases their daily exercise.
▼从教室看卫生间
view of the toilet in the classroom ©NBP视觉空间
在绮朵,有专为孩子们打造的国学教室、科学教室、手工作坊、心灵坊等专科教室。专科教室的设计围绕着空间的特定功能展开,布局和陈设具有引导性,为特殊使用场景创造适宜的氛围。
There are many places for children to explore at Kido: music room, dancing room, craft workshop, gym, STEM room, science space, global culture room, etc. These places are specially designed for children. The layout and furnishings are instructive to create a suitable atmosphere for special functions.
▼科学教室
STEM room ©XIRU
▼手工作坊
crafts room ©XIRU
▼心灵坊
spiritual room ©XIRU
KIDO鼓励孩子们的团聚与共享,也尊重他们独处的意愿。因此在设计中,我们创造出多个合班使用空间,以满足班级间的交流、共同学习,与较大规模游戏表演使用。同时,分布在校园内的多个小空间设计,为孩子们提供了安静独处、阅读、独立思考与休憩的场所。
At Kido, we encourage children’s union and sharing. At Kido, we also respect their willingness to be alone. Therefore, we created multiple class commons to allow communication, common learning, and larger-scale game and performances. At the same time, many smaller spaces distributed on the campus provide places for children to be alone, reading, resting, and thinking independently.
▼国学教室
global culture room ©XIRU
关怀的体验
A Caring Experience
KIDO相信,无微不至的爱与关怀,是儿童早期稳定性格形成的重要因素。我们对孩子们的关爱,也在设计中体现得淋漓尽致。无论是安全规范,选材,还是家具设计,我们都努力为绮朵的孩子营造充满爱意的空间。
Kido believes that an abundance of love, care and attention provide the most solid foundation for children in the early years. Our love for children is also reflected in the design. Whether it is safety regulations, material selection, or furniture design, we strive to create a loving space for Kido’s children. Curved walls, chamfered corners, and anti-pinch doors, etc. are used in the space design. In Kido, every detail is carefully treated.
▼细部
details ©NBP视觉空间
我们还为KIDO品牌特别定制了专属家具,包括孩子们午睡的小床,国学坊的桌椅等等。从小床上名片卡槽的位置和材质选取,到储物抽屉的高度与防夹手设计,我们都细致入微,既考虑到孩子们使用的安全性与舒适度,也考虑到老师们的体验,为他们的教学和照料工作都提供了便捷。
We customized exclusive furniture for the Kido brand, including children’s cots, tables, and chairs for the Chinese Culture Room, etc. No matter the position and material selection of the name card slot on the cots, or the anti-pinch design of the drawers, we are meticulous, taking into account not only the safety and comfort of children but also facilitating the teacher’s work.
▼定制家具
customized furniture ©COT
▼共享大厅模型
model © REAL Architects
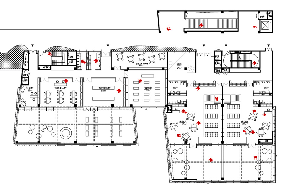
▼一层平面图
the first floor plan © REAL Architects
▼二层平面图
the second floor plan © REAL Architects
▼三层平面图
the third floor plan © REAL Architects
More:REAL建筑事务所
客服
消息
收藏
下载
最近


































