查看完整案例


收藏

下载
Escuelas, Ghent, Bélgica
设计师:XDGA - Xaveer De Geyter Architects
面积:4630 m²
年份:2020
摄影:Maxime Delvaux
提供协助:Sika, AutoDesk, Aluprof, CDM, Dott.Gallina, Flexidal, Fosfari lighting, Heinen, Herculan, Jakob, MERCOR, Multiwal, OWAplan, Philips, Schuco, St-Joris, Terradec, Wavin
Equipo De Concurso:Xaveer De Geyter, Doug Allard, Thérese Fritzell, Ingrid Huyghe, Willem Van Besien, Stéphanie Willocx
Diseño Definitivo:Xaveer De Geyter, Karel Bruyland, Thérese Fritzell, Arie Gruijters, Ingrid Huyghe, Willem Van Besien, Stéphanie Willocx
Implementación:Xaveer De Geyter, Ingrid Huyghe, Willem Van Besien
业主:SO Gent
Estructura:Ney & Partners
Mecánica:Studiebureau Boydens
Ciudad:Ghent
Pais:Bélgica
设计师描述 | Designer description:
Una estrecha franja de tierra a lo largo de un muelle se libera de las actividades portuarias. O.M.A. ha desarrollado un plan urbano muy simple de "palillos chinos". en el que los bolsillos verdes abiertos se alternan con una construcción densa. Para ofrecer una noción de centralidad al plano lineal, se pretende que un camino público atraviese toda la franja.
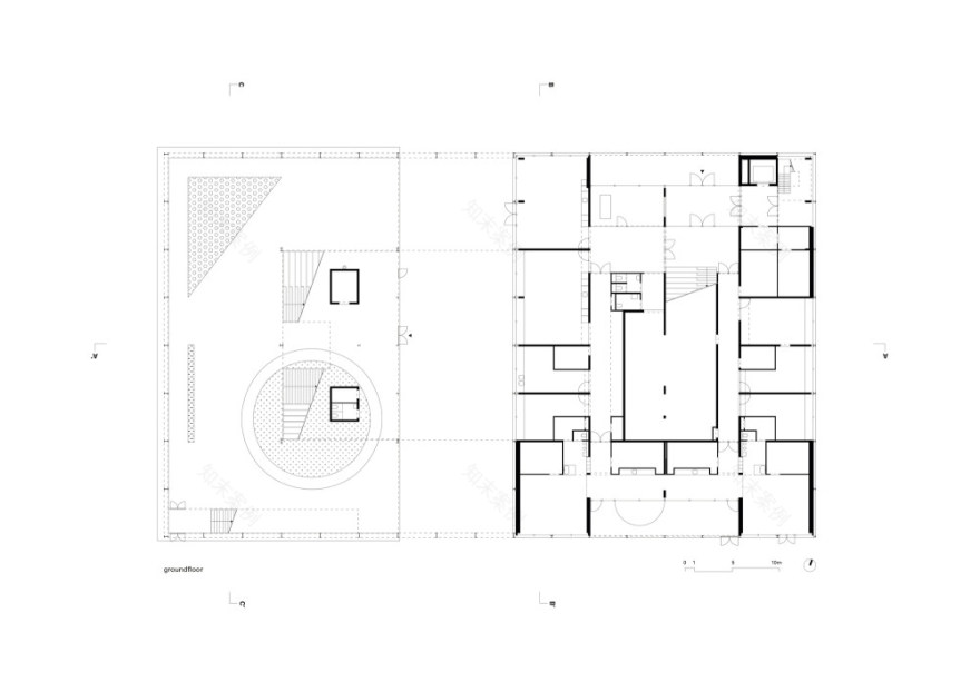
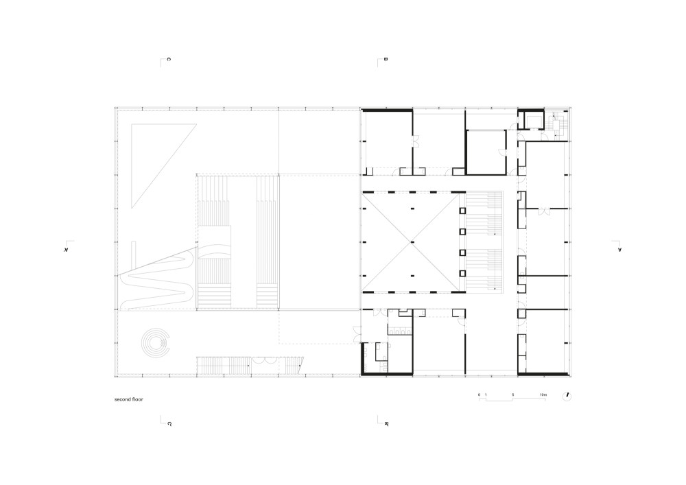
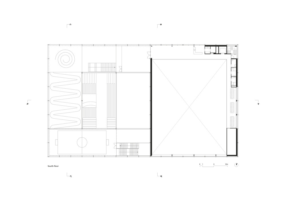
El sitio de la escuela se enfrenta a un área verde en el lado sur, el muelle en el lado oeste, una plaza y un bloque de viviendas en el norte y la carretera del puerto en el este. El programa solicitado para el edificio, una combinación de escuela primaria, centro de cuidado extraescolar, guardería e instalaciones deportivas tanto para la escuela como para su vecindario, es diverso y extenso.
Además, requiere una gran cantidad de áreas de juego al aire libre específicas. Con el fin de contrarrestar la falta de espacio, lidiar con la complejidad interior-exterior de los programas y permitir el paso de la vía pública, la envolvente máxima del edificio se divide en dos mitades:un edificio compacto que alberga todas las funciones interiores y un espacio exterior en el que los patios de recreo están apilados. Entre ambos, y bajo un patio de juegos de primer nivel realizado en baldosas de vidrio, el camino cruza el volumen.
Un esqueleto de acero galvanizado unifica las dos mitades. En el lateral del volumen interior, las fachadas del edificio están diseñadas como un mosaico de lamas de policarbonato, vidrio y aluminio opaco y translúcido. La estructura exterior estará cubierta de vegetación trepadora junto con una malla de acero, en la que se cortan unas grandes "ventanas".
项目完工照片 | Finished Photos
设计师:XDGA - Xaveer De Geyter Architects
分类:Escuelas
语言:西班牙语
阅读原文
客服
消息
收藏
下载
最近





























