查看完整案例


收藏

下载
静态明亮
Static Aesthetic Architects新作,80
㎡的明亮公寓,
为父母亲打造了一个和谐的室内环境,与
父
母
的个性相协调。
这个空间由Alexei Dobrov、Nikita Sitnikov共同设计
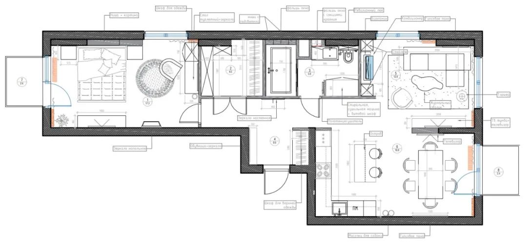
,通过结合走廊-厨房-客厅和让自然光进入公寓最黑暗角落来增加空间的视觉。
布局已经完全重做,按照要求保留了两间独立的卧室,放弃了黑暗的走廊,并将其连接到厨房-客厅的组合空间。一个半透明搁板成为内部“建构主义”外观的一个引人注目的元素。
沿着客厅的整面墙,有一个宽敞的内置衣柜,配有天然木饰边。装修后,公寓变得更加明亮,似乎扩大了一倍。
两间卧室的内部风格各不相同,其中一个房间里,除了床之外,还提供一个工作场所,将床头和柜子桌组成了一个单一的构图。
这个空间不仅明亮现代,而且非常适合生活。大量的存储系统可以隐藏所有多余的东西,变得异常轻盈!
设计师
Alexei Dobrov和Nikita Sitnikov
Studio Lihthouse Interiors
69
㎡,
业主是一对年轻夫妇,希望是创造一个带有法式风格的轻便、舒适的室内空间。选择了两种原色——乳白色和丰富的暖木色。客厅中引以为豪的壁炉也体现了巴黎公寓的氛围。
空间布局
▽
客服
消息
收藏
下载
最近





































