查看完整案例


收藏

下载
01
云行空间设计
本案位于仙林南外附近,男女主人都是大学老师。在这个过程里一切的尚不确定都有好的走向,搬家后天气也变得凉爽,抓住秋意一起享受具体的新生活。
拆掉了离客厅最近且朝南的房间,调整布局通过客餐厅一体化的直观,得到活动动线上的自由,主背景是木色的转折、连续,时隐时现成为整个空间面的涂底。
屋主的客厅不需要电视,有投影即可,所以我们通过收纳的不同形式在墙面上做出起伏。
在变大的阳台做收纳,存放家用的一些功能性用具,比如洗衣机、烘干机等,拖地机器人也有专用的“工位”和出入口,这是阳台的功能之处。
项目名称:闲庭
项目地址:江苏 南京
主创团队:云行空间建筑设计
施工团队:云端建设
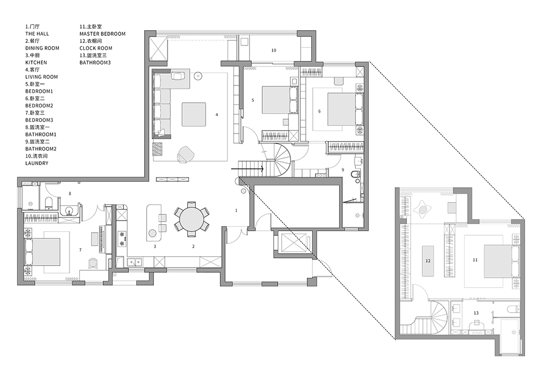
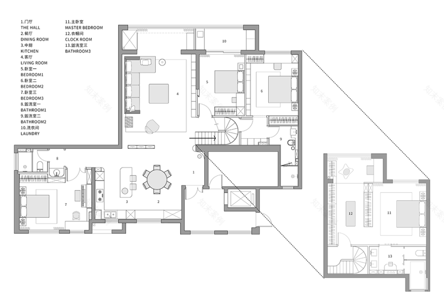
建筑面积:140㎡
项目类型:设计+施工+主材产品代购
空间摄影:吴昌乐
主要材料:桦木海洋板、镜面、乳胶漆
02
榀象设计
项目名称:与生活,予设计
设计公司:温州 榀象设计
项目地址:温州·瑞安
项目面积:200㎡
主案设计:池旻烨
参与设计:叶姿妮
项目摄影:吴昌乐
主要材料:木饰面、金属、硬包、石材、墙布
客服
消息
收藏
下载
最近
















































