知末
知末
创作上传
VIP
收藏下载
登录 | 注册有礼

黑奢极简三口之家精致公寓丨Studio Artimitro Interiors

2022/11/22 10:01:08
查看完整案例
微信扫一扫
收藏
下载
黑奢极简三口之家精致公寓丨Studio Artimitro Interiors-0
 黑色空间 
Studio Artimitro Interiors新作,一个三口之家的公寓,
复杂的建筑细节和节点,以及为极简主义风格增添精致奢华氛围的装饰元素
黑奢极简三口之家精致公寓丨Studio Artimitro Interiors-5
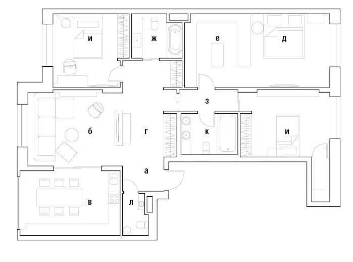
空间布局
黑奢极简三口之家精致公寓丨Studio Artimitro Interiors-8
面积
138
㎡,入口处设有带衣柜和客用浴室的宽敞大厅,从门槛处也可以看到客厅和厨房-餐厅的公共区域。每个家庭成员的私人空间——带更衣室的主卧室、儿童房和带秘密储藏室的办公室,可以改造成第二个托儿所——设计在公寓的后面,以最大限度地保护隐私。
黑奢极简三口之家精致公寓丨Studio Artimitro Interiors-12
黑奢极简三口之家精致公寓丨Studio Artimitro Interiors-13
黑奢极简三口之家精致公寓丨Studio Artimitro Interiors-14
黑奢极简三口之家精致公寓丨Studio Artimitro Interiors-15
黑奢极简三口之家精致公寓丨Studio Artimitro Interiors-16
黑奢极简三口之家精致公寓丨Studio Artimitro Interiors-17
黑奢极简三口之家精致公寓丨Studio Artimitro Interiors-18
黑奢极简三口之家精致公寓丨Studio Artimitro Interiors-19
黑奢极简三口之家精致公寓丨Studio Artimitro Interiors-20
黑奢极简三口之家精致公寓丨Studio Artimitro Interiors-21
黑奢极简三口之家精致公寓丨Studio Artimitro Interiors-22
黑奢极简三口之家精致公寓丨Studio Artimitro Interiors-23
黑奢极简三口之家精致公寓丨Studio Artimitro Interiors-24
黑奢极简三口之家精致公寓丨Studio Artimitro Interiors-25
黑奢极简三口之家精致公寓丨Studio Artimitro Interiors-26
黑奢极简三口之家精致公寓丨Studio Artimitro Interiors-27
黑奢极简三口之家精致公寓丨Studio Artimitro Interiors-28
黑奢极简三口之家精致公寓丨Studio Artimitro Interiors-29
黑奢极简三口之家精致公寓丨Studio Artimitro Interiors-30
黑奢极简三口之家精致公寓丨Studio Artimitro Interiors-31
黑奢极简三口之家精致公寓丨Studio Artimitro Interiors-32
黑奢极简三口之家精致公寓丨Studio Artimitro Interiors-33
黑奢极简三口之家精致公寓丨Studio Artimitro Interiors-34
黑奢极简三口之家精致公寓丨Studio Artimitro Interiors-35
黑奢极简三口之家精致公寓丨Studio Artimitro Interiors-36
南京喵熊网络科技有限公司 苏ICP备18050492号-4知末 © 2018—2020 . All photos and trademark graphics are copyrighted by their owners.增值电信业务经营许可证(ICP)苏B2-20201444苏公网安备 32011302321234号
客服
消息
收藏
下载
最近