查看完整案例


收藏

下载
造梦之旅
_
Dream-making Journey
梦
———
DREAM
“建筑意味着把一个场地转变成具有特定性格与意义的场所,设计就是造就场所。换句话说,场所是有清晰特性的空间,人必须要能体验到环境是充满意义的。” — 诺伯尔·舒尔茨
关于共向空间,我们是一个年轻的团队,面对的客户也是年轻群体,所以在我们自己办公空间的设计上,我们会用到一些跳色,融入克莱因蓝色调。
As for the common space, we are a young team, and our customers are all young groups, so we will use some jump colors in the design of our own office space and integrate Klein Blue tone.
入户的板桌,是我们经过精心布置的。我们专程去福州、厦门等地挑选那块桌子,选定这张桌子,是源于它本身的纹理会更自然,不规则的形状版面也是刚好符合整个空间的调性。面对不同的客户,做专属于客户的独特设计,也一直是我们的追求。The board table for entering the house is carefully arranged by us. We made a special trip to Fuzhou, Xiamen and other places to select the table. The reason for choosing this table is that its own texture will be more natural. The irregular shape and layout also just accord with the tonality of the whole space. In the face of different customers, it has always been our pursuit to make a unique design for customers.
整体的经典黑白灰与地面木纹色衔接,贯穿了整个空间,包括办公区的隔断背景。承载着城市文化、生活居住和邻里关系等要素,汇聚着无限的想象价值,指引着人们进入梦想之中。
The whole classic black-and-white gray is connected with the ground wood grain color, which runs through the whole space, including the partition background of the office area. It carries the elements of urban culture, living and neighborhood relations, gathers unlimited imagination value, and guides people into their dreams.
寂———SILENCE“我们踏入紧闭的门,如同虎穴世界在门外脉动。”
We step into the closed door like the world of tiger’s den pulsing outside the door.
蓝色的水管从一楼延伸至二楼,水的线条、海岸的绵延、克莱因蓝的明净从蔚蓝记忆中升起,直达一个崭新的、意外的、并置性的场域。
The blue water pipe extends from the first floor to the second floor. The lines of water, the continuity of the coast, and the clarity of Klein Blue rise from the blue memory to a new, unexpected, and juxtaposed field.
悦———GAIETY“风景渐渐与现实的风景交融,想起辗转经过的一座座他乡城镇”
The scenery gradually blends with the real scenery, remembering the towns in other countries
通过艺术而非物质来寻求身份识别,抛开价值观念的抑制和谨慎态度的阻碍,来突出人的个性和多样化需求,更加自由地面对自己的真实状态。
Seek identity through art rather than material, put aside the inhibition of values and the obstacles of prudence, highlight people’s personality and diversified needs, and face their real state more freely.
在梦想的最深处融入了最初的热量,于是空间和它的梦想者一起,安置着,生长着,迁徙着。
The initial heat is integrated into the deepest part of the dream, so space and its dreamers are settling, growing and migrating together.
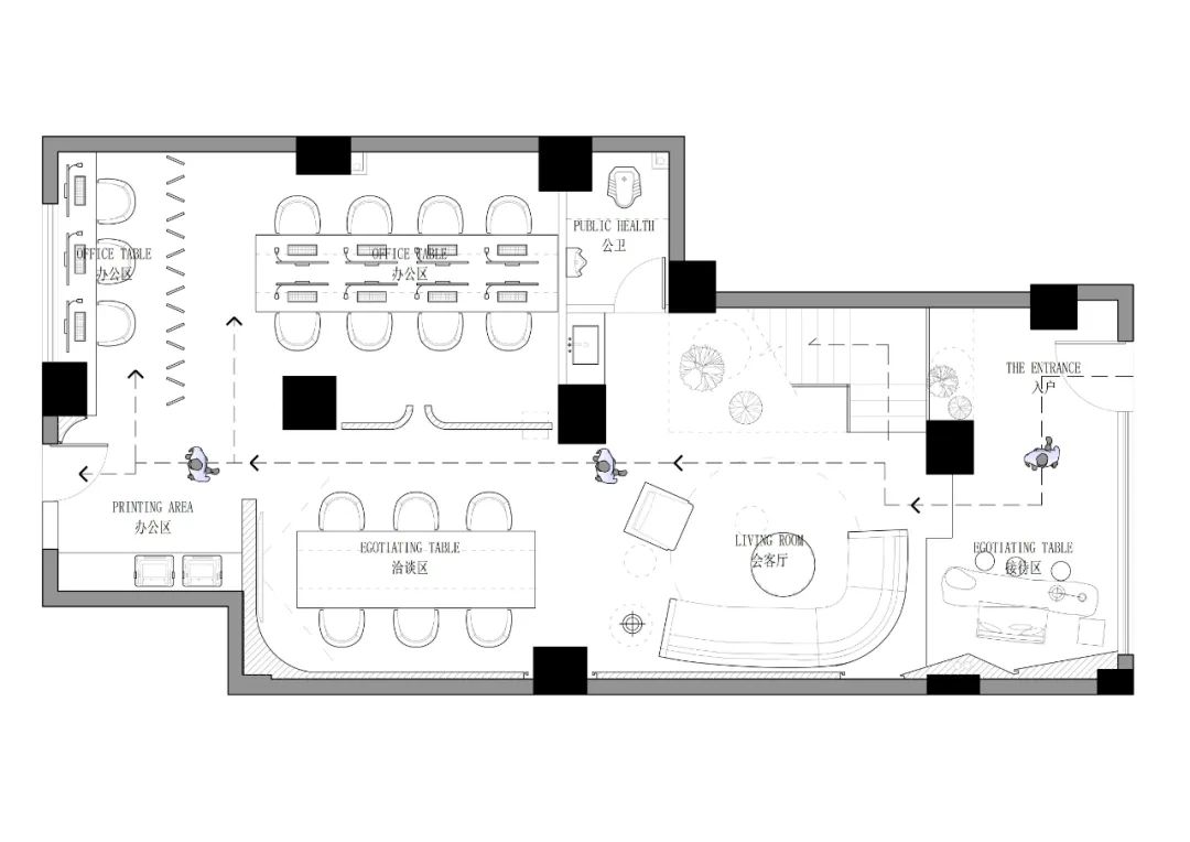
一层平面图布置
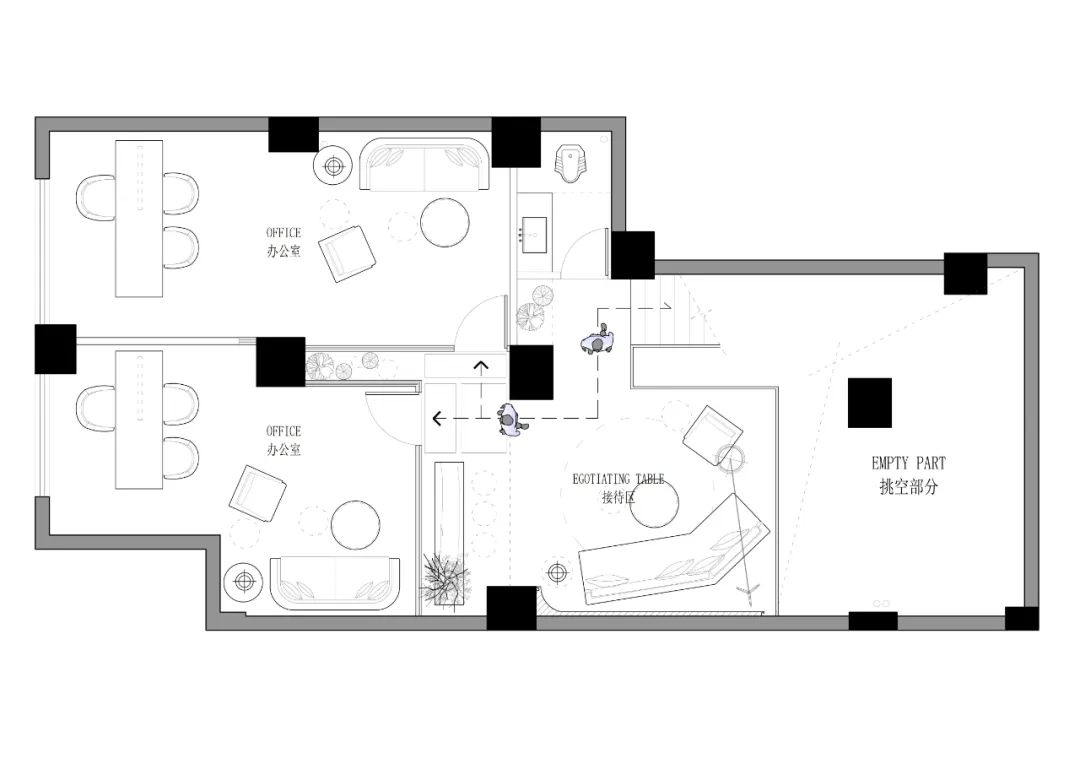
二层平面布置图
项目信息
项目地址 | Address:三明 · 共向空间设计
项目面积 | Area:200m²
设计时间 | Time:2021 年
设计主创 | Designer:游声东
空间摄影 |Photography:1988 摄影工坊
主要材料 | Main materials:微水泥、木饰面
MoreAbout Information
-共向空间設計-
地址|三明市梅列区贵和佳园 19 号
客服
消息
收藏
下载
最近










































