查看完整案例


收藏

下载

翻译
Owner’s family lives in the upper story of the cafe. There is a story that used to be important “well” for the people who lives in the area. Owner’s Grandfather had opened restaurant, which named “IDUMI”, which means “well” in Japanese. After he had passed away, his grandchild opened coffee café, take over the store name “IDUMI” with grand respect.
The concept of this café is to help enrich the neighborhood’s life, with the aim to enrich people´s day taking one cup of coffee. Following that concept, there is no store sign at the façade, you can perceive the café with the simplicity of the logo.
For the wide space in the café the diagonal Angled woods are placed in the pitch. This wood structure is exposed since the wood structure is beautiful and wood texture creates warm interior space. The other Interior material is tried to be selected as much as was possible by Japanese craft man; the white terrazzo on counter, brass handmade lamp and pottery coffee cup, etc. This is the spirit of taking over the traditional Japanese crafts to the future.
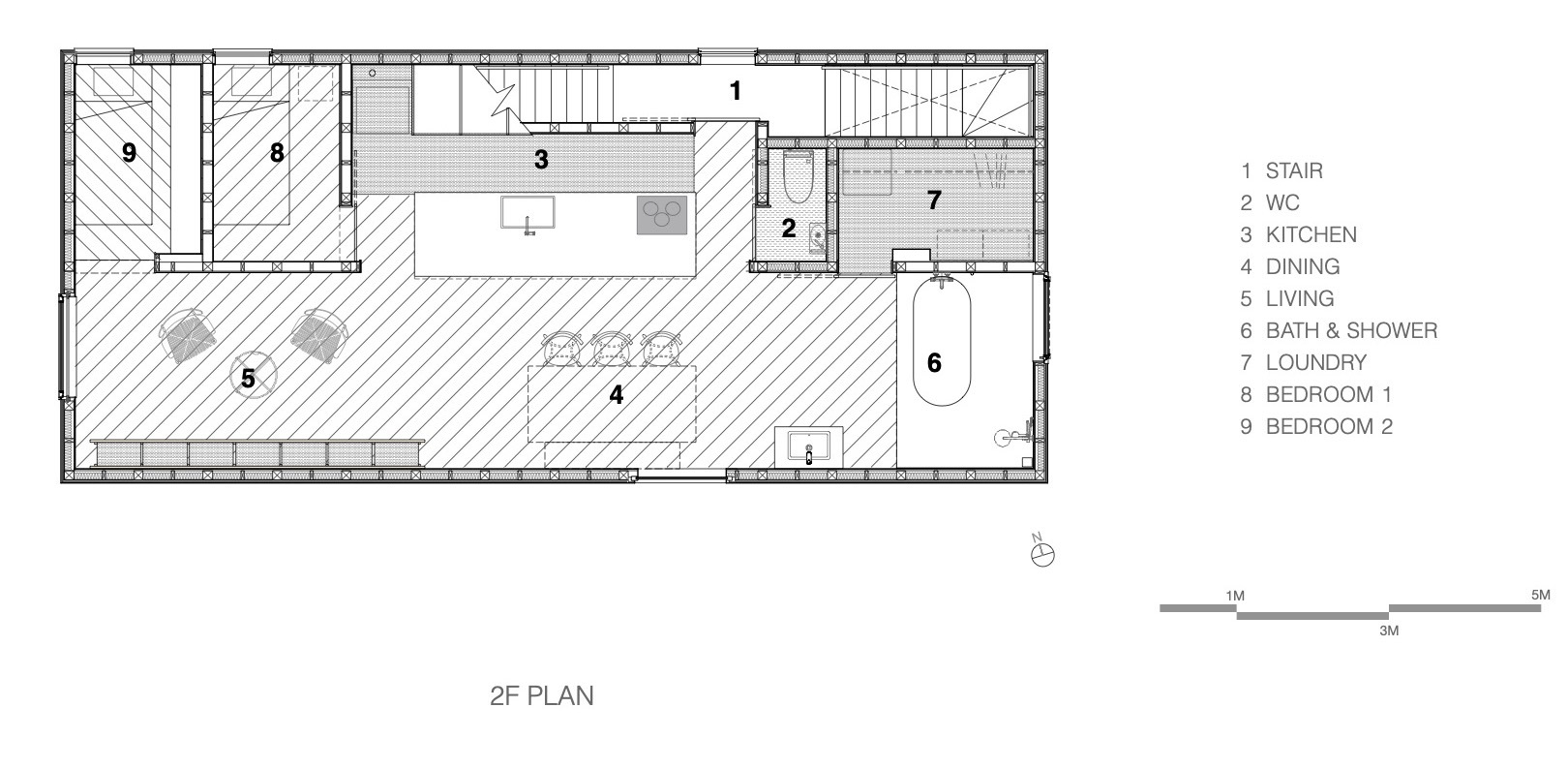
Second and Third floor formed the house for the owner’s family. 3 generations are co-living in the house, and each of them has a small bed-space which is the only private room. The house has 3 flexible free living spaces for sharing. They can share them by time, and can select the room by their selves. In addition, these spaces have the possibility to be modified in the future if the owners need it or want it. This is a dwelling space with variable margins.
客服
消息
收藏
下载
最近















