查看完整案例


收藏

下载
概念设计:生蕾蕾
conceptual design / Sheng Lei Lei
主案设计:施兵杰
Principal Designer / Shi BinJie
设计团队:严迪露
DesignTeam/Yan DiLu
项目地址:保集庄园.金华
Location / Bao Ji ZhungYuan.Jin Hua
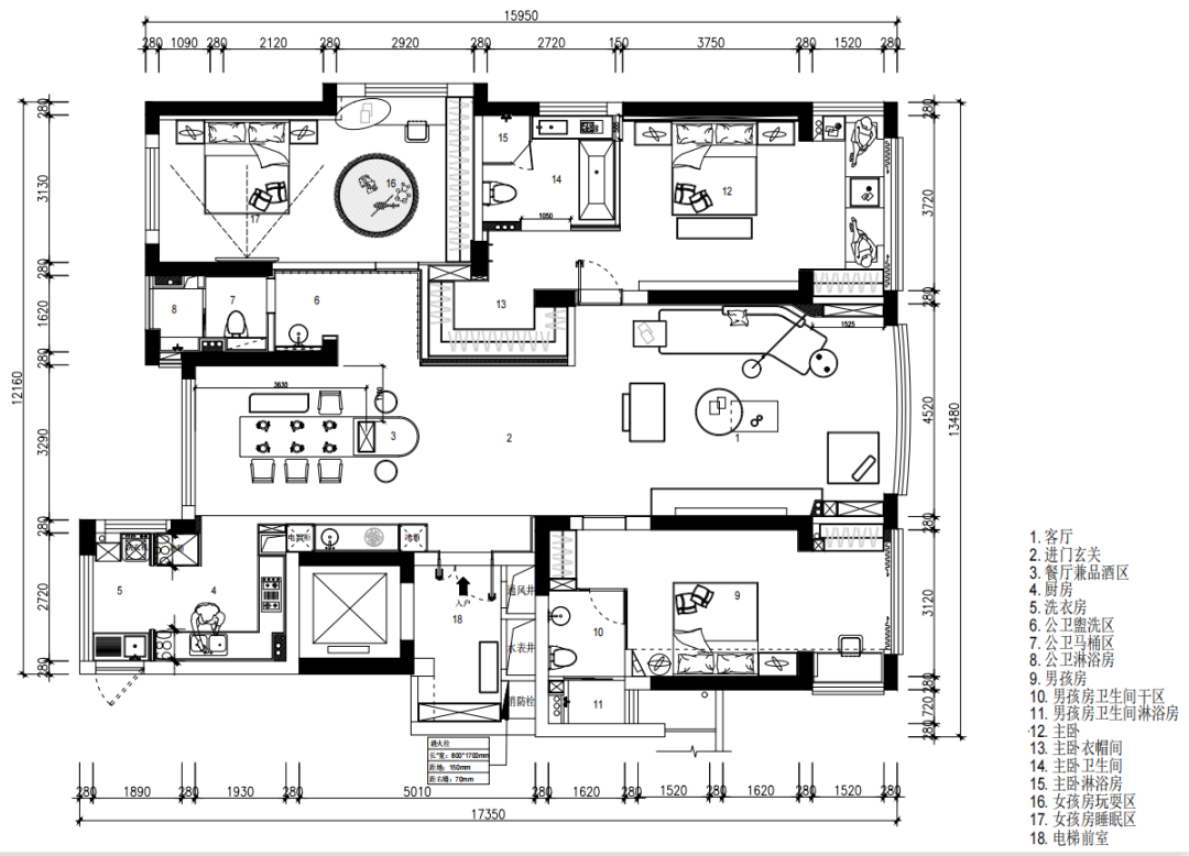
项目面积:188㎡
Area / 188㎡
左右滑动查看更多
奥古斯丁曾经说过:“美是各部分的适当比例,再加一种悦目的颜色。”
Augustine once said: "Beauty is the proper proportion of the parts, with a pleasing color added."
本案设计创意主要采用一些充满设计感与丰富色彩的物件,打造一间简约、时尚、高品质的现代风格居所。
The design idea of this case mainly uses some objects full of design sense and rich color, to create a simple, fashionable, high-quality modern style residence.
客厅主色用了大量的白,干净而整洁,宽敞明亮,全屋无主灯设计,减少空间的压迫感,跳动的色彩,给空间增添了无限的生机。
Sitting room advocate color used a lot of white, clean and neat, capacious and bright, whole house does not have advocate lamp design, the oppressive feeling that reduces a space, jumble colour, added infinite vitality to dimensional tone.
局部的高明度的橙色和蓝色跃于主调米白色艺术漆之上,精致优雅感以一种自然克制的方式得以呈现。
Local high brightness orange and blue jump on the main tone of off-white art paint, delicate elegance is presented in a natural and restrained way.
餐厅亚克力酒柜的设计,让立面更加简洁又不失现代感,乐趣与充满想像的趣味性,墙上的渐变挂画,连接起了整个空间的色彩。
The design of the acrylic wine cabinet in the restaurant makes the facade more concise and modern. It is fun and full of imagination. The gradual change of paintings on the wall connects the color of the whole space.
简约自然的艺术在主卧空间得到充分表达,色彩搭配柔和且不过分跳跃,秉承现代主义的克制与精致,让空间美学永存其间。
The simple and natural art is fully expressed in the master bedroom space. The color collocation is soft and not too jumping, adhering to the restraint and delicacy of modernism, so that the space aesthetics will last forever.
“我叫路飞,是一个要成为海贼王的男人”,这句话回荡在每一个少年的内心,对未来充满着遐想,男孩房中的蓝色和橙色搭配,把一个男孩子的朝气、阳光、活力四射的年纪表现得淋漓尽致。
"My name is Lufei, is a man to become the king of pirates", this sentence echoed in every young heart, full of reverie to the future, the boy room blue and orange collocation, a boy's vitality, sunshine, vitality of age performance incisively and vividly.
通过蓝色的取景框,步入另外一个房间,入目是粉色的软饰,斑斓的书桌以及充满童趣的椅子又把整个空间推向了一个新的层次,多元的色彩仿佛整个空间都跳动了起来,粉的、白的、黄的、蓝的、灰的,视觉上色彩盛宴得到了强烈的冲击。
Through the blue frame, into another room, into the eye is pink soft act the role ofing, multicolored desk and chair and the whole space full of tong qu to a new level, multiple color as if the whole space all beat up, pink, white, yellow, blue, grey, color feast had strong impact on the vision.
概念设计:生蕾蕾 主案设计:施兵杰 设计团队:严迪露
Gather·山间设计
是一家在业内享有盛誉的创意型设计机构。设计团队由业内一批才华横溢的资深设计师和特立独行的新生代设计师组成,为客户提供专业及优质的一体化设计服务,设计范畴涵盖建筑设计、高
端住宅、商业设计、景观设计等方向。
客服
消息
收藏
下载
最近
























