查看完整案例


收藏

下载
图源:白菜适家实景拍摄
项目基本资料
项目地址:华发山庄
作品名称:香颂庄园
项目面积:145平
户型结构:平层四房两卫
设计施工:
白菜适家
合作模式:半包模式
主要材料:越然锦致家具、石膏线、芬琳诺娃彩色墙面漆、生态板、水曲柳饰面板。
竣工时间:2019/4
预约设计:
点击立即联系设计师
▲ 这个实景视频你一定要看
设计师感言
你们知道现在有种装修风叫shabby chic吗?
但,今天要讲的并不是‘shabby chic’,而是一个在装修路上,沉迷于浪漫法式、复古印花和水晶蕾丝之中无法自拔的少女,最后却因为跟法式家具看对了眼而风格跑偏成【法式风格】的故事(事故)。
▲ 原始结构图
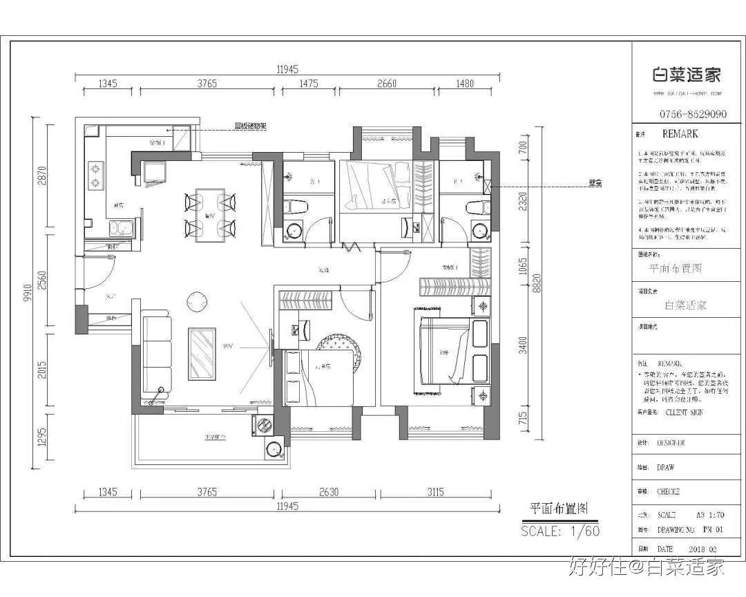
▲ 平面布置图
▲ 图源:白菜适家实景拍摄
▲ 图源:白菜适家实景拍摄
后
来我也发现,就算是做shabby chic风,我一下子也集不齐那些物件,shabby chic的家具,大多是欧洲的古董,要么是祖传下来的,要么是在跳蚤市场淘的,对中国人来说弄到手还是有点困难,那干脆不如打造一个不那么正宗的shabby chic与法式的结合,只借用shabby chic它的一些元素,或者用它的配色。
比如说门口这张大地色地毯。
▲ 图源:白菜适家实景拍摄
▲ 图源:白菜适家实景拍摄
进
门这个玄关柜真的是心头爱,油漆很厚,超有质感,表面的雕花图案彰显高雅,墙两侧水晶灯映射的光影,仿佛马上走进浪漫的法式宫殿~
▲ 图源:白菜适家实景拍摄
▲ 图源:白菜适家实景拍摄
在
玄关后面是一个衣帽间和长辈房,这个衣帽间是在房外的,所以为了搭配玄关和客厅的色调,柜子的颜色用的也是暖灰色,不是传统白色衣柜,抽屉外置的设计能瞬间让抽屉变得不再单调,再配上精致的法式水晶小吊灯~
▲ 图源:白菜适家实景拍摄
▲ 图源:白菜适家实景拍摄
▲ 图源:白菜适家实景拍摄
走
廊尽头当然不会挂千篇一律的装饰画,自然也是少不了白色雕花;
仔细的宝宝会发现,连房门上都是印花哟~
▲ 图源:白菜适家实景拍摄
▲ 图源:白菜适家实景拍摄
▲ 图源:白菜适家实景拍摄
老
式印花图案的织品绝不能少,窗帘也是搭配的印花的图案,但一点不显得房间拥挤和凌乱,再搭配大地色的木地板让人觉得非常舒适。
▲ 图源:白菜适家实景拍摄
▲ 图源:白菜适家实景拍摄
▲ 图源:白菜适家实景拍摄
▲ 图源:白菜适家实景拍摄
▲ 图源:白菜适家实景拍摄
▲ 图源:白菜适家实景拍摄
▲ 图源:白菜适家实景拍摄
▲ 图源:白菜适家实景拍摄
其
实家里的硬装不算很复杂,背景墙用的是不同纹路的石膏线加花盘,天花顶部也用了石膏灯盘,总之就是要经济实惠又美丽,石膏线这种装饰材料成本是相对低的,小圆花盘还是淘宝上淘的(偷笑),效果美美的~
再搭配上法式描金边的家具,地面特地拼了一圈花砖,与玄关地面相呼应,还可以直接代替地毯,毕竟在日常生活中地毯的实用性是很低的。
▲ 图源:白菜适家实景拍摄
▲ 图源:白菜适家实景拍摄
▲ 图源:白菜适家实景拍摄
▲ 图源:白菜适家实景拍摄
省
钱小tips:
客厅的窗帘看似两层,实际上只做了一层半遮光布拼接了一段纱帘,可以省很多纱帘的钱但是又达到了看似两层的效果哟~非常适合家里客厅基本不拉窗帘的我~hhh
窗帘的颜色也很喜欢,整个客厅很清新,还有种春意的感觉~法式能做到这样清新不厚重真的很难得~
▲ 图源:白菜适家实景拍摄
▲ 图源:白菜适家实景拍摄
▲ 图源:白菜适家实景拍摄
▲ 图源:白菜适家实景拍摄
餐
厅圆形水晶灯+圆形天花+圆形餐桌+餐边柜门的弧线线条+厨房门的弧线造型;
柜门的镜面搭配水晶灯一起使用,既拉伸了空间,又多了一份晶莹,简直超爱(感觉每个都很爱hh),每件物品搭配的背后都是无数精心筛选之后得到的结果。
从淡绿色窗帘透过去对面看到的青葱的山景,美不胜收~
▲ 图源:白菜适家实景拍摄
▲ 图源:白菜适家实景拍摄
厨
房是大气的白色橱柜及白色砖,地柜与吊柜之间搭配花砖,操作台面则采用褐色石英石,台面搞起卫生也轻松~
▲ 图源:白菜适家实景拍摄
▲ 图源:白菜适家实景拍摄
▲ 图源:白菜适家实景拍摄
▲ 图源:白菜适家实景拍摄
▲ 图源:白菜适家实景拍摄
家
里有位天真浪漫的小公主,自然少不了一个少女心满满的公主房,粉粉的公主房搭配白色衣柜;
衣柜的设计也不一般,整面墙的柜子并非全是衣柜,两侧衣柜中间是浅书柜,用于放孩子一些书籍,衣柜的彩色拉手也花了不少心思~
▲ 图源:白菜适家实景拍摄
▲ 图源:白菜适家实景拍摄
▲ 图源:白菜适家实景拍摄
家
里住着位小少女之外还住着一位大少女,连主卧都是满满的粉色~
啜一口浪漫,游走在焦糖落日的法式柔情间~
▲ 图源:白菜适家实景拍摄
▲ 图源:白菜适家实景拍摄
▲ 图源:白菜适家实景拍摄
▲ 图源:白菜适家实景拍摄
▲ 图源:白菜适家实景拍摄
▲ 图源:白菜适家实景拍摄
主
卫用的是肉粉色的砖(图片拍的有点色差),搭配故意做旧的浴室柜,以及金色的五金,奢华感十足,在午后阳光的沐浴下泡个热水澡,所有烦恼统统忘掉~
▲ 图源:白菜适家实景拍摄
▲ 图源:
白菜适家实景拍摄
书
房是全家唯一冷色调的小角,这是男主人的娱乐天地(偷笑)
大家看完后请不要再问我怎么打扫卫生,一切皆有道,只看你喜欢的程度。
人家日本的主妇清洗白衬衫可都是把缝线拆了,清洗完再缝好的。
最后,我只想说,现场比照片要好看一百倍(偷笑)
▲ 图源
:
客户真实评价聊天截图
▲ 图源
:
客户真实评价聊天截图
客服
消息
收藏
下载
最近





















































