查看完整案例


收藏

下载
对于一个面向年轻人的休闲养生品牌而言,首要任务就是跳脱消费者对行业的刻板印象,实现具有符号化的足浴消费体验升级。
如酒店品质的现代质感休闲空间,引导带着生活压力进入“清奇山林”的人们,通过足浴和SPA放松身体、治愈精神。
接待大堂 ----
绮丽山林幻境
接待大堂以多重路径引导消费者进入更深处的空间,将“探寻”作为接待区体验的第一个环节。整体造型回应了山水自然的清丽,远离都市烦扰的清幽,得一刻之闲,享受一刻休闲时光,将松弛感和舒适感放大。
光线柔和,与室外自然光形成反差,调整心理情绪。装置和灯光共同营造恰到好处的神秘感和戏剧性,让等待的体验也具有多层次感受。
艺术装置区的意义是什么?温暖的火红,抽象的符号,共同为消费者留一处想象的空间和缓冲的余地,这也是休闲场所为人们身心健康带来的意义。
男女浴区——打开多重体验感观
第二层浴区,由更衣区、浴区和助浴区组成。蜿蜒回环的动线,极大利用空间,同时提空时空转换之间的空档和留白。更衣区以月光下的秘境为概念呈现梦幻和诗意的场景,第一重体验由此开启。
浴区采用半开放式,一方面用半围闭形式进行视线阻挡,另一方面通过氛围照明,视觉引导暗示不同功能分区之间的功能属性。设计的关注点,从由下及上的光体现适度照明而不刺眼的尺度感,又以材料和体块之间的穿插节奏、光带的串连,形成一种无声的韵律,来引导人在空间行为的节奏感,这无疑是一种更高阶的放松和享受。
休闲区餐区传递水属性的清凉与包容,超大尺度的木饰面质感材料将水池包裹,再以一团火红的艺术品“蓓蕾”激发对于热烈和欢快的想象,这是休闲区带来的三重身心感知。
足疗区——回归松弛闲适时刻
与公共空间不同,足疗区房间的设计更强调舒适度、私密性和“去装饰化”。极简纯粹的空间配合专业的灯光设计,让消费者真正放松并沉浸其中。
“松弛”是从身到心的一点点放下,以水为媒介,光为烘托,到最后是手法和筋骨的相互试探。得一刻之闲,便要享受一刻之时光。
FLOOR PLANE
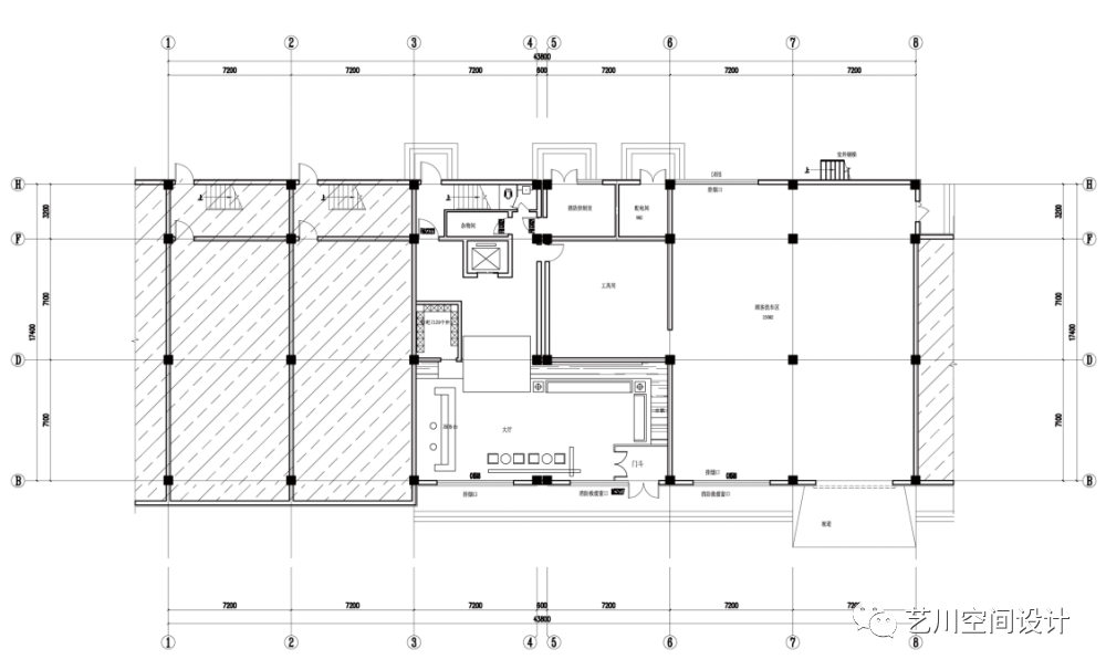
△一层
平面图
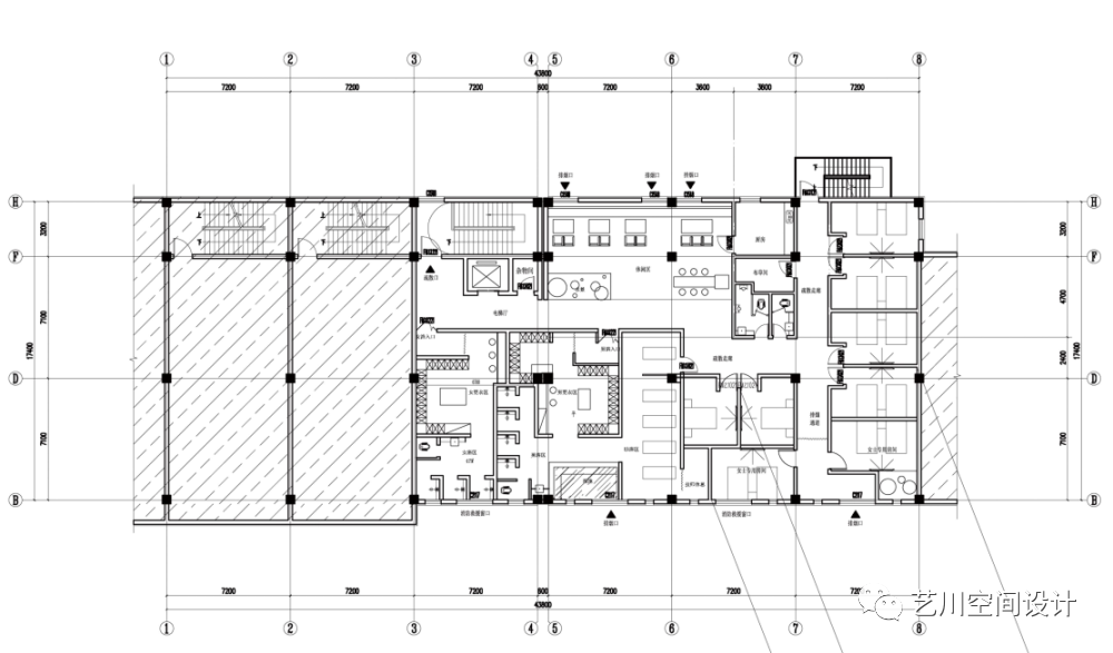
△二层
平面图
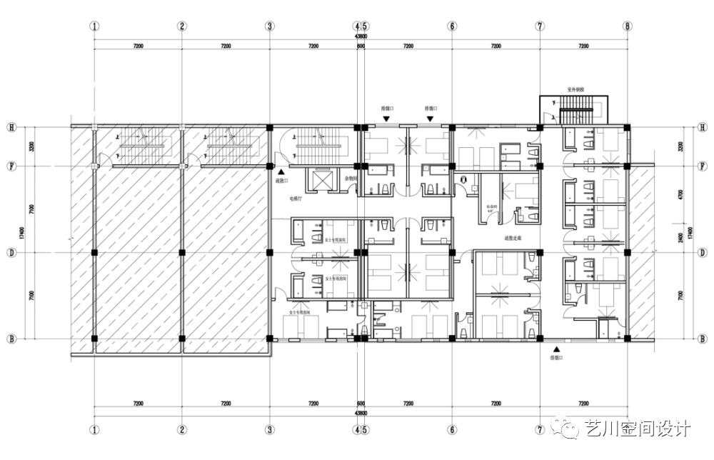
△三层
平面图
项目名称:唐韵足疗休闲会馆
项目面积:2000㎡
设计时间:2022年8月
设计总监:葛凯
设计团队:王欢,刘天,袁京京
葛凯
沈阳艺川空间设计机构 创始人/设计总监
2021年40 UNDER 40中国(辽宁)设计杰出青年(2021-2022)
2020年金堂奖·年度杰出休闲娱乐空间设计
2020年智能家居ID设计奖 辽宁省十佳设计师奖项
2020年40 UNDER 40中国(辽宁)设计杰出青年(2020-2021)
2019品质和平年度影响力设计师
2018年第六届国际空间设计大奖“ID+G”金创意奖国际空间设计大赛十佳创新设计奖&年度十佳创新设计师
2017年40 UNDER 40中国(辽宁)设计杰出青年(2017-2018)
2017亚太空间设计年度评选新锐设计师
2012
照明
应用设计大赛佳作奖
客服
消息
收藏
下载
最近




























